Votre courriel a été envoyé.
Certaines informations ont été traduites automatiquement.
Faits saillants du parc
- Suite de capuchons de ±15 717 pieds SF disponible avec 2 quais, 3 portes de niveau supérieur et une hauteur dégagée de 24 pi
- Accès à l'I-17 et à 3 milles de l'aéroport international Sky Harbor de Phoenix
- Adjacent à l'échangeur à diamants complet à l'Interstate 17 et à la 7th Avenue
Faits sur le parc
| Superficie totale disponible | 34 865 pi² | Rues transversales | I-17 |
| Type de parc | Parc industriel |
| Superficie totale disponible | 34 865 pi² |
| Type de parc | Parc industriel |
| Rues transversales | I-17 |
Tous les espaces disponibles(1)
Afficher les taux de location en
- Espace
- Taille
- Terme
- Taux de location
- Utilisation de l’espace
- Aménagement
- Disponible
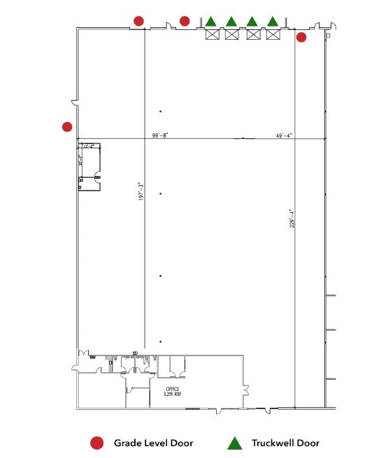
Suite 100/110 sports ±34,865 SF of open endcap warehouse with 4 docks, 4 grade level doors, an EVAP cooled warehouse, and 24' clear height. Space is equipped with 600 amps, 277/40v, 3-phase power. The space has been fully refurbished and designed to maximize efficiency and flow from the office to the warehouse space to the loading area. This endcap suite offers great visibility and is located 3 miles from Sky Harbor International and has access to I-17.
- 4 accès plain-pied
- 4 quais de chargement
- 3 miles from Sky Harbor International and has acce
- Espace en excellent état
- Salle de bains privée
| Espace | Taille | Terme | Taux de location | Utilisation de l’espace | Aménagement | Disponible |
| 1er étage - 100/110 | 34 865 pi² | Négociable | 18,86 $ CAD/pi²/an 1,57 $ CAD/pi²/mois 657 618 $ CAD/an 54 802 $ CAD/mois | Industriel | construction partielle | Maintenant |
2115 S 11th Ave - 1er étage - 100/110
2115 S 11th Ave - 1er étage - 100/110
| Taille | 34 865 pi² |
| Terme | Négociable |
| Taux de location | 18,86 $ CAD/pi²/an |
| Utilisation de l’espace | Industriel |
| Aménagement | construction partielle |
| Disponible | Maintenant |
Suite 100/110 sports ±34,865 SF of open endcap warehouse with 4 docks, 4 grade level doors, an EVAP cooled warehouse, and 24' clear height. Space is equipped with 600 amps, 277/40v, 3-phase power. The space has been fully refurbished and designed to maximize efficiency and flow from the office to the warehouse space to the loading area. This endcap suite offers great visibility and is located 3 miles from Sky Harbor International and has access to I-17.
- 4 accès plain-pied
- Espace en excellent état
- 4 quais de chargement
- Salle de bains privée
- 3 miles from Sky Harbor International and has acce
Aperçu du parc
Construit en 2006, cet entrepôt de 66 268 SF situé au cœur de Phoenix offre 8 portes de niveau, 10 quais, un grand stationnement, un espace de bureau avec toilettes et plus encore.
Présenté par
Link Commerce Park | Phoenix, AZ 85007
Hmm, il semble y avoir eu une erreur lors de l’envoi de votre message. Veuillez réessayer.
Merci! Votre message a été envoyé.






