Se Connecter/S’inscrire
Votre courriel a été envoyé.
2120 Milestone Dr - 2120 Milestone Dr 201 Unité de condo • Bureau • 3 799 pi² • À vendre 1 167 135 $ CAD • Fort Collins, CO 80525



Certaines informations ont été traduites automatiquement.
Salle de données Cliquez ici pour accéder à
- Offering Memorandum
1 Unité disponible
Unité 201
| Taille de l’unité | 3 799 pi² | Utilisation du condo | Bureau |
| Prix | 1 167 135 $ CAD | Type de vente | Propriétaire utilisateur |
| Prix par pi² | 307,22 $ CAD |
| Taille de l’unité | 3 799 pi² |
| Prix | 1 167 135 $ CAD |
| Prix par pi² | 307,22 $ CAD |
| Utilisation du condo | Bureau |
| Type de vente | Propriétaire utilisateur |
Description
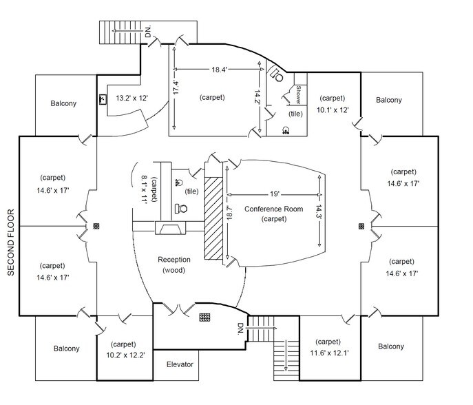
Condo à bureaux au deuxième étage à vendre. Cette propriété offre 3 799 pi2 (5 096 pi2 louables), des finitions haut de gamme, plusieurs bureaux privés, une salle de conférence, deux toilettes privées, une zone de réception, une salle de déjeuner/pause, une salle de TI et un hall d'entrée avec ascenseur. Il y a quatre balcons qui sont inclus dans la superficie en pieds carrés.
Faits sur la propriété
Les caractéristiques et les équipements suivants s'appliquent à l'ensemble du bâtiment. Les détails relatifs aux unités de copropriété individuelles peuvent varier et figurent dans les informations concernant les unités ci-dessus.
| Taille totale du bâtiment | 13 798 pi² | Superficie de plancher typique | 6 899 pi² |
| Type de propriété | Bureau (Condo) | Année de construction | 2005 |
| Classe d’immeuble | B | Taille du lot | 0,75 AC |
| Planchers | 2 | Ratio de stationnement | 2,39/1 000 pi² |
| Zonage | HC | ||
| Taille totale du bâtiment | 13 798 pi² |
| Type de propriété | Bureau (Condo) |
| Classe d’immeuble | B |
| Planchers | 2 |
| Superficie de plancher typique | 6 899 pi² |
| Année de construction | 2005 |
| Taille du lot | 0,75 AC |
| Ratio de stationnement | 2,39/1 000 pi² |
| Zonage | HC |
Commodités
- Espace d'entreposage
- Climatisation
1 1
Assez praticable à pied
50/100
Très facile d’accès en voiture
80/100
Transports en commun limités
30/100
Moyennement praticable en vélo
60/100
1 de 13
Vidéos
Visite extérieure 3D Matterport
Visite 3D Matterport
Photos
Vue depuis la rue
Rue
Carte
1 de 1
Présenté par
2120 Milestone Dr - 2120 Milestone Dr 201
Vous êtes déjà membre? Connectez-vous
Hmm, il semble y avoir eu une erreur lors de l’envoi de votre message. Veuillez réessayer.
Merci! Votre message a été envoyé.
