Votre courriel a été envoyé.
Signal Hill Office 21335 Signal Hill Plaza 18 199–61 115 pi² d'espace disponible • Bureau • Sterling, VA 20164



Certaines informations ont été traduites automatiquement.
Faits saillants
- Emplacement stratégique — Situé sur 3,6 acres dans l'est du comté de Loudoun en voie de réaménagement rapide, à côté du campus NOVA Loudoun de 93 acres
- Accès direct — Intersections entièrement signalisées, offrant un accès direct, sécuritaire et pratique pour les véhicules, les piétons et les vélos à partir de la route 7 et du chemin Potomac View
- Fournisseurs de fibres multiples — MAE Est (infrastructure Internet essentielle) est située à côté de Signal Hill, du côté nord de la route 7
- Excellente visibilité — Angle de repère sur la colline historique Signal Hill. La visibilité et l'accès à partir de la Rt. 7 sont stratégiquement importants avec une disponibilité limitée
- Transport régional — Accès par véhicule à la route 7, route 28, et à la promenade du comté de Fairfax (route 286). Aéroport de Dulles (6,8 milles).
Tous les espaces disponibles(3)
Afficher les taux de location en
- Espace
- Taille
- Terme
- Taux de location
- Utilisation de l’espace
- État
- Disponible
Full building lease available. Educational and Medical use.
- Entièrement construit comme Bureau standard
- Convient pour 46 à 146 personnes
- Peut être associé à un ou plusieurs espaces supplémentaires pour obtenir jusqu’à 61 115 pi² d’espace adjacent.
- Disposition intensive du bureau
- Espace en excellent état
- Bureaux à fenêtres
Full building lease available. Educational and Medical use.
- Entièrement construit comme Bureau standard
- Convient pour 54 à 173 personnes
- Peut être associé à un ou plusieurs espaces supplémentaires pour obtenir jusqu’à 61 115 pi² d’espace adjacent.
- Disposition intensive du bureau
- Espace en excellent état
- Bureaux à fenêtres
Full building lease available. Educational and Medical use.
- Entièrement construit comme Bureau standard
- Convient pour 54 à 172 personnes
- Peut être associé à un ou plusieurs espaces supplémentaires pour obtenir jusqu’à 61 115 pi² d’espace adjacent.
- Disposition intensive du bureau
- Espace en excellent état
- Bureaux à fenêtres
| Espace | Taille | Terme | Taux de location | Utilisation de l’espace | État | Disponible |
| 1er étage | 18 199 pi² | Négociable | Sur demande Sur demande Sur demande Sur demande | Bureau | construction complète | Maintenant |
| 2e étage | 21 509 pi² | Négociable | Sur demande Sur demande Sur demande Sur demande | Bureau | construction complète | Maintenant |
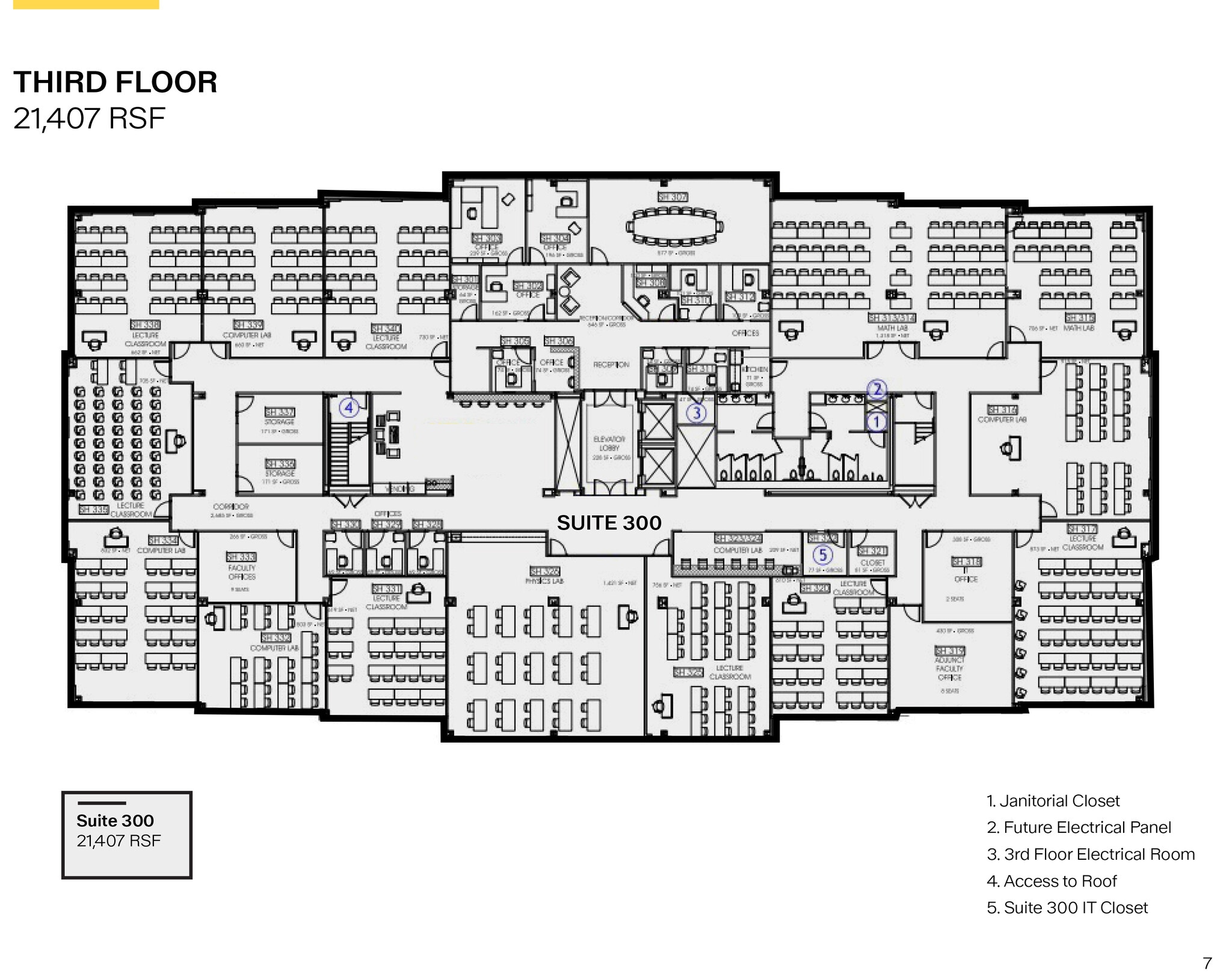
| 3e étage | 21 407 pi² | Négociable | Sur demande Sur demande Sur demande Sur demande | Bureau | construction complète | Maintenant |
1er étage
| Taille |
| 18 199 pi² |
| Terme |
| Négociable |
| Taux de location |
| Sur demande Sur demande Sur demande Sur demande |
| Utilisation de l’espace |
| Bureau |
| État |
| construction complète |
| Disponible |
| Maintenant |
2e étage
| Taille |
| 21 509 pi² |
| Terme |
| Négociable |
| Taux de location |
| Sur demande Sur demande Sur demande Sur demande |
| Utilisation de l’espace |
| Bureau |
| État |
| construction complète |
| Disponible |
| Maintenant |
3e étage
| Taille |
| 21 407 pi² |
| Terme |
| Négociable |
| Taux de location |
| Sur demande Sur demande Sur demande Sur demande |
| Utilisation de l’espace |
| Bureau |
| État |
| construction complète |
| Disponible |
| Maintenant |
1er étage
| Taille | 18 199 pi² |
| Terme | Négociable |
| Taux de location | Sur demande |
| Utilisation de l’espace | Bureau |
| État | construction complète |
| Disponible | Maintenant |
Full building lease available. Educational and Medical use.
- Entièrement construit comme Bureau standard
- Disposition intensive du bureau
- Convient pour 46 à 146 personnes
- Espace en excellent état
- Peut être associé à un ou plusieurs espaces supplémentaires pour obtenir jusqu’à 61 115 pi² d’espace adjacent.
- Bureaux à fenêtres
2e étage
| Taille | 21 509 pi² |
| Terme | Négociable |
| Taux de location | Sur demande |
| Utilisation de l’espace | Bureau |
| État | construction complète |
| Disponible | Maintenant |
Full building lease available. Educational and Medical use.
- Entièrement construit comme Bureau standard
- Disposition intensive du bureau
- Convient pour 54 à 173 personnes
- Espace en excellent état
- Peut être associé à un ou plusieurs espaces supplémentaires pour obtenir jusqu’à 61 115 pi² d’espace adjacent.
- Bureaux à fenêtres
3e étage
| Taille | 21 407 pi² |
| Terme | Négociable |
| Taux de location | Sur demande |
| Utilisation de l’espace | Bureau |
| État | construction complète |
| Disponible | Maintenant |
Full building lease available. Educational and Medical use.
- Entièrement construit comme Bureau standard
- Disposition intensive du bureau
- Convient pour 54 à 172 personnes
- Espace en excellent état
- Peut être associé à un ou plusieurs espaces supplémentaires pour obtenir jusqu’à 61 115 pi² d’espace adjacent.
- Bureaux à fenêtres
Aperçu de la propriété
Situé sur 3,6 acres dans l'est du comté de Loudoun en plein essor, le 21335 Signal Hill Plaza offre un emplacement stratégique à côté du campus NOVA Loudoun de 93 acres. Cette propriété historique offre une excellente visibilité depuis Leesburg Pike (route 7) avec de vastes lignes de visibilité à l'est jusqu'à Georgetown Pike et à l'ouest jusqu'au centre-ville de Dulles. Dotée d'intersections entièrement signalisées, la propriété assure un accès direct et sécuritaire à partir de la route 7 et du chemin Potomac View, ainsi que des sentiers piétons et cyclables. Son emplacement privilégié offre une connectivité régionale exceptionnelle avec un accès facile à la route 7, à la route 28, à la promenade du comté de Fairfax et à seulement 10 km de l'aéroport de Dulles. De plus, la propriété bénéficie de la proximité de MAE East, offrant un accès à plusieurs fournisseurs de fibres optiques pour l'infrastructure Internet essentielle, ce qui en fait un endroit idéal pour les entreprises qui recherchent visibilité et accessibilité dans une zone à forte demande.
- Accès contrôlé
- Affichage
- Clef en main
- Internet par fibre optique
Faits sur la propriété
Présenté par
Signal Hill Office | 21335 Signal Hill Plaza
Hmm, il semble y avoir eu une erreur lors de l’envoi de votre message. Veuillez réessayer.
Merci! Votre message a été envoyé.







