Se Connecter/S’inscrire
Votre courriel a été envoyé.
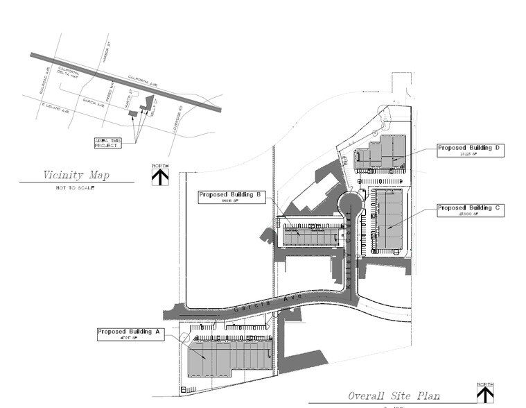
2144 Kelley Ct
Pittsburg, CA 94565
Bldg B · Industriel Propriété À louer
·
14 616 pi²

Certaines informations ont été traduites automatiquement.
Aperçu de la propriété
Colliers est heureux d'offrir quatre immeubles commerciaux à louer ou à construire selon les besoins. Les bâtiments sont situés dans le parc d'affaires Camp Stoneman et sont entièrement admissibles et prêts à recevoir un permis. Les sites sont idéaux pour une gamme d'utilisations commerciales et industrielles et les dimensions des bâtiments peuvent être ajustées en fonction de votre usage.
Faits sur la propriété
Taille du bâtiment
14 616 pi²
Taille du lot
0,92 AC
Année de construction
2028
1 de 2
Vidéos
Visite extérieure 3D Matterport
Visite 3D Matterport
Photos
Vue depuis la rue
Rue
Carte
