Votre courriel a été envoyé.
Certaines informations ont été traduites automatiquement.
Faits saillants du parc
- Le plus récent parc médical et à bureaux d'Old Saybrook - Atlas Commons
- ADT - 61 126 sur I-95
- Suites allant de 2 000 à 10 606 pieds 2 contiguës
- Directement à partir de la sortie 67 de la I-95
- Entouré de nombreuses commodités de la région, y compris le magasinage, la salle à manger, l'accès au train et plus encore
- Allocation généreuse pour améliorations locataires
Faits sur le parc
Tous les espaces disponibles(3)
Afficher les taux de location en
- Espace
- Taille
- Terme
- Taux de location
- Utilisation de l’espace
- Aménagement
- Disponible
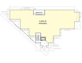
5,303 SF Available on the 1st Floor
- Entièrement construit comme Bureau standard
- Convient pour 14 à 43 personnes
- Climatisation centrale
- 5,303 SF Available on the 1st Floor
- Disposition du plan d’étage ouverte en général
- Espace en excellent état
- New Construction
- Directly off I-95 at Exit 67
Part of Atlas Business Park, this brand new construction office space is perfect for a variety of medical office uses.
- Partiellement construit comme Espace médical standard
- Convient pour 6 à 19 personnes
- Air central et chauffage
- Nombreuses commodités de la région
- Disposition intensive du bureau
- Espace en excellent état
- Allocation généreuse d'amélioration des locataires
| Espace | Taille | Terme | Taux de location | Utilisation de l’espace | Aménagement | Disponible |
| 1er étage, ste Bldg 2 | 5 303 pi² | Négociable | Sur demande Sur demande Sur demande Sur demande | Bureau/Médical | construction complète | Maintenant |
| 2e étage, ste Bldg 2 - #213 | 2 331 pi² | 1-10 ans | Sur demande Sur demande Sur demande Sur demande | Bureau/Médical | construction partielle | 120 jours |
213 Elm St - 1er étage - ste Bldg 2
213 Elm St - 2e étage - ste Bldg 2 - #213
- Espace
- Taille
- Terme
- Taux de location
- Utilisation de l’espace
- Aménagement
- Disponible
Medical Office space for Lease in new construction building.
- Le taux de location ne comprend pas les services publics, les services de bâtiment ou les dépenses immobilières.
- Disposition du plan d’étage ouverte en général
- Espace en excellent état
- New Construction
- 1,955 SF Available on the 2nd Floor
- Entièrement construit comme Bureau standard
- Convient pour 5 à 16 personnes
- Climatisation centrale
- Generous Tenant Improvement Allowance
- Directly off I-95 at Exit 67
| Espace | Taille | Terme | Taux de location | Utilisation de l’espace | Aménagement | Disponible |
| 2e étage, ste Bldg 1 - #215 | 1 955 pi² | Négociable | 33,78 $ CAD/pi²/an 2,81 $ CAD/pi²/mois 66 035 $ CAD/an 5 503 $ CAD/mois | Bureau/Médical | construction complète | Maintenant |
215 Elm St - 2e étage - ste Bldg 1 - #215
213 Elm St - 1er étage - ste Bldg 2
| Taille | 5 303 pi² |
| Terme | Négociable |
| Taux de location | Sur demande |
| Utilisation de l’espace | Bureau/Médical |
| Aménagement | construction complète |
| Disponible | Maintenant |
5,303 SF Available on the 1st Floor
- Entièrement construit comme Bureau standard
- Disposition du plan d’étage ouverte en général
- Convient pour 14 à 43 personnes
- Espace en excellent état
- Climatisation centrale
- New Construction
- 5,303 SF Available on the 1st Floor
- Directly off I-95 at Exit 67
213 Elm St - 2e étage - ste Bldg 2 - #213
| Taille | 2 331 pi² |
| Terme | 1-10 ans |
| Taux de location | Sur demande |
| Utilisation de l’espace | Bureau/Médical |
| Aménagement | construction partielle |
| Disponible | 120 jours |
Part of Atlas Business Park, this brand new construction office space is perfect for a variety of medical office uses.
- Partiellement construit comme Espace médical standard
- Disposition intensive du bureau
- Convient pour 6 à 19 personnes
- Espace en excellent état
- Air central et chauffage
- Allocation généreuse d'amélioration des locataires
- Nombreuses commodités de la région
215 Elm St - 2e étage - ste Bldg 1 - #215
| Taille | 1 955 pi² |
| Terme | Négociable |
| Taux de location | 33,78 $ CAD/pi²/an |
| Utilisation de l’espace | Bureau/Médical |
| Aménagement | construction complète |
| Disponible | Maintenant |
Medical Office space for Lease in new construction building.
- Le taux de location ne comprend pas les services publics, les services de bâtiment ou les dépenses immobilières.
- Entièrement construit comme Bureau standard
- Disposition du plan d’étage ouverte en général
- Convient pour 5 à 16 personnes
- Espace en excellent état
- Climatisation centrale
- New Construction
- Generous Tenant Improvement Allowance
- 1,955 SF Available on the 2nd Floor
- Directly off I-95 at Exit 67
Aperçu du parc
O, R&L Commercial a le plaisir de présenter un tout nouvel espace médical avec des suites de 2 000 à 10 606 pi2 contiguës situés à Atlas Commons, le plus récent parc médical/bureau d'Old Saybrook situé au 215, rue Elm. Joignez-vous à Hartford Healthcare et Connecticut GI dans ce parc de bureaux de 2 immeubles. De généreuses allocations d'amélioration des locataires ont été versées. La propriété se trouve juste à côté de l'I-95, à la sortie 67 et est entourée de nombreux équipements de la région, y compris des boutiques, des restaurants et plus encore. Taux de location : $24.50/SF NNN
- Climatisation
- Visibilité de l'autoroute
Présenté par
Atlas Commons | Old Saybrook, CT 06475
Hmm, il semble y avoir eu une erreur lors de l’envoi de votre message. Veuillez réessayer.
Merci! Votre message a été envoyé.













