Votre courriel a été envoyé.
Certaines informations ont été traduites automatiquement.
Faits saillants
- High Traffic Area - Positioned in a bustling hub with steady foot traffic throughout the day.
- Prominent Visibility - Large, inviting windows ensure your business is seen from afar.
- Ample Parking - Easy access for customers with (number) dedicated parking spaces.
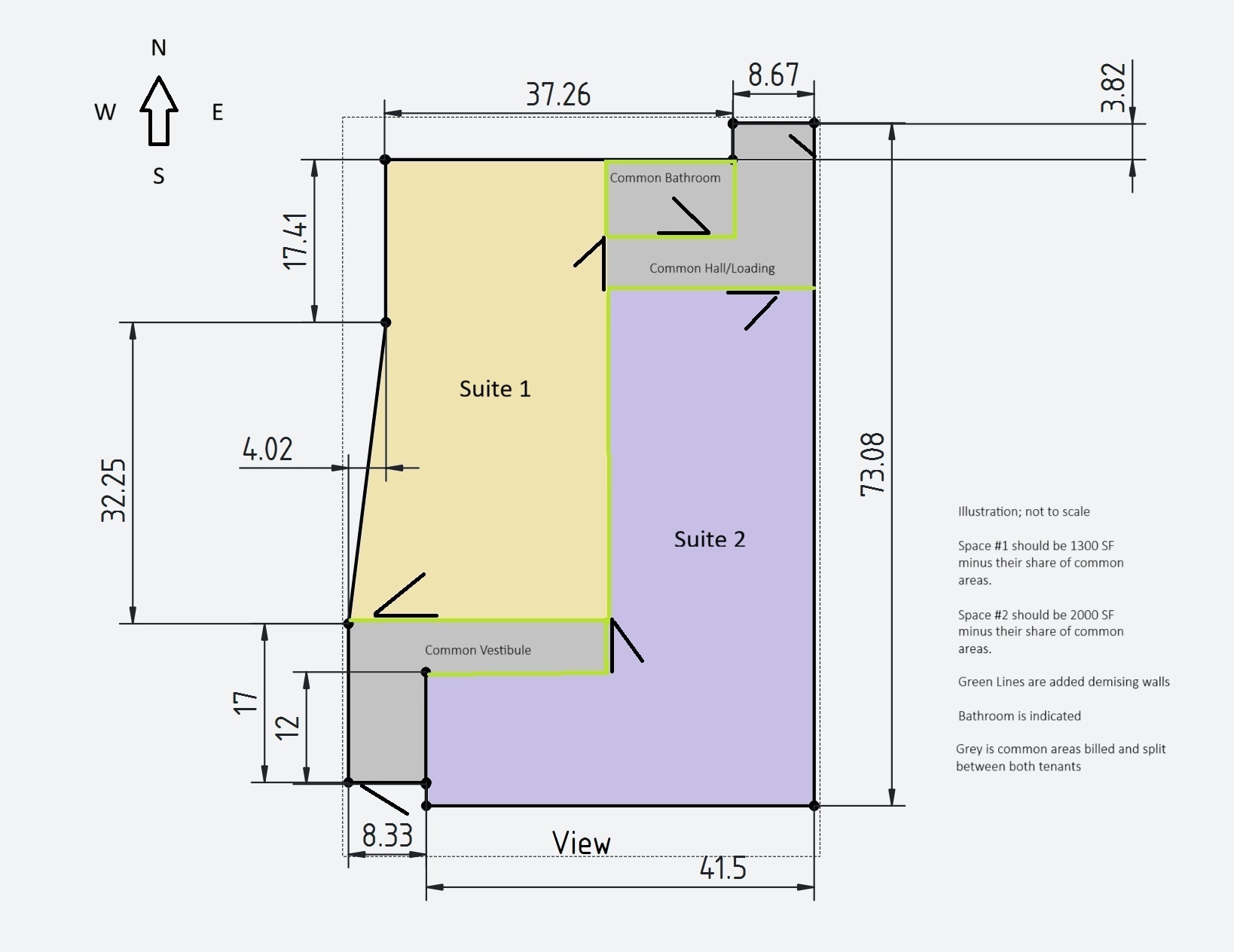
Disponibilité des espaces (2)
Afficher les taux de location en
- Espace
- Taille
- Plafond
- Terme
- Taux de location
- Type de loyer
| Espace | Taille | Plafond | Terme | Taux de location | Type de loyer | |
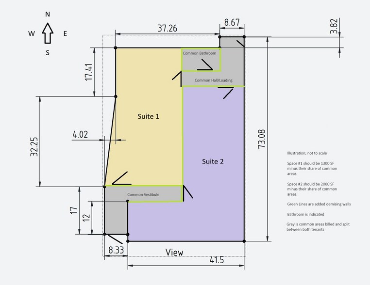
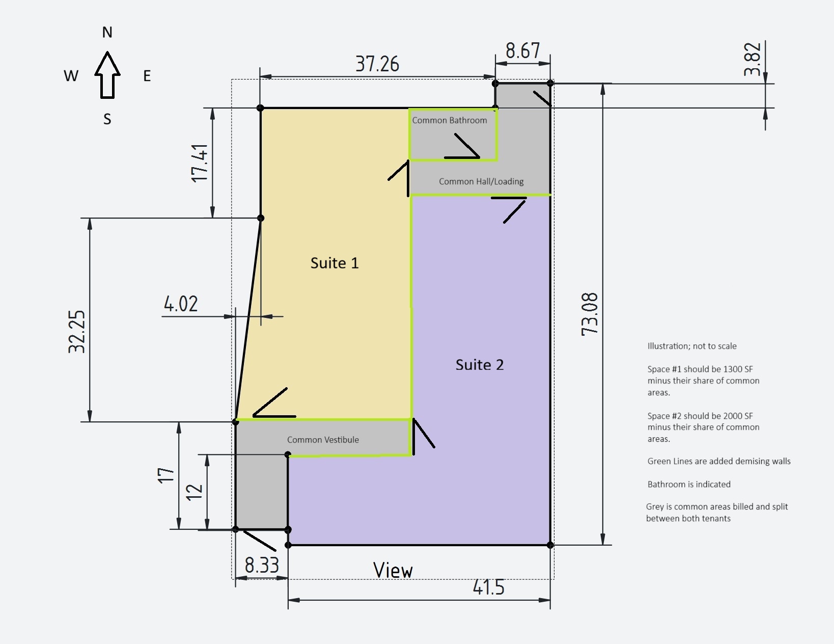
| 1er étage, ste Suite 1 | 1 300 pi² | - | Négociable | 17,18 $ CAD/pi²/an 1,43 $ CAD/pi²/mois 22 330 $ CAD/an 1 861 $ CAD/mois | Loyer hypernet | |
| 1er étage, ste Suite 2 | 2 000 pi² | 9’ | Négociable | 17,18 $ CAD/pi²/an 1,43 $ CAD/pi²/mois 34 353 $ CAD/an 2 863 $ CAD/mois | Loyer hypernet |
8231 Hohman Ave - 1er étage - ste Suite 1
This space is currently vanilla box delivery; landlord will demise space and add common area bathroom after lease signing.
- Le taux de location ne comprend pas les services publics, les services de bâtiment ou les dépenses immobilières.
- Entièrement construit comme Espace de commerce de détail standard
- Disposition du plan d’étage ouverte
- Plan ouvert
- Accessible Entry
- Customizable Space
8231 Hohman Ave - 1er étage - ste Suite 2
This space is currently vanilla box delivery; landlord will demise space and add common area bathroom after lease signing.
- Le taux de location ne comprend pas les services publics, les services de bâtiment ou les dépenses immobilières.
- Air central et chauffage
- Plafonds finis: 9’
Types de loyers
Le type et le montant du loyer que le locataire (preneur) est tenu de payer au propriétaire (bailleur) sur la durée du bail sont négociés avant la signature du bail par les deux parties. Le type de loyer varie selon les services fournis. Par exemple, le prix d’un loyer hypernet est habituellement inférieur à celui d’un bail à service complet puisque le locataire est tenu d’assumer des dépenses additionnelles par rapport au loyer de base. Contactez le courtier inscripteur pour tout connaître sur les frais connexes et additionnels associés à chaque type de loyer.
1. Service complet: Un taux de location qui comprend des services standards liés à l’immeuble fournis par le propriétaire dans le cadre d’une location annuelle de base.
2. Loyer supernet: Le locataire paie seulement deux des frais de l’immeuble. Le propriétaire et le locataire déterminent ces frais spécifiques avant la signature du bail.
3. Loyer hypernet: Un bail en vertu duquel le locataire est responsable de tous les frais liés à sa part proportionnelle d’occupation de l’immeuble.
4. Brut modifié: Le loyer brut modifié désigne un type général de taux de location dans lequel le locataire est habituellement responsable de sa part proportionnelle d’un ou de plusieurs frais. C’est le propriétaire qui paie les frais restants. Considérez les structures tarifaires courantes suivantes applicables aux loyers bruts modifiés: 4. Plus les services: Un type de bail brut modifié suivant lequel le locataire est responsable de sa part proportionnelle des coûts des services publics, en plus du loyer. 4. Plus le nettoyage: Un type de bail brut modifié suivant lequel le locataire est responsable de sa part proportionnelle des coûts de nettoyage, en plus du loyer. 4. Plus l'électricité: Un type de bail brut modifié suivant lequel le locataire est responsable de sa part proportionnelle des coûts d’électricité, en plus du loyer. 4. Plus l’électricité et le nettoyage: Un type de bail brut modifié dans lequel le locataire est responsable de sa part proportionnelle des coûts d’électricité et de nettoyage, en plus du loyer. 4. Plus les services publics et le nettoyage: Un type de bail brut modifié dans lequel le locataire est responsable de sa part proportionnelle des coûts des services publics et de nettoyage, en plus du loyer. 4. Bail industriel brut: Un type de bail brut modifié dans lequel le locataire paie un ou plusieurs des frais, en plus du loyer. Le propriétaire et le locataire déterminent ces frais spécifiques avant la signature du bail.
5. L’électricité est à la charge du locataire: Le propriétaire paie pour tous les services et le locataire est responsable de sa propre utilisation de l’éclairage et des prises électriques dans l’espace qu’il occupe.
6. Négociable ou sur demande: Cette option est utilisée lorsque le contact de location ne précise pas le type de loyer ou de service.
7. À déterminer: À déterminer ; utilisé pour les immeubles dont le type de services ou de loyer n’est pas connu, souvent quand l’immeuble n’est pas encore construit.
Faits sur la propriété
À propos de la propriété
Positioned in one of Munster’s most vibrant commercial corridors, this retail space offers an exceptional opportunity for businesses seeking visibility and convenience. Located in a high-traffic area, the property benefits from steady footfall throughout the day, making it ideal for attracting walk-in customers. Large, inviting windows provide prominent street-facing visibility, ensuring your brand stands out. With multiple dedicated parking spaces and direct access from the lot into the premises, customers will enjoy seamless entry and ample parking. The landlord is committed to delivering the space in vanilla box condition, allowing tenants to customize the interior to suit their unique vision. Whether you're launching a new concept or expanding an established brand, this versatile space offers the perfect canvas to bring your retail ambitions to life.
- Accès 24 heures
- Train de banlieue
- Installations de conférences
- Lot de coin
- Métro
- Gestionnaire d'immeuble sur place
- Enseigne sur pylône
- Restaurant
- Affichage
- Intersection avec signalisation
- CVCA contrôlé par le locataire
- Affichage sur monument
- Climatisation
Principaux détaillants à proximité
Présenté par
Munster Plaza | 215 Ridge Rd
Hmm, il semble y avoir eu une erreur lors de l’envoi de votre message. Veuillez réessayer.
Merci! Votre message a été envoyé.







