Votre courriel a été envoyé.
2151 Whitfield Industrial Way 44 585 pi² d'espace disponible • Industriel • Sarasota, FL 34243


Certaines informations ont été traduites automatiquement.
Faits saillants de la sous-location
- Strategic Sarasota location with immediate access to I-75 and I-275
- 1.2 acres of outdoor storage for additional operational flexibility
- 44,585 SF warehouse with functional layout and 12’ clear height
- Proximity to Sarasota Bradenton International Airport (5 miles) and Tampa International Airport (49 miles)
Tous les espaces disponibles(1)
Afficher les taux de location en
- Espace
- Taille
- Terme
- Taux de location
- Utilisation de l’espace
- État
- Disponible
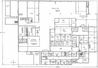
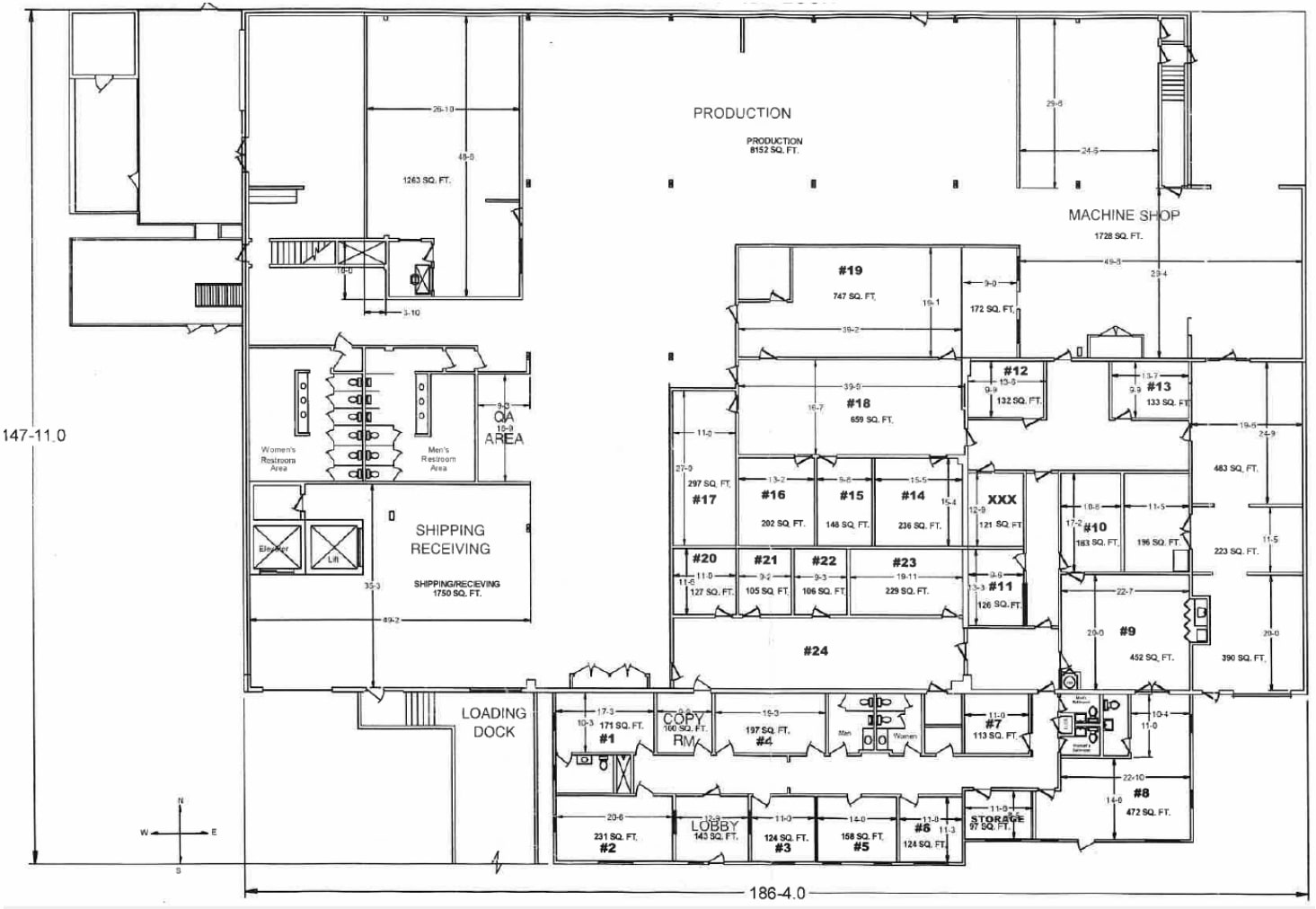
Position your business in a highly accessible industrial location at 2151 Whitfield Industrial Way in Sarasota, Florida. This property offers a functional 44,585 SF warehouse with 12-foot clear height, ideal for a variety of industrial and distribution uses. The site includes 1.2 acres of outdoor storage, providing flexibility for equipment, vehicles, or material storage. With both a dock-high door and a drive-in door, the facility supports efficient loading and unloading operations.
- Espace de sous-location disponible auprès du locataire actuel
- Dual loading options
| Espace | Taille | Terme | Taux de location | Utilisation de l’espace | État | Disponible |
| 1er étage | 44 585 pi² | Négociable | Sur demande Sur demande Sur demande Sur demande | Industriel | construction complète | 60 jours |
1er étage
| Taille |
| 44 585 pi² |
| Terme |
| Négociable |
| Taux de location |
| Sur demande Sur demande Sur demande Sur demande |
| Utilisation de l’espace |
| Industriel |
| État |
| construction complète |
| Disponible |
| 60 jours |
1er étage
| Taille | 44 585 pi² |
| Terme | Négociable |
| Taux de location | Sur demande |
| Utilisation de l’espace | Industriel |
| État | construction complète |
| Disponible | 60 jours |
Position your business in a highly accessible industrial location at 2151 Whitfield Industrial Way in Sarasota, Florida. This property offers a functional 44,585 SF warehouse with 12-foot clear height, ideal for a variety of industrial and distribution uses. The site includes 1.2 acres of outdoor storage, providing flexibility for equipment, vehicles, or material storage. With both a dock-high door and a drive-in door, the facility supports efficient loading and unloading operations.
- Espace de sous-location disponible auprès du locataire actuel
- Dual loading options
Aperçu de la propriété
Located just 6 miles from I-75 and 13 miles from I-275, the property ensures excellent regional connectivity. Sarasota Bradenton International Airport is only 5 miles away, and Tampa International Airport is within 49 miles, making it a strategic hub for logistics and distribution. The surrounding area is a well-established industrial corridor with strong access to labor and amenities. This sublease opportunity is available within 60 days, offering businesses a quick move-in option in a prime Sarasota location.
Faits sur l’installation entrepôt
Sélectionner des locataires
- Étage
- Nom du locataire
- Secteur
- 1ᵉʳ
- Ackerman Plumbing Inc
- Services
Présenté par
2151 Whitfield Industrial Way
Hmm, il semble y avoir eu une erreur lors de l’envoi de votre message. Veuillez réessayer.
Merci! Votre message a été envoyé.


