Votre courriel a été envoyé.
Certaines informations ont été traduites automatiquement.
FAITS SAILLANTS
- Prime Tempe location with Rio Salado Parkway frontage
- EVAP cooled warehouse for cost-effective climate control
- Convenient access to Loop 101, Loop 202, and Phoenix Sky Harbor Airport
- Functional layout with three grade-level doors and fenced yard
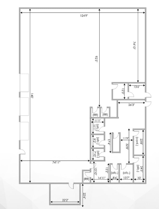
- Seven private offices plus conference room for administrative needs
CARACTÉRISTIQUES
TOUS LES ESPACES DISPONIBLES(1)
Afficher les taux de location en
- ESPACE
- TAILLE
- TERME
- TAUX DE LOCATION
- UTILISATION DE L’ESPACE
- ÉTAT
- DISPONIBLE
Positioned along Rio Salado Parkway in Tempe, this ±18,000 SF industrial building offers exceptional functionality and visibility for businesses seeking a strategic location in the heart of the East Valley. The property features a 16-foot clear height, three grade-level doors, and a fenced yard, making it ideal for distribution, light manufacturing, or service operations. The warehouse is EVAP cooled, ensuring cost-effective climate control, while the office component includes seven private offices, a reception area, a bullpen, three restrooms, and a conference room—providing a balanced mix of administrative and operational space. Located minutes from major freeways, including Loop 101, Loop 202, and I-10, the site offers seamless connectivity to Phoenix Sky Harbor International Airport and the broader metro area. Its frontage on Rio Salado Parkway enhances brand visibility and accessibility for clients and vendors. Zoned I-3 by the City of Tempe, the property supports a wide range of industrial uses, offering flexibility for growing enterprises. With robust power capacity (120/280V, 400 AMPS, 3 Phase) and a competitive lease rate of $7,500 per month MG, this asset delivers both value and operational efficiency in a thriving business corridor.
- Le taux inscrit peut ne pas comprendre certains services publics, les services de bâtiment et les dépenses immobilières.
- Aire de réception
- 3 accès plain-pied
| Espace | Taille | Terme | Taux de location | Utilisation de l’espace | État | Disponible |
| 1er étage | 18 000 pi² | Négociable | 6,98 $ CAD/pi²/an 0,58 $ CAD/pi²/mois 125 633 $ CAD/an 10 469 $ CAD/mois | Industriel | construction partielle | Maintenant |
1er étage
| Taille |
| 18 000 pi² |
| Terme |
| Négociable |
| Taux de location |
| 6,98 $ CAD/pi²/an 0,58 $ CAD/pi²/mois 125 633 $ CAD/an 10 469 $ CAD/mois |
| Utilisation de l’espace |
| Industriel |
| État |
| construction partielle |
| Disponible |
| Maintenant |
1er étage
| Taille | 18 000 pi² |
| Terme | Négociable |
| Taux de location | 6,98 $ CAD/pi²/an |
| Utilisation de l’espace | Industriel |
| État | construction partielle |
| Disponible | Maintenant |
Positioned along Rio Salado Parkway in Tempe, this ±18,000 SF industrial building offers exceptional functionality and visibility for businesses seeking a strategic location in the heart of the East Valley. The property features a 16-foot clear height, three grade-level doors, and a fenced yard, making it ideal for distribution, light manufacturing, or service operations. The warehouse is EVAP cooled, ensuring cost-effective climate control, while the office component includes seven private offices, a reception area, a bullpen, three restrooms, and a conference room—providing a balanced mix of administrative and operational space. Located minutes from major freeways, including Loop 101, Loop 202, and I-10, the site offers seamless connectivity to Phoenix Sky Harbor International Airport and the broader metro area. Its frontage on Rio Salado Parkway enhances brand visibility and accessibility for clients and vendors. Zoned I-3 by the City of Tempe, the property supports a wide range of industrial uses, offering flexibility for growing enterprises. With robust power capacity (120/280V, 400 AMPS, 3 Phase) and a competitive lease rate of $7,500 per month MG, this asset delivers both value and operational efficiency in a thriving business corridor.
- Le taux inscrit peut ne pas comprendre certains services publics, les services de bâtiment et les dépenses immobilières.
- 3 accès plain-pied
- Aire de réception
APERÇU DE LA PROPRIÉTÉ
This well-positioned industrial property along Rio Salado Parkway in Tempe offers a highly functional design and excellent visibility in one of the East Valley’s most dynamic business corridors. The building features a 16-foot clear height, three grade-level doors, and a fenced yard, providing flexibility for a range of industrial uses including distribution, light manufacturing, and service operations. Inside, the space is EVAP cooled for efficient climate control and includes a thoughtfully designed office component with seven private offices, a reception area, a bullpen, three restrooms, and a conference room. Robust power capacity of 120/280V, 400 AMPS, 3 Phase supports demanding operational needs, while the property’s I-3 zoning by the City of Tempe allows for diverse industrial applications. With prominent frontage on Rio Salado Parkway and convenient access to Loop 101, Loop 202, and I-10, this location ensures seamless connectivity to Phoenix Sky Harbor International Airport and the greater metro area, making it an ideal choice for businesses seeking both functionality and strategic positioning.
FAITS SUR L’INSTALLATION ENTREPÔT
SÉLECTIONNER DES LOCATAIRES
- ÉTAGE
- NOM DU LOCATAIRE
- SECTEUR
- 1ᵉʳ
- Pipship LLC
- Services
Présenté par
2154 E Rio Salado Pky
Hmm, il semble y avoir eu une erreur lors de l’envoi de votre message. Veuillez réessayer.
Merci! Votre message a été envoyé.





