Se Connecter/S’inscrire
Votre courriel a été envoyé.
2155 Palm Bay Rd NE
Palm Bay, FL 32905
Woodlake Plaza II · Commerce de détail Propriété À louer
·
3 400 pi²


Certaines informations ont été traduites automatiquement.
Faits saillants
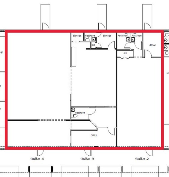
- Configuration ouverte, 1 bureau, 1 salle de bain
- Exposition à environ 30 000 VPD sur le chemin Palm Bay
- Beaucoup de places de stationnement avec 129 places de stationnement communes à Plaza
- Tapis et plafonds suspendants partout
- Zonage commercial communautaire (CC) de la ville de Palm Bay
- Est. 5,87$ /P/P OPEX (y compris l'eau)
Faits sur la propriété
À propos de la propriété
Situé dans le nord-est de Palm Bay, qui est la plus grande ville du comté animé de Brevard. La propriété est stratégiquement située sur Palm Bay Road, à proximité de l'US1, de la rue Babcock et de l'Interstate 95. Accès facile aux employeurs, aux écoles, aux résidences et aux plages environnantes que la région a à offrir. Parmi les employeurs environnants figurent L3Harris, Raytheon, Leonardo DRS et UPS, pour n'en nommer que quelques-uns. Faites de cette maison la future maison de votre entreprise dès aujourd'hui !
- Accès 24 heures
- Lot de coin
- Affichage
- CVCA contrôlé par le locataire
- Climatisation
1 de 10
Vidéos
Visite extérieure 3D Matterport
Visite 3D Matterport
Photos
Vue depuis la rue
Rue
Carte
