Se Connecter/S’inscrire
Votre courriel a été envoyé.
216 W Chicago St 17 600 pi² Bureau Immeuble Jonesville, MI 49250 517 146 $ CAD (29,38 $ CAD/pi²)



Certaines informations ont été traduites automatiquement.
Faits saillants de l'investissement
- Huge building with many possibilities for your company's development.
- Chicago Street is the main thoroughfare in Jonesville and sees a lot of daily traffic.
- Central location between Grand Rapids, Kalamazoo, Lansing, Ann Arbor, Toledo, and Fort Wayne.
- Ample and spacious parking spaces directly around building.
- Close to a signalized intersection, gas station with convenience store, Subway, McDonald's, and other local restaurants.
Résumé de l'annonce
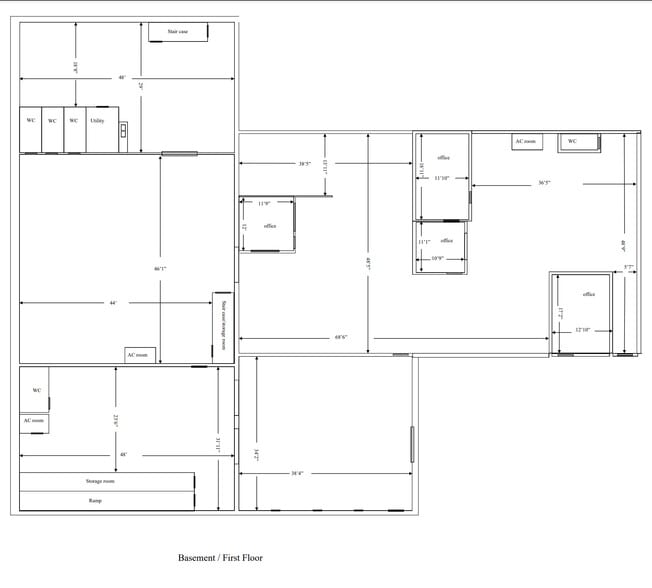
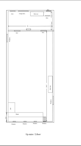
La propriété était auparavant utilisée comme bibliothèque, de sorte que l'utilisation comme bureau, commerce de détail ou spécialité est possible. À vendre et à louer. Modalités de location flexibles. La construction est négociable pour les bons locataires. La propriété entière peut être louée ou divisée en unités plus petites. C'est un grand bâtiment qui offre de nombreuses possibilités.
Faits sur la propriété
Type de vente
Investissement ou propriétaire utilisateur
Conditions de vente
Type de propriété
Taille du bâtiment
17 600 pi²
Classe d’immeuble
C
Année de construction/rénovation
1989/2013
Prix
517 146 $ CAD
Prix par pi²
29,38 $ CAD
Location
Unique
Hauteur du bâtiment
2 étages
Superficie de plancher typique
8 800 pi²
Coefficient d’occupation des sols de l’immeuble
0,27
Taille du lot
1,52 AC
Zonage
HC - Autoroute commerciale
Stationnement
67 places (3,81 places par 1 000 pi² loué)
Commodités
- Climatisation
Impôts fonciers
| Numéro de lot | 21-004-100-037-04-6-3 | Évaluation des bâtiments | 0 $ CAD |
| Évaluation du terrain | 0 $ CAD | Évaluation totale | 79 459 $ CAD |
Impôts fonciers
Numéro de lot
21-004-100-037-04-6-3
Évaluation du terrain
0 $ CAD
Évaluation des bâtiments
0 $ CAD
Évaluation totale
79 459 $ CAD
1 de 40
Vidéos
Visite extérieure 3D Matterport
Visite 3D Matterport
Photos
Vue depuis la rue
Rue
Carte
1 de 1
Présenté par
216 W Chicago St
Vous êtes déjà membre? Connectez-vous
Hmm, il semble y avoir eu une erreur lors de l’envoi de votre message. Veuillez réessayer.
Merci! Votre message a été envoyé.
Votre message a été envoyé !
Activez votre compte LoopNet dès maintenant pour suivre les propriétés, recevoir des alertes en temps réel, gagner du temps sur vos demandes futures et bien plus encore.

