Votre courriel a été envoyé.
Certaines informations ont été traduites automatiquement.
FAITS SAILLANTS
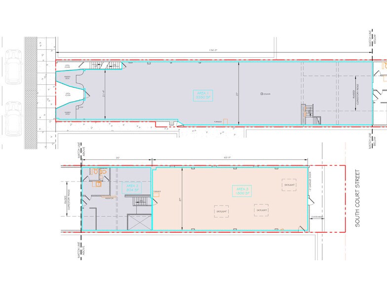
- Espace de magasin en état de coquille ouvert disponible.
- Les locaux peuvent être loués ensemble ou subdivisés en deux unités distinctes.
- Espace flex/entrepôt à l'arrière avec porte au volant.
Afficher les taux de location en
- ESPACE
- TAILLE
- TERME
- TAUX DE LOCATION
- TYPE DE LOYER
| Espace | Taille | Terme | Taux de location | Type de loyer | ||
| 1er étage, ste Front | 4 154 pi² | Négociable | Sur demande Sur demande Sur demande Sur demande | Négociable |
1er étage, ste Front
Space can also be subdivided into two separate suites. Owner is willing to build-to-suit for qualified tenant(s).
- Partiellement construit comme Espace de commerce de détail standard
- Situé en ligne avec d’autres commerces de détail
- Peut être associé à un ou plusieurs espaces supplémentaires pour obtenir jusqu’à 5 954 pi² d’espace adjacent.
- ESPACE
- TAILLE
- TERME
- TAUX DE LOCATION
- TYPE DE LOYER
| Espace | Taille | Terme | Taux de location | Type de loyer | ||
| 1er étage, ste Front | 4 154 pi² | Négociable | Sur demande Sur demande Sur demande Sur demande | Négociable | ||
| 1er étage - Rear | 1 800 pi² | Négociable | Sur demande Sur demande Sur demande Sur demande | Négociable |
1er étage, ste Front
Space can also be subdivided into two separate suites. Owner is willing to build-to-suit for qualified tenant(s).
- Partiellement construit comme Espace de commerce de détail standard
- Situé en ligne avec d’autres commerces de détail
- Peut être associé à un ou plusieurs espaces supplémentaires pour obtenir jusqu’à 5 954 pi² d’espace adjacent.
1er étage - Rear
Space can also be subdivided into two separate suites. Owner is willing to build-to-suit for qualified tenant(s).
- Peut être associé à un ou plusieurs espaces supplémentaires pour obtenir jusqu’à 5 954 pi² d’espace adjacent.
Types de loyers
Le type et le montant du loyer que le locataire (preneur) est tenu de payer au propriétaire (bailleur) sur la durée du bail sont négociés avant la signature du bail par les deux parties. Le type de loyer varie selon les services fournis. Par exemple, le prix d’un loyer hypernet est habituellement inférieur à celui d’un bail à service complet puisque le locataire est tenu d’assumer des dépenses additionnelles par rapport au loyer de base. Contactez le courtier inscripteur pour tout connaître sur les frais connexes et additionnels associés à chaque type de loyer.
1. Service complet: Un taux de location qui comprend des services standards liés à l’immeuble fournis par le propriétaire dans le cadre d’une location annuelle de base.
2. Loyer supernet: Le locataire paie seulement deux des frais de l’immeuble. Le propriétaire et le locataire déterminent ces frais spécifiques avant la signature du bail.
3. Loyer hypernet: Un bail en vertu duquel le locataire est responsable de tous les frais liés à sa part proportionnelle d’occupation de l’immeuble.
4. Brut modifié: Le loyer brut modifié désigne un type général de taux de location dans lequel le locataire est habituellement responsable de sa part proportionnelle d’un ou de plusieurs frais. C’est le propriétaire qui paie les frais restants. Considérez les structures tarifaires courantes suivantes applicables aux loyers bruts modifiés: 4. Plus les services: Un type de bail brut modifié suivant lequel le locataire est responsable de sa part proportionnelle des coûts des services publics, en plus du loyer. 4. Plus le nettoyage: Un type de bail brut modifié suivant lequel le locataire est responsable de sa part proportionnelle des coûts de nettoyage, en plus du loyer. 4. Plus l'électricité: Un type de bail brut modifié suivant lequel le locataire est responsable de sa part proportionnelle des coûts d’électricité, en plus du loyer. 4. Plus l’électricité et le nettoyage: Un type de bail brut modifié dans lequel le locataire est responsable de sa part proportionnelle des coûts d’électricité et de nettoyage, en plus du loyer. 4. Plus les services publics et le nettoyage: Un type de bail brut modifié dans lequel le locataire est responsable de sa part proportionnelle des coûts des services publics et de nettoyage, en plus du loyer. 4. Bail industriel brut: Un type de bail brut modifié dans lequel le locataire paie un ou plusieurs des frais, en plus du loyer. Le propriétaire et le locataire déterminent ces frais spécifiques avant la signature du bail.
5. L’électricité est à la charge du locataire: Le propriétaire paie pour tous les services et le locataire est responsable de sa propre utilisation de l’éclairage et des prises électriques dans l’espace qu’il occupe.
6. Négociable ou sur demande: Cette option est utilisée lorsque le contact de location ne précise pas le type de loyer ou de service.
7. À déterminer: À déterminer ; utilisé pour les immeubles dont le type de services ou de loyer n’est pas connu, souvent quand l’immeuble n’est pas encore construit.
FAITS SUR LA PROPRIÉTÉ
| Superficie totale disponible | 5 954 pi² | Superficie commerciale brute | 11 905 pi² |
| Type de propriété | Commerce de détail | Année de construction | 1900 |
| Superficie totale disponible | 5 954 pi² |
| Type de propriété | Commerce de détail |
| Superficie commerciale brute | 11 905 pi² |
| Année de construction | 1900 |
À PROPOS DE LA PROPRIÉTÉ
Excellent emplacement le long de la rue South George (Business I-83), à seulement deux pâtés de maisons au sud de Continental Square. L'espace disponible comprend une vitrine de vente au détail de 4 154 SF ainsi que 1 800 SF d'espace flexible et d'entrepôt avec une porte au volant à l'arrière. L'espace de vente au détail est en format coquille ouverte, y compris de nombreuses fenêtres donnant sur la rue South George, et un toit de moniteur au milieu de l'édifice offrant amplement de lumière naturelle dans tout l'espace. L'espace peut également être subdivisé en deux suites distinctes. Le propriétaire est prêt à construire en fonction des besoins des locataires qualifiés.
PRINCIPAUX DÉTAILLANTS À PROXIMITÉ
Présenté par
217 S George St
Hmm, il semble y avoir eu une erreur lors de l’envoi de votre message. Veuillez réessayer.
Merci! Votre message a été envoyé.










