Se Connecter/S’inscrire
Votre courriel a été envoyé.
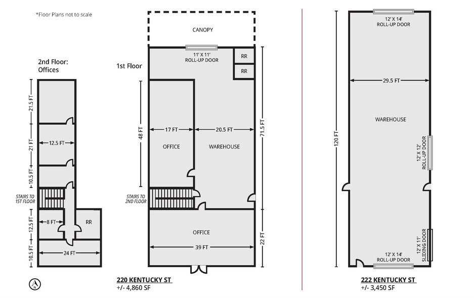
220-222 Kentucky St
Bakersfield, CA 93305
220 & 222 Kentucky St + 1010 Alta Vista Dr · Industriel Propriété À louer
·
8 310 pi²


Certaines informations ont été traduites automatiquement.
Faits saillants
- Fully fenced & partially paved yard
- Ample street parking available
- Yard with 4 access points
Caractéristiques
Baies d’entrée
1
Places de stationnement standard
4
Aperçu de la propriété
• Lot size: +/- 0.51 acres - 1010 Alta Vista Dr: +/- 0.29 acre Yard (not included in total sq ft) • Located on corner lot on Kentucky St & Alta Vista Dr near Downtown Bakersfield • Zoning: M-1 (Light Industrial), City of Bakersfield
Faits sur l’installation Entrepôt
Taille du bâtiment
8 310 pi²
Taille du lot
0,51 AC
Année de construction
1950
Construction
Métal
Alimentation électrique
Ampères: 200 Volts: 120-208 Phase: 3
Zonage
M-1 - Industriel léger
1 de 17
Vidéos
Visite extérieure 3D Matterport
Visite 3D Matterport
Photos
Vue depuis la rue
Rue
Carte
