Se Connecter/S’inscrire
Votre courriel a été envoyé.
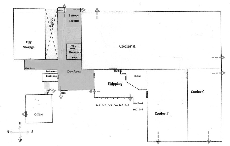
220 W Ewing Ave 68 070 pi² Industriel Immeuble South Bend, IN 46613 À vendre



Certaines informations ont été traduites automatiquement.
Faits saillants de l'investissement
- Occasion unique de posséder ou de louer une installation d'entreposage frigorifique et sec dans un emplacement idéal
Résumé de l'annonce
Cette installation d'entreposage frigorifique de 68 070 pi2 offre une combinaison polyvalente de congélateur, de glacière et d'espace d'entreposage sec. Il y a au total huit (8) quais de réception centraux (avec niveleurs) et deux (2) portes suspendues. Le bâtiment comprend de multiples sections de congélateur/glacière interconnectées d'environ 30 000 pieds 2, 15 000 pieds 2 et 10 000 pieds 2, ainsi qu'un entrepôt de stockage à sec dédié. Conçues pour un usage intensif, les zones de congélation et de réfrigération sont desservies par de l'équipement spécialisé et fournissent un revêtement de sol renforcé pour supporter des charges importantes. Les améliorations récentes comprennent un nouveau pavage en asphalte sur la voie d'accès menant au quai. Nouveau toit (2025) sur une section de glacière de 25 000 SF. Le grand site peut accueillir des espaces d'entreposage à l'extérieur et des possibilités d'agrandissement du bâtiment. Situation centrale avec un accès facile aux contournements US 31 et US 31.
Situé juste au sud du centre-ville de South Bend, IN, le 220 W Ewing Ave. offre un accès pratique aux principales voies de transport, y compris le contournement américain 20/31, la route à péage I-80/90 et l'US 31 South. Située dans le comté de St. Joseph — classée deuxième au pays pour la distribution sur route — la propriété offre la capacité
atteindre plus de 4 millions de personnes en une seule journée de route, ce qui en fait un endroit idéal pour les opérations de logistique et de distribution.
Situé juste au sud du centre-ville de South Bend, IN, le 220 W Ewing Ave. offre un accès pratique aux principales voies de transport, y compris le contournement américain 20/31, la route à péage I-80/90 et l'US 31 South. Située dans le comté de St. Joseph — classée deuxième au pays pour la distribution sur route — la propriété offre la capacité
atteindre plus de 4 millions de personnes en une seule journée de route, ce qui en fait un endroit idéal pour les opérations de logistique et de distribution.
Faits sur la propriété
| Type de vente | Investissement ou propriétaire utilisateur | Année de construction/rénovation | 1944/2012 |
| Type de propriété | Industriel | Location | Unique |
| Sous-type de propriété | Entrepot de réfrigération | Ratio de stationnement | 0,44/1 000 pi² |
| Classe d’immeuble | B | Effacer hauteur du plafond | 24’ |
| Taille du lot | 8,42 AC | Nbre de quais à portes élevées/de chargement | 8 |
| Aire du bâtiment louable | 68 070 pi² | Nbre d’entrées dans les portes/au niveau du sol | 2 |
| Nombre d’étages | 1 | ||
| Zonage | GI - Industrielles | ||
| Type de vente | Investissement ou propriétaire utilisateur |
| Type de propriété | Industriel |
| Sous-type de propriété | Entrepot de réfrigération |
| Classe d’immeuble | B |
| Taille du lot | 8,42 AC |
| Aire du bâtiment louable | 68 070 pi² |
| Nombre d’étages | 1 |
| Année de construction/rénovation | 1944/2012 |
| Location | Unique |
| Ratio de stationnement | 0,44/1 000 pi² |
| Effacer hauteur du plafond | 24’ |
| Nbre de quais à portes élevées/de chargement | 8 |
| Nbre d’entrées dans les portes/au niveau du sol | 2 |
| Zonage | GI - Industrielles |
Services publics
- Éclairage - Halogénure métallique
- Eau - Ville
- Égout - Ville
1 1
Assez praticable à pied
40/100
Exceptionnellement facile d’accès en voiture
100/100
Transports en commun limités
30/100
Moyennement praticable en vélo
60/100
Impôts fonciers
| Numéro de lot | 71-08-24-101-003.000-026 | Évaluation des bâtiments | 831 963 $ CAD |
| Évaluation du terrain | 119 940 $ CAD | Évaluation totale | 951 904 $ CAD |
Impôts fonciers
Numéro de lot
71-08-24-101-003.000-026
Évaluation du terrain
119 940 $ CAD
Évaluation des bâtiments
831 963 $ CAD
Évaluation totale
951 904 $ CAD
1 de 19
Vidéos
Visite extérieure 3D Matterport
Visite 3D Matterport
Photos
Vue depuis la rue
Rue
Carte
1 de 1
Présenté par
220 W Ewing Ave
Vous êtes déjà membre? Connectez-vous
Hmm, il semble y avoir eu une erreur lors de l’envoi de votre message. Veuillez réessayer.
Merci! Votre message a été envoyé.
