Votre courriel a été envoyé.
Certaines informations ont été traduites automatiquement.
Faits saillants
- Premier South of Market location with immediate access to major transit, neighborhood amenities, and freeway connectivity.
- Highly efficient, open floor plates with continuous window lines that provide exceptional natural light and panoramic Bay views.
- Modern Class A tower offering expansive outdoor spaces, a private roof terrace, and a robust amenity suite including a tenant lounge, fitness center,
- Premium tenant conveniences including secure bike parking, building showers, underground parking, and fully furnished, spec-level suites.
Tous les espaces disponibles(1)
Afficher les taux de location en
- Espace
- Taille
- Terme
- Taux de location
- Utilisation de l’espace
- Aménagement
- Disponible
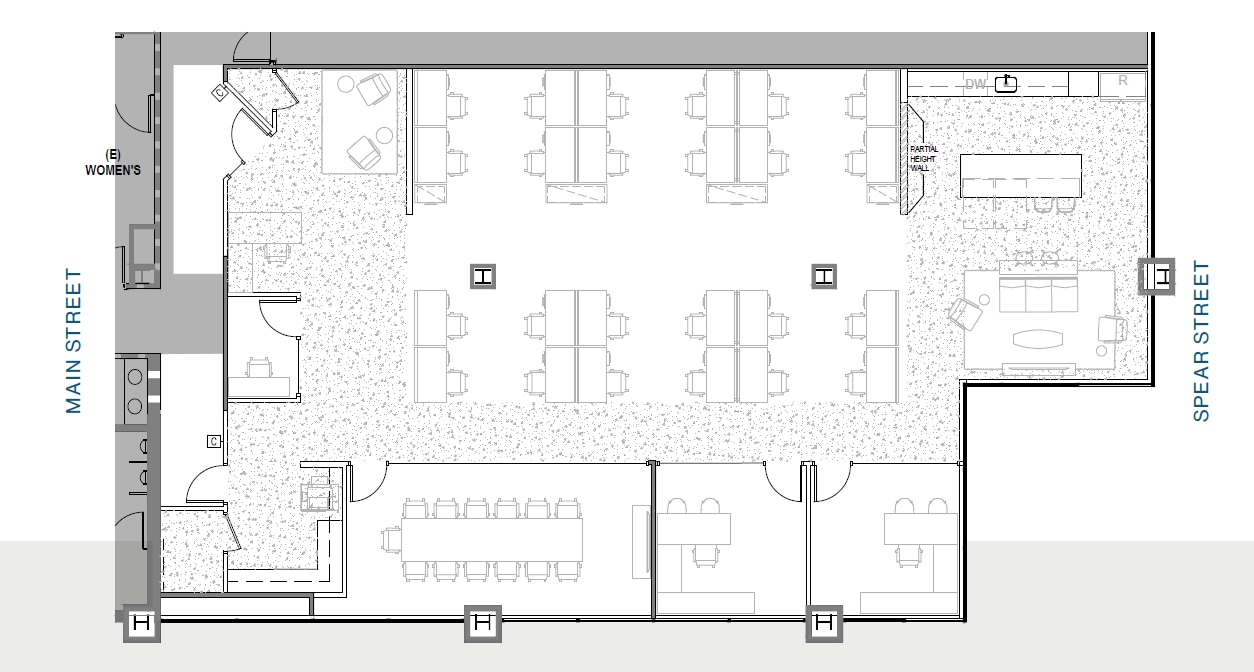
This brand new spec suite underway features creative ceilings and comes fully furnished to support an efficient and elevated workspace experience. The layout includes six private offices, one large conference room, and a dedicated phone room, providing flexibility for team collaboration and focused work. A kitchen and break area offer convenient in-suite amenities, while a welcoming reception area creates a polished first impression for guests and staff alike.
- Disposition du plan d’étage ouverte en général
- 1 salle de conférence
- Cuisine
- 6 bureaux privés
- Plafonds finis: 11’
| Espace | Taille | Terme | Taux de location | Utilisation de l’espace | Aménagement | Disponible |
| 4e étage, ste 400 | 4 102 pi² | Négociable | Sur demande Sur demande Sur demande Sur demande | Bureau | selon spécifications | Maintenant |
4e étage, ste 400
| Taille |
| 4 102 pi² |
| Terme |
| Négociable |
| Taux de location |
| Sur demande Sur demande Sur demande Sur demande |
| Utilisation de l’espace |
| Bureau |
| Aménagement |
| selon spécifications |
| Disponible |
| Maintenant |
4e étage, ste 400
| Taille | 4 102 pi² |
| Terme | Négociable |
| Taux de location | Sur demande |
| Utilisation de l’espace | Bureau |
| Aménagement | selon spécifications |
| Disponible | Maintenant |
This brand new spec suite underway features creative ceilings and comes fully furnished to support an efficient and elevated workspace experience. The layout includes six private offices, one large conference room, and a dedicated phone room, providing flexibility for team collaboration and focused work. A kitchen and break area offer convenient in-suite amenities, while a welcoming reception area creates a polished first impression for guests and staff alike.
- Disposition du plan d’étage ouverte en général
- 6 bureaux privés
- 1 salle de conférence
- Plafonds finis: 11’
- Cuisine
Aperçu de la propriété
Cet immeuble de bureaux de 389 310 pieds carrés arbore un certain nombre de caractéristiques, dont un accès 24 heures sur 24, une terrasse panoramique, un centre de conditionnement physique, des douches et des casiers, et un bureau de conciergerie à l'avant.
- Accès 24 heures
- Concierge
- Installations de conférences
- Centre de conditionnement physique
- Gestionnaire d'immeuble sur place
- Système de sécurité
- Bord de l’eau
- Certifié Energy Star
- Réception
- Terrasse sur le toit
- Station de recharge de voiture
- Terrasse ouverte sur le ciel
- Sièges extérieurs
Faits sur la propriété
Durabilité
Durabilité
Certification LEED Établi par le U.S. Green Building Council (USGBC, Conseil américain du bâtiment durable), le programme de certification LEED (Leadership in Energy and Environmental Design) est axé sur la conception, la construction, l’exploitation et l’entretien de bâtiments, de maisons et de quartiers écologiques. Sa vocation est d’aider les propriétaires et les exploitants à adopter des pratiques écoresponsables et à utiliser les ressources de façon efficace. La certification LEED est un symbole mondialement reconnu de réussite et de leadership en matière de développement durable. Pour obtenir la certification LEED, un projet doit obtenir des points en respectant des conditions préalables et un barème de crédits qui tiennent compte des émissions de carbone, de l’énergie, de l’eau, des déchets, du transport, des matériaux, de la santé et de la qualité de l’environnement intérieur. Les projets passent par un processus de vérification et d’évaluation et reçoivent un pointage correspondant à un niveau de certification LEED: Platine (80 points et plus) Or (60 à 79 points) Silver (50-59 points) Certifié (40 à 49 points)
ENERGY STAR® Géré par la U.S. Environmental Protection Agency (EPA, L’agence des États-Unis pour la protection de l’environnement) et le Département américain de l’énergie (DOE), le programme Energy Star fait la promotion de l’efficacité énergétique et fournit des renseignements simples, crédibles et objectifs sur lesquels les consommateurs et les entreprises peuvent s’appuyer pour prendre des décisions éclairées. Des milliers d’organisations industrielles, commerciales, gouvernementales, locales et de services publics travaillent de concert avec l’EPA afin de fournir des solutions d’efficacité énergétique économiques protégeant le climat et la santé publique tout en améliorant la qualité de l’air. La cote Energy Star compare la performance énergétique d’un bâtiment à celle de bâtiments similaires à l’échelle nationale et tient compte des différences dans les conditions d’exploitation, des données météorologiques régionales et autres considérations importantes. Comme la certification est renouvelée annuellement, chaque immeuble doit maintenir un rendement élevé pour conserver son titre. Pour être admissible à la certification Energy Star, un bâtiment doit obtenir une cote de 75 ou plus sur l’échelle de 1 à 100 de l’EPA, indiquant qu’il offre un rendement supérieur à au moins 75 % des bâtiments comparables à l’échelle nationale. Cette cote Energy Star d’un à 100 est calculée selon la consommation d’énergie réelle d’un bâtiment au moyen de l’outil Energy Star Portfolio Manager de l’EPA.
Présenté par
221 Main | 221 Main St
Hmm, il semble y avoir eu une erreur lors de l’envoi de votre message. Veuillez réessayer.
Merci! Votre message a été envoyé.





