Votre courriel a été envoyé.
Fort Lowell Professional Offices 2210 E Fort Lowell Rd 14 500 pi² 100% Loué Bureau Immeuble Tucson, AZ 85719 3 038 978 $ CAD (209,58 $ CAD/pi²) 8,38% Taux de capitalisation



Certaines informations ont été traduites automatiquement.
FAITS SAILLANTS DE L'INVESTISSEMENT
- Floor to ceiling glass
- Beautiful north-facing mountain views with great natural light
- Outstanding building & monument signage
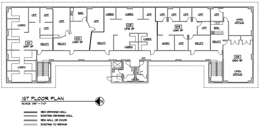
- Private offices, multiple open work areas, conference & training rooms, break rooms
- Upgraded interior finishes throughout
- Convenient location & ease of access
RÉSUMÉ DE L'ANNONCE
Owner Occupy
There is an opportunity for the owner to occupy the second floor of 7,250 sq ft with the first floor of 7,250 sq ft leased through August 2028. First floor rent is $144,000 annually.
Investment
Based on obtaining a tenant on the same rent as the 1st floor, Pro forma NOI for 2026: $183,927.09. Seller currently occupies second floor and may be willing to sign a lease under negotiated terms. Pro forma cap rate: 8.38%
FAITS SUR LA PROPRIÉTÉ
COMMODITÉS
- Affichage
- Balcon
PRINCIPAUX LOCATAIRES
- LOCATAIRE
- SECTEUR
- pi² OCCUPÉ
- LOYER/pi²
- TYPE DE BAIL
- FIN DU BAIL
- Sandoval Creative
- Services professionnels, scientifiques et techniques
- 7 250 pi²
- -
- Brut modifié
- Août 2028
| LOCATAIRE | SECTEUR | pi² OCCUPÉ | LOYER/pi² | TYPE DE BAIL | FIN DU BAIL | |
| Sandoval Creative | Services professionnels, scientifiques et techniques | 7 250 pi² | - | Brut modifié | Août 2028 |
DISPONIBILITÉ DES ESPACES
- ESPACE
- TAILLE
- UTILISATION DE L’ESPACE
- ÉTAT
- DISPONIBLE
La meilleure façon d'apprécier cet espace de bureau magnifiquement aménagé est de le visiter en personne. Anciennement occupé par une entreprise minière mondiale, aucun détail n'a été négligé lors de sa conception. Des bureaux spacieux aux espaces ouverts, en passant par les zones collaboratives et les salles de conférence, le tout est sublimé par des fenêtres du sol au plafond qui offrent une vue imprenable sur la beauté naturelle des montagnes Catalina. Situé au centre, à l'intersection de Fort Lowell et Campbell, il bénéficie d'un excellent accès à tous les coins de la ville. Sécurisé par un portail automatique et un accès par carte magnétique. Stationnement couvert en abondance. Le deuxième étage est desservi par un ascenseur. Cette propriété est également disponible à l'achat.
| Espace | Taille | Utilisation de l’espace | État | Disponible |
| 2e étage | 2 777 à 7 250 pi² | Bureau | construction complète | 60 jours |
2e étage
| Taille |
| 2 777 à 7 250 pi² |
| Utilisation de l’espace |
| Bureau |
| État |
| construction complète |
| Disponible |
| 60 jours |
2e étage
| Taille | 2 777 à 7 250 pi² |
| Utilisation de l’espace | Bureau |
| État | construction complète |
| Disponible | 60 jours |
La meilleure façon d'apprécier cet espace de bureau magnifiquement aménagé est de le visiter en personne. Anciennement occupé par une entreprise minière mondiale, aucun détail n'a été négligé lors de sa conception. Des bureaux spacieux aux espaces ouverts, en passant par les zones collaboratives et les salles de conférence, le tout est sublimé par des fenêtres du sol au plafond qui offrent une vue imprenable sur la beauté naturelle des montagnes Catalina. Situé au centre, à l'intersection de Fort Lowell et Campbell, il bénéficie d'un excellent accès à tous les coins de la ville. Sécurisé par un portail automatique et un accès par carte magnétique. Stationnement couvert en abondance. Le deuxième étage est desservi par un ascenseur. Cette propriété est également disponible à l'achat.
Impôts fonciers
| Numéro de lot | 112-05-019B | Évaluation des bâtiments | 0 $ CAD |
| Évaluation du terrain | 0 $ CAD | Évaluation totale | 388 804 $ CAD |
Impôts fonciers
Présenté par
John Hamner
Fort Lowell Professional Offices | 2210 E Fort Lowell Rd
Hmm, il semble y avoir eu une erreur lors de l’envoi de votre message. Veuillez réessayer.
Merci! Votre message a été envoyé.



