Votre courriel a été envoyé.
2211 F St
Sacramento, CA 95816
Rite Aid · Commerce de détail Propriété À louer
·
19 160 pi²


Certaines informations ont été traduites automatiquement.
Faits saillants
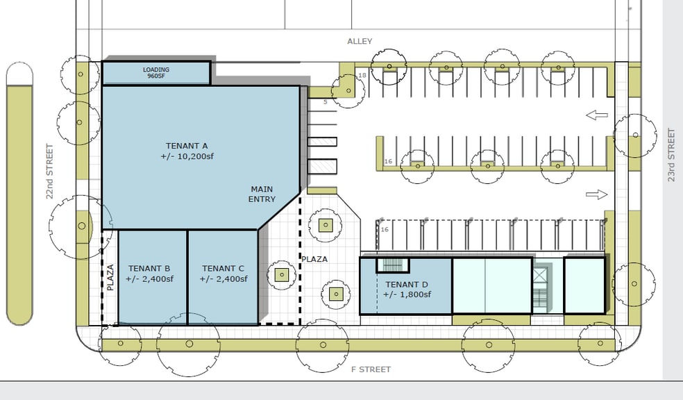
- Bâtiment autoportant de ±19 160 pi2 divisible à ±10 000 pi2 sur un terrain de ±50 376 pi2
- Stationnement inclus avec l'édifice
- Possibilité de conversion à la vente au détail, au bureau ou aux services médicaux
- Quai de chargement
- Bonne visibilité, bonne signalisation, à l'intersection avec signalisation
Faits sur la propriété
| Superficie totale disponible | 19 160 pi² | Superficie commerciale brute | 19 160 pi² |
| Type de propriété | Commerce de détail | Année de construction | 1965 |
| Sous-type de propriété | Pharmacie | Ratio de stationnement | 2,71/1 000 pi² |
| Superficie totale disponible | 19 160 pi² |
| Type de propriété | Commerce de détail |
| Sous-type de propriété | Pharmacie |
| Superficie commerciale brute | 19 160 pi² |
| Année de construction | 1965 |
| Ratio de stationnement | 2,71/1 000 pi² |
À propos de la propriété
Le site profite du fort emploi diurne et de la densité de la population résidentielle dans la région, de sa proximité de l'American River Parkway, de plusieurs parcs récréatifs, dont le parc McKinley, le Sutter's Fort and California State Indian Museum, l'Hôpital général Sutter, l'Hôpital général Mercy, ainsi que plusieurs écoles, le Cannery Business Park et le trafic sortant de l'Interstate 80 vers le State Capitol. Ce bâtiment autoportant de ±19 160 pieds carrés est situé dans le centre de Sacramento, à l'angle nord-est de la rue F et de la 22e Rue. La propriété bénéficie d'une excellente visibilité à une intersection signalée avec une forte synergie de vente au détail dans les environs.
