Votre courriel a été envoyé.
22280-22330 S Scotland Ct 30 000 pi² d'espace disponible • Industriel • 4 étoiles • Queen Creek, AZ 85142



Certaines informations ont été traduites automatiquement.
Faits saillants
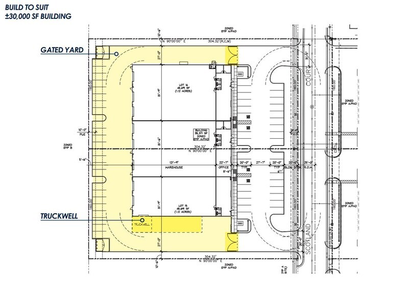
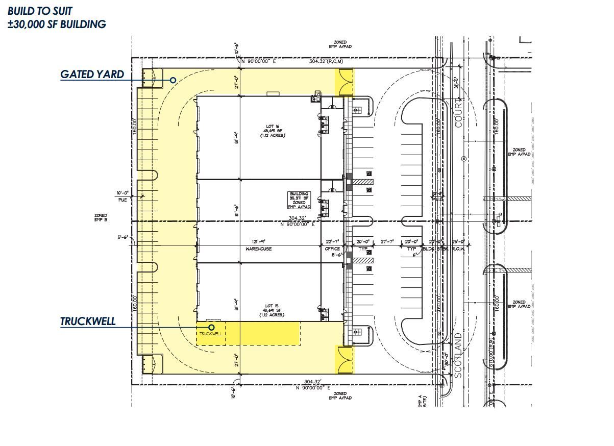
- Construire en fonction des occasions. Le propriétaire peut construire un bâtiment industriel pour répondre aux besoins d'une entreprise.
Tous les espaces disponibles(1)
Afficher les taux de location en
- Espace
- Taille
- Terme
- Taux de location
- Utilisation de l’espace
- Aménagement
- Disponible
Build to suit opportunity. Owner can build an industrial building to suit a company's needs.
| Espace | Taille | Terme | Taux de location | Utilisation de l’espace | Aménagement | Disponible |
| 1er étage - Bldg | 30 000 pi² | Négociable | Sur demande Sur demande Sur demande Sur demande | Industriel | construction complète | 2027-02-01 |
1er étage - Bldg
| Taille |
| 30 000 pi² |
| Terme |
| Négociable |
| Taux de location |
| Sur demande Sur demande Sur demande Sur demande |
| Utilisation de l’espace |
| Industriel |
| Aménagement |
| construction complète |
| Disponible |
| 2027-02-01 |
1er étage - Bldg
| Taille | 30 000 pi² |
| Terme | Négociable |
| Taux de location | Sur demande |
| Utilisation de l’espace | Industriel |
| Aménagement | construction complète |
| Disponible | 2027-02-01 |
Build to suit opportunity. Owner can build an industrial building to suit a company's needs.
Aperçu de la propriété
La demande industrielle demeure stable dans la région de Chandler N/ Gilbert Submarket comme une foule de distribution, avancé la fabrication et les locataires des centres de données remplissent les propriétés. Le sous-marché présente des avantages clés en matière d'infrastructure qui attirent les utilisateurs industriels, comme la passerelle Phénix-Mesa Aéroport, accès facile à l'autoroute et Union Pacific Chemin de fer. De plus, le statut de la région en tant qu'opportunité ainsi que d'autres initiatives de politique publique comme les Pecos Zone de fabrication de pointe et technologie Elliot Road Corridor offre un traitement réglementaire favorable aux exploitants et aux constructeurs. Ces facteurs ont contribué à l'établissement d'une une absorption nette record de 3,8 millions de FS au cours des 12 dernières années mois, bien au-dessus de la moyenne annuelle quinquennale de 1,5 millions de SF. Les promoteurs ont répondu à cette demande accrue avec le pipeline de construction le plus agressif, le sous-marché a déjà vu. Environ 10,2 millions de FS industriels l'espace est actuellement en cours, ce qui permettra d'élargir le sous-marché inventaires de 35,5 % une fois livrés. Une grande partie de la des locaux sont construits sans qu'un locataire ne soit en place en tant que promoteurs parier gros sur les perspectives de croissance du sous-marché. L'activité d'investissement est également à des niveaux records. Approximativement Des actifs industriels d'une valeur de 772 millions de dollars ont changé de mains ici, au cours des 12 derniers mois, à la fois en tant qu'institutionnel et grand les acheteurs privés ciblent le sous-marché. La région est forte le rendement de la propriété et les rendements relativement plus élevés lorsque comparativement aux marchés californiens, il s'agit d'un investissement attrayant option.
Faits sur l’installation entrepôt
Présenté par
22280-22330 S Scotland Ct
Hmm, il semble y avoir eu une erreur lors de l’envoi de votre message. Veuillez réessayer.
Merci! Votre message a été envoyé.


