Se Connecter/S’inscrire
Votre courriel a été envoyé.
2240 Fleetwood Dr
Riverside, CA 92509
Industriel Propriété À vendre


Certaines informations ont été traduites automatiquement.
Faits saillants de l'investissement
- Entitlements are expected to be completed between Q2 and Q3 of 2025.
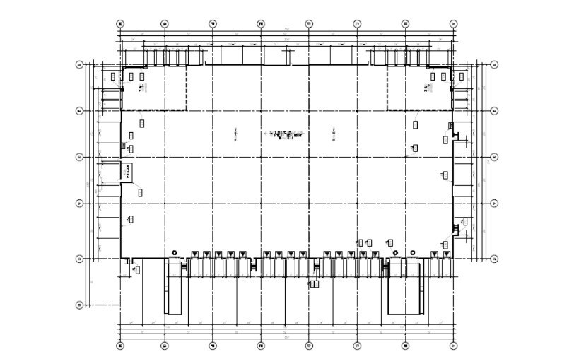
- The development will feature an 81,500 square foot industrial building.
- The property is situated on approximately 9.8 acres, with an estimated 6.68 to 8.18 acres being usable, subject to buyer verification.
Résumé de l'annonce
The property is situated on approximately 9.8 acres, with an estimated 6.68 to 8.18 acres being usable, subject to buyer verification. Entitlements for the development are expected to be completed between Q2 and Q3 of 2025. Once finalized, the site will feature an 81,500 square foot industrial building.
Faits sur la propriété
| Type de vente | Investissement | Aire du bâtiment louable | 81 500 pi² |
| Type de propriété | Industriel | Nombre d’étages | 1 |
| Classe d’immeuble | B | Location | Unique |
| Taille du lot | 9,80 AC | Effacer hauteur du plafond | 30’ |
| État de la construction | Proposé | Nbre d’entrées dans les portes/au niveau du sol | 3 |
| Zonage | MH - Fabrication lourde | ||
| Type de vente | Investissement |
| Type de propriété | Industriel |
| Classe d’immeuble | B |
| Taille du lot | 9,80 AC |
| État de la construction | Proposé |
| Aire du bâtiment louable | 81 500 pi² |
| Nombre d’étages | 1 |
| Location | Unique |
| Effacer hauteur du plafond | 30’ |
| Nbre d’entrées dans les portes/au niveau du sol | 3 |
| Zonage | MH - Fabrication lourde |
Impôts fonciers
| Numéros de lot | Évaluation des bâtiments | 0 $ CAD | |
| Évaluation du terrain | 8 579 276 $ CAD | Évaluation totale | 8 579 276 $ CAD |
Impôts fonciers
Numéros de lot
Évaluation du terrain
8 579 276 $ CAD
Évaluation des bâtiments
0 $ CAD
Évaluation totale
8 579 276 $ CAD
1 de 4
Vidéos
Visite extérieure 3D Matterport
Visite 3D Matterport
Photos
Vue depuis la rue
Rue
Carte
