Votre courriel a été envoyé.
2250 Taylor Ranch Trl - 14 ac US 41 in Venice Lot • Terrain commercial • 14 Acres • Venice, FL 34293



Certaines informations ont été traduites automatiquement.
Faits saillants de l'investissement
- Prime 14± acre site with entitlements for senior housing or healthcare development
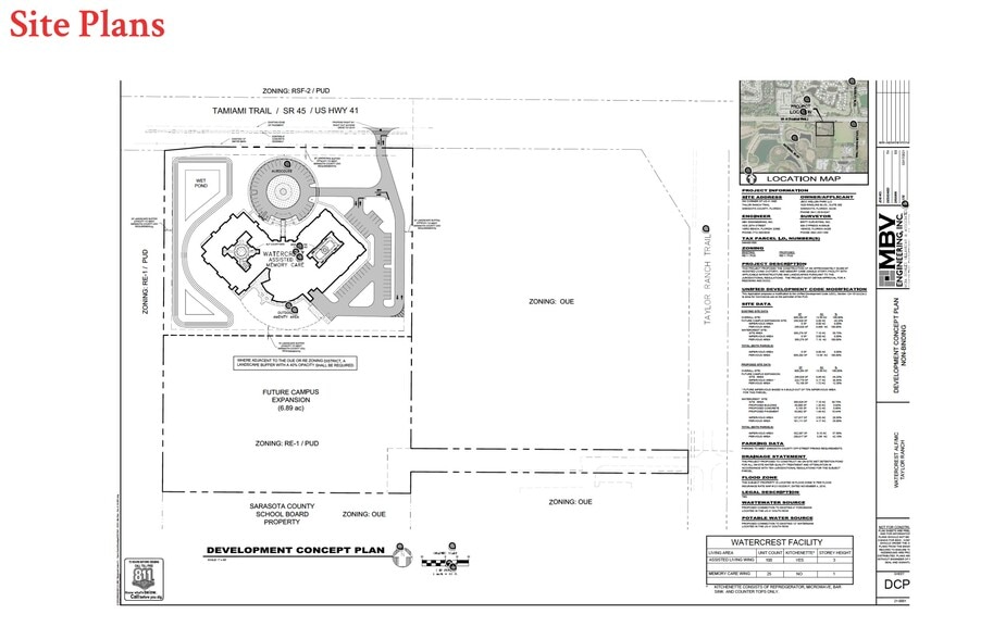
- Zoned RE-1/PUD allowing up to 170,000 SF and 119 assisted living units
- Convenient access to downtown Venice, Wellen Park, and Englewood
- Excellent visibility along U.S. 41 with 32,500 AADT and signalized intersection access
- Close to Sarasota Memorial Hospital–Venice Campus and major residential communities
- Strong demographics with high household incomes and growing population base
Résumé de l'annonce
The site benefits from proximity to established neighborhoods, new residential growth, and the Sarasota Memorial Hospital–Venice Campus, providing convenient access for future residents and staff. Located just south of SR 776, the property offers seamless access to downtown Venice, Wellen Park, and Englewood. Surrounding amenities include retail centers, dining, and recreational options, enhancing the appeal for future development. With entitlements in place and strong demographic trends, this property represents a rare investment opportunity in a thriving region.
Faits sur la propriété
| Type de vente | Investissement | Sous-type de propriété | Terrain commercial |
| Nombre de lots | 1 | Taille totale du lot | 14,00 AC |
| Type de propriété | Terrain | ||
| Zonage | RE1 - Residential Estate | ||
| Type de vente | Investissement |
| Nombre de lots | 1 |
| Type de propriété | Terrain |
| Sous-type de propriété | Terrain commercial |
| Taille totale du lot | 14,00 AC |
| Zonage | RE1 - Residential Estate |
1 Lot disponible
Lot
| Taille du lot | 14,00 AC |
| Taille du lot | 14,00 AC |
This 14± acre development site offers a prime opportunity along U.S. 41 (Tamiami Trail) in Venice, Sarasota County, one of Florida’s fastest-growing Gulf Coast markets.
Description
PROPERTY DESCRIPTION - The opportunity is to acquire 14± acres along U.S. 41 in Venice, Sarasota County. Zoned RE-1/PUD, the property allows for up to 190,000 square feet and 119 assisted living and memory care units. With entitlements in place, the site is well suited for senior housing or healthcare-related development in a growing Gulf Coast market. LOCATION DESCRIPTION - The property offers excellent visibility along U.S. 41 (Tamiami Trail) just south of SR 776 in south Venice. It lies near established neighborhoods, new residential growth, and the Sarasota Memorial Hospital–Venice Campus, providing convenient access for residents and staff. The site’s location along a major corridor connects it to downtown Venice, Wellen Park, and Englewood. MUNICIPALITY - Sarasota County PROPERTY SIZE- 7.1 Acres ZONING - RE-1/PUD PARCEL ID - 0464001000
Impôts fonciers
| Numéro de lot | 0464-00-1000 | Évaluation des bâtiments | 0 $ CAD |
| Évaluation du terrain | 0 $ CAD | Évaluation totale | 856 402 $ CAD |
Impôts fonciers
Présenté par
2250 Taylor Ranch Trl - 14 ac US 41 in Venice
Hmm, il semble y avoir eu une erreur lors de l’envoi de votre message. Veuillez réessayer.
Merci! Votre message a été envoyé.

