Votre courriel a été envoyé.
Ascension Providence Rochester Building 2251 N Squirrel Rd 1 295–6 155 pi² d'espace disponible • Bureau • Auburn Hills, MI 48326



Certaines informations ont été traduites automatiquement.
Faits saillants
- Prime Class A medical office building with immediate I-75 access.
- Adjacent to Oakland University, offering exposure to a strong local demographic.
- Highly visible, professionally managed property in Auburn Hills’ thriving business corridor.
- Suites available in multiple sizes, ideal for medical or professional use.
- Ample parking with a 5:1,000 SF ratio and suite entry signage options.
- Located near an affluent residential base and diverse commercial amenities.
Tous les espaces disponibles(4)
Afficher les taux de location en
- Espace
- Taille
- Terme
- Taux de location
- Utilisation de l’espace
- Aménagement
- Disponible
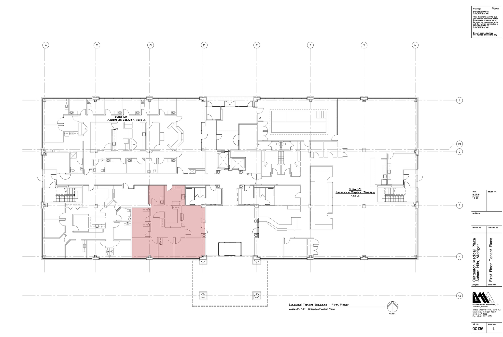
Class “A” medical office building located in the heart of Auburn Hills.
- Le taux de location ne comprend pas les services publics, les services de bâtiment ou les dépenses immobilières.
- Le taux de location ne comprend pas les services publics, les services de bâtiment ou les dépenses immobilières.
- 4 bureaux privés
- Partiellement construit comme Bureau standard
- Espace en excellent état
- Le taux de location ne comprend pas les services publics, les services de bâtiment ou les dépenses immobilières.
- Disposition du plan d’étage ouverte en général
- Partiellement construit comme Bureau standard
- Espace en excellent état
- Le taux de location ne comprend pas les services publics, les services de bâtiment ou les dépenses immobilières.
- Disposition du plan d’étage ouverte en général
- 1 salle de conférence
- Partiellement construit comme Bureau standard
- 4 bureaux privés
- Espace en excellent état
| Espace | Taille | Terme | Taux de location | Utilisation de l’espace | Aménagement | Disponible |
| 1er étage, ste 105 | 1 635 pi² | Négociable | 27,06 $ CAD/pi²/an 2,25 $ CAD/pi²/mois 44 239 $ CAD/an 3 687 $ CAD/mois | Bureau | - | Maintenant |
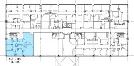
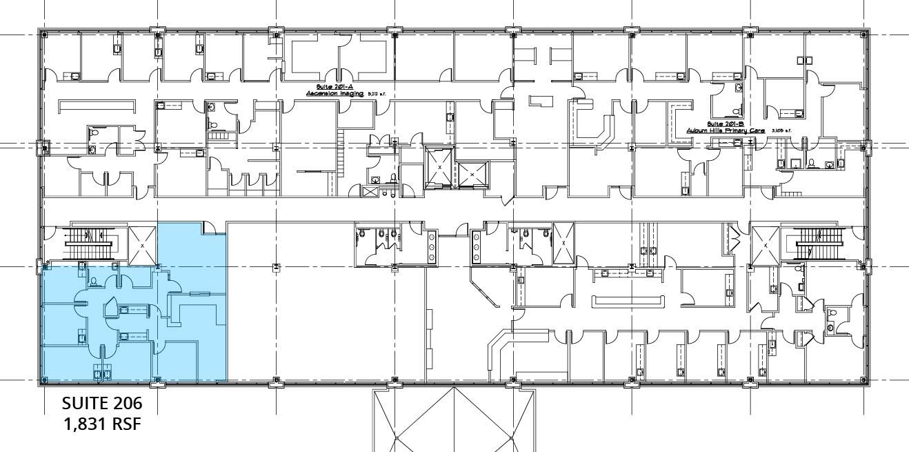
| 2e étage, ste 206 | 1 839 pi² | Négociable | 27,06 $ CAD/pi²/an 2,25 $ CAD/pi²/mois 49 759 $ CAD/an 4 147 $ CAD/mois | Bureau | construction partielle | Maintenant |
| 3e étage, ste 303 | 1 295 pi² | Négociable | 27,06 $ CAD/pi²/an 2,25 $ CAD/pi²/mois 35 039 $ CAD/an 2 920 $ CAD/mois | Bureau | construction partielle | Maintenant |
| 3e étage, ste 310 | 1 386 pi² | Négociable | 27,06 $ CAD/pi²/an 2,25 $ CAD/pi²/mois 37 502 $ CAD/an 3 125 $ CAD/mois | Bureau | construction partielle | Maintenant |
1er étage, ste 105
| Taille |
| 1 635 pi² |
| Terme |
| Négociable |
| Taux de location |
| 27,06 $ CAD/pi²/an 2,25 $ CAD/pi²/mois 44 239 $ CAD/an 3 687 $ CAD/mois |
| Utilisation de l’espace |
| Bureau |
| Aménagement |
| - |
| Disponible |
| Maintenant |
2e étage, ste 206
| Taille |
| 1 839 pi² |
| Terme |
| Négociable |
| Taux de location |
| 27,06 $ CAD/pi²/an 2,25 $ CAD/pi²/mois 49 759 $ CAD/an 4 147 $ CAD/mois |
| Utilisation de l’espace |
| Bureau |
| Aménagement |
| construction partielle |
| Disponible |
| Maintenant |
3e étage, ste 303
| Taille |
| 1 295 pi² |
| Terme |
| Négociable |
| Taux de location |
| 27,06 $ CAD/pi²/an 2,25 $ CAD/pi²/mois 35 039 $ CAD/an 2 920 $ CAD/mois |
| Utilisation de l’espace |
| Bureau |
| Aménagement |
| construction partielle |
| Disponible |
| Maintenant |
3e étage, ste 310
| Taille |
| 1 386 pi² |
| Terme |
| Négociable |
| Taux de location |
| 27,06 $ CAD/pi²/an 2,25 $ CAD/pi²/mois 37 502 $ CAD/an 3 125 $ CAD/mois |
| Utilisation de l’espace |
| Bureau |
| Aménagement |
| construction partielle |
| Disponible |
| Maintenant |
1er étage, ste 105
| Taille | 1 635 pi² |
| Terme | Négociable |
| Taux de location | 27,06 $ CAD/pi²/an |
| Utilisation de l’espace | Bureau |
| Aménagement | - |
| Disponible | Maintenant |
Class “A” medical office building located in the heart of Auburn Hills.
- Le taux de location ne comprend pas les services publics, les services de bâtiment ou les dépenses immobilières.
2e étage, ste 206
| Taille | 1 839 pi² |
| Terme | Négociable |
| Taux de location | 27,06 $ CAD/pi²/an |
| Utilisation de l’espace | Bureau |
| Aménagement | construction partielle |
| Disponible | Maintenant |
- Le taux de location ne comprend pas les services publics, les services de bâtiment ou les dépenses immobilières.
- Partiellement construit comme Bureau standard
- 4 bureaux privés
- Espace en excellent état
3e étage, ste 303
| Taille | 1 295 pi² |
| Terme | Négociable |
| Taux de location | 27,06 $ CAD/pi²/an |
| Utilisation de l’espace | Bureau |
| Aménagement | construction partielle |
| Disponible | Maintenant |
- Le taux de location ne comprend pas les services publics, les services de bâtiment ou les dépenses immobilières.
- Partiellement construit comme Bureau standard
- Disposition du plan d’étage ouverte en général
- Espace en excellent état
3e étage, ste 310
| Taille | 1 386 pi² |
| Terme | Négociable |
| Taux de location | 27,06 $ CAD/pi²/an |
| Utilisation de l’espace | Bureau |
| Aménagement | construction partielle |
| Disponible | Maintenant |
- Le taux de location ne comprend pas les services publics, les services de bâtiment ou les dépenses immobilières.
- Partiellement construit comme Bureau standard
- Disposition du plan d’étage ouverte en général
- 4 bureaux privés
- 1 salle de conférence
- Espace en excellent état
Aperçu de la propriété
This premier Class A medical office building at 2251 N. Squirrel Road in Auburn Hills offers a highly desirable location for healthcare and office tenants. The property features immediate access to I-75 and is strategically situated near Oakland University, attracting a strong payer mix and significant daytime population. With over 55,000 square feet of total space and current availability of approximately 6,155 square feet across multiple suites, the property provides flexibility for a variety of tenant requirements. Suites range from 1,295 SF to 1,839 SF, offering optimal configurations for medical practices or professional office use. Built in 2000, the building boasts modern architecture, abundant natural light, and ample on-site parking with a ratio of 5 per 1,000 SF. The site benefits from a dense, educated population base and close proximity to major retail, dining, and hospitality options, ensuring convenience for patients, visitors, and employees. This professionally managed facility ensures a high-quality operational environment, making it an attractive long-term solution for medical and professional tenants seeking a well-connected, high-profile Auburn Hills address.
- Affichage
- Accessible aux fauteuils roulants
- Réception
- Espace d'entreposage
- Climatisation
- Détecteur de fumée
Faits sur la propriété
Présenté par
Ascension Providence Rochester Building | 2251 N Squirrel Rd
Hmm, il semble y avoir eu une erreur lors de l’envoi de votre message. Veuillez réessayer.
Merci! Votre message a été envoyé.








