Votre courriel a été envoyé.
Certaines informations ont été traduites automatiquement.
Faits saillants de la sous-location
- 10,000± - 20,000± SF Warehouse Available
- 7 Loading Docks
- Ideal for Overflow Storage
- Existing Racking in Place
- Offices Can Be Made Available
- Sublease Rate: $1.25/SF, Gross
Caractéristiques
Tous les espaces disponibles(1)
Afficher les taux de location en
- Espace
- Taille
- Terme
- Taux de location
- Utilisation de l’espace
- Aménagement
- Disponible
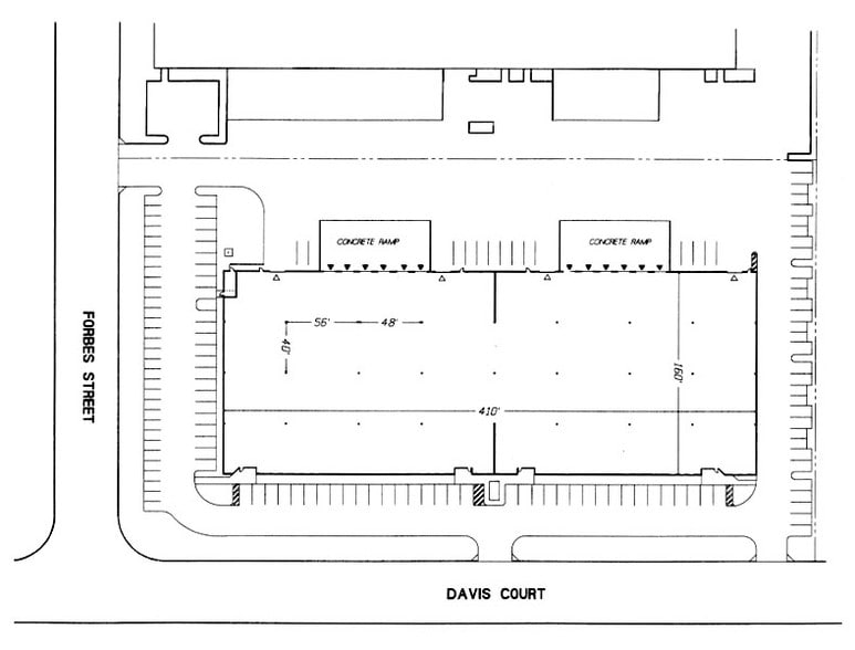
The available warehouse space features functional dock-high loading supported by seven loading positions, making it well suited for cross-docking, distribution, or supplemental storage requirements. Existing racking provides an immediate operational advantage for tenants needing quick occupancy. The sublease offers 10,000± to 17,500± SF, allowing users to scale the area to their specific needs. $1.25/SF Gross per sf and available now. Ideal for overflow storage. This is part of a larger warehouse and will be shared warehouse. Fencing can be provided to separate the space.
- Espace de sous-location disponible auprès du locataire actuel
- 7 quais de chargement
- Ideal for Overflow Storage
- Le taux inscrit peut ne pas comprendre certains services publics, les services de bâtiment et les dépenses immobilières.
- Entreposage sécurisé
- Call listing brokers for more information
| Espace | Taille | Terme | Taux de location | Utilisation de l’espace | Aménagement | Disponible |
| 1er étage | 10 000 à 17 500 pi² | Négociable | 20,59 $ CAD/pi²/an 1,72 $ CAD/pi²/mois 360 276 $ CAD/an 30 023 $ CAD/mois | Industriel | construction partielle | Maintenant |
1er étage
| Taille |
| 10 000 à 17 500 pi² |
| Terme |
| Négociable |
| Taux de location |
| 20,59 $ CAD/pi²/an 1,72 $ CAD/pi²/mois 360 276 $ CAD/an 30 023 $ CAD/mois |
| Utilisation de l’espace |
| Industriel |
| Aménagement |
| construction partielle |
| Disponible |
| Maintenant |
1er étage
| Taille | 10 000 à 17 500 pi² |
| Terme | Négociable |
| Taux de location | 20,59 $ CAD/pi²/an |
| Utilisation de l’espace | Industriel |
| Aménagement | construction partielle |
| Disponible | Maintenant |
The available warehouse space features functional dock-high loading supported by seven loading positions, making it well suited for cross-docking, distribution, or supplemental storage requirements. Existing racking provides an immediate operational advantage for tenants needing quick occupancy. The sublease offers 10,000± to 17,500± SF, allowing users to scale the area to their specific needs. $1.25/SF Gross per sf and available now. Ideal for overflow storage. This is part of a larger warehouse and will be shared warehouse. Fencing can be provided to separate the space.
- Espace de sous-location disponible auprès du locataire actuel
- Le taux inscrit peut ne pas comprendre certains services publics, les services de bâtiment et les dépenses immobilières.
- 7 quais de chargement
- Entreposage sécurisé
- Ideal for Overflow Storage
- Call listing brokers for more information
Aperçu de la propriété
Located in the established industrial core of Hayward, California, 2265–2295 Davis Court offers a flexible sublease opportunity ideal for companies seeking immediate overflow storage or short-term warehousing solutions. The property provides 10,000± to 20,000± SF of warehouse space with seven loading docks, allowing efficient inbound and outbound logistics. Can provide access to exclusive office shed (+-120sf) in warehouse. Existing racking remains in place for plug-and-play storage operations, and office space can be made available as needed to support administrative or on-site management functions. Positioned within a well-connected distribution corridor, this facility delivers convenience, accessibility, and operational readiness for a wide range of industrial users.
Faits sur l’installation fabrication
Sélectionner des locataires
- Étage
- Nom du locataire
- Secteur
- 1ᵉʳ
- Abbey Trading
- Grossiste
- 1ᵉʳ
- Axon
- Détaillant
- 1ᵉʳ
- Castle Aquatics
- Agriculture, foresterie, pêche et chasse
- 1ᵉʳ
- CFI Tire Service
- Détaillant
Présenté par
2265-2295 Davis Ct
Hmm, il semble y avoir eu une erreur lors de l’envoi de votre message. Veuillez réessayer.
Merci! Votre message a été envoyé.



