Votre courriel a été envoyé.
226904 Rib Mountain Dr - Land with Development Plan Lot • Terrain commercial • 0,69 Acres • 689 176 $ CAD • Wausau, WI 54401



Certaines informations ont été traduites automatiquement.
FAITS SAILLANTS DE L'INVESTISSEMENT
- PRIME location along Rib Mt Drive
- Includes Development Plan
- One of the last spots along Rib Mt Dr.
FAITS SUR LA PROPRIÉTÉ
1 LOT DISPONIBLE
Lot
| Prix | 689 176 $ CAD | Taille du lot | 0,69 AC |
| Prix par AC | 998 806,20 $ CAD |
| Prix | 689 176 $ CAD |
| Prix par AC | 998 806,20 $ CAD |
| Taille du lot | 0,69 AC |
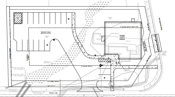
This site is prepared and has a current approved plan for office/residential upper development. Prime Rib Mountain location. One of the last spots available on Rib Mt Dr.
DESCRIPTION
Property Features • Prime location along Rib Mountain Dr. • Commercial 1st level-3,455 SF • Residentail upper level-approx 1,400 SF each, 2 apartments • 21 parking spots Details This site is prepared and has a current approved plan for office/residential upper development. Prime Rib Mountain location. One of the last spots available on Rib Mt Dr
Présenté par
226904 Rib Mountain Dr - Land with Development Plan
Hmm, il semble y avoir eu une erreur lors de l’envoi de votre message. Veuillez réessayer.
Merci! Votre message a été envoyé.
