Votre courriel a été envoyé.
Prime Downtown Berkeley Retail Space 2277 Shattuck Ave 2 538–8 335 pi² d'espace disponible • Commerce de détail • Berkeley, CA 94704



Certaines informations ont été traduites automatiquement.
Faits saillants
- Identité d'un locataire unique dans un immeuble à niveaux multiples — 1 pâté de maisons de UC Berkeley et BART
- Plus de 460 nouvelles unités résidentielles dans un rayon de 4 pâtés de maisons
- 2 toilettes
- Circulation piétonnière élevée tous les jours, plusieurs nouveaux développements dans un rayon de 1/4 mille
- De beaux détails : Plancher en terrazzo à l'entrée intérieure, travaux de tuiles entourant 3 fenêtres de niveau mezzanine
- À distance de marche de plus de 119 000 places de théâtre, de musique et de salles de sport
Disponibilité des espaces (3)
Afficher les taux de location en
- Espace
- Taille
- Terme
- Taux de location
- Type de loyer
| Espace | Taille | Terme | Taux de location | Type de loyer | ||
| Sous-sol | 2 997 pi² | Négociable | Sur demande Sur demande Sur demande Sur demande | Loyer hypernet | ||
| 1er étage | 2 800 pi² | Négociable | Sur demande Sur demande Sur demande Sur demande | Négociable | ||
| Mezzanine | 2 538 pi² | Négociable | Sur demande Sur demande Sur demande Sur demande | Négociable |
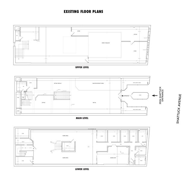
Sous-sol
- Call Broker for lease rate - ± 2,800 RSF ground floor (with BONUS SPACE of ± 2,538 RSF mezzanine and ± 2,997 RSF basement) - Ceiling heights vary by floor: ground floor is ±10 feet height; mezzanine and basement ceiling heights are approximately 7+ feet - Berkeley Historic Landmark: Hezlett’s Silk Store Building - Existing restroom on the main level, plus a non-compliant restroom on the mezzanine level - 2 blocks to Downtown Berkeley BART station with ± 27,000 daily ridership entries and exits - High-foot traffic every day - Downtown Berkeley has ± 22,812 residents within a half mile - Over 1,400 new housing units recently completed – several within a quarter mile - Join other nearby retail, food, and service companies including: Target, CVS, UPS, Sliver Pizzeria, Gather, Ippudo, Pegasus Books, Comal, Jupiter, Angeline’s Louisiana Kitchen, and Eureka! - Easy walk to live theater, music, and sports venues
- Le taux de location ne comprend pas les services publics, les services de bâtiment ou les dépenses immobilières.
- Situé en ligne avec d’autres commerces de détail
- Espace partiellement démoli
- Peut être associé à un ou plusieurs espaces supplémentaires pour obtenir jusqu’à 8 335 pi² d’espace adjacent.
- Salle de bains privée
- Hauts plafonds
1er étage
- Call Broker for lease rate - ± 2,800 RSF ground floor (with BONUS SPACE of ± 2,538 RSF mezzanine and ± 2,997 RSF basement) - Ceiling heights vary by floor: ground floor is ±10 feet height; mezzanine and basement ceiling heights are approximately 7+ feet - Berkeley Historic Landmark: Hezlett’s Silk Store Building - Existing restroom on the main level, plus a non-compliant restroom on the mezzanine level - 2 blocks to Downtown Berkeley BART station with ± 27,000 daily ridership entries and exits - High-foot traffic every day - Downtown Berkeley has ± 22,812 residents within a half mile - Over 1,400 new housing units recently completed – several within a quarter mile - Join other nearby retail, food, and service companies including: Target, CVS, UPS, Sliver Pizzeria, Gather, Ippudo, Pegasus Books, Comal, Jupiter, Angeline’s Louisiana Kitchen, and Eureka! - Easy walk to live theater, music, and sports venues
- Peut être associé à un ou plusieurs espaces supplémentaires pour obtenir jusqu’à 8 335 pi² d’espace adjacent.
- Convient pour 7 à 23 personnes
Mezzanine
- Call Broker for lease rate - ± 2,800 RSF ground floor (with BONUS SPACE of ± 2,538 RSF mezzanine and ± 2,997 RSF basement) - Ceiling heights vary by floor: ground floor is ±10 feet height; mezzanine and basement ceiling heights are approximately 7+ feet - Berkeley Historic Landmark: Hezlett’s Silk Store Building - Existing restroom on the main level, plus a non-compliant restroom on the mezzanine level - 2 blocks to Downtown Berkeley BART station with ± 27,000 daily ridership entries and exits - High-foot traffic every day - Downtown Berkeley has ± 22,812 residents within a half mile - Over 1,400 new housing units recently completed – several within a quarter mile - Join other nearby retail, food, and service companies including: Target, CVS, UPS, Sliver Pizzeria, Gather, Ippudo, Pegasus Books, Comal, Jupiter, Angeline’s Louisiana Kitchen, Peet’s Coffee, and Eureka! - Easy walk to live theater, music, and sports venues
- Peut être associé à un ou plusieurs espaces supplémentaires pour obtenir jusqu’à 8 335 pi² d’espace adjacent.
- Convient pour 7 à 21 personnes
Types de loyers
Le type et le montant du loyer que le locataire (preneur) est tenu de payer au propriétaire (bailleur) sur la durée du bail sont négociés avant la signature du bail par les deux parties. Le type de loyer varie selon les services fournis. Par exemple, le prix d’un loyer hypernet est habituellement inférieur à celui d’un bail à service complet puisque le locataire est tenu d’assumer des dépenses additionnelles par rapport au loyer de base. Contactez le courtier inscripteur pour tout connaître sur les frais connexes et additionnels associés à chaque type de loyer.
1. Service complet: Un taux de location qui comprend des services standards liés à l’immeuble fournis par le propriétaire dans le cadre d’une location annuelle de base.
2. Loyer supernet: Le locataire paie seulement deux des frais de l’immeuble. Le propriétaire et le locataire déterminent ces frais spécifiques avant la signature du bail.
3. Loyer hypernet: Un bail en vertu duquel le locataire est responsable de tous les frais liés à sa part proportionnelle d’occupation de l’immeuble.
4. Brut modifié: Le loyer brut modifié désigne un type général de taux de location dans lequel le locataire est habituellement responsable de sa part proportionnelle d’un ou de plusieurs frais. C’est le propriétaire qui paie les frais restants. Considérez les structures tarifaires courantes suivantes applicables aux loyers bruts modifiés: 4. Plus les services: Un type de bail brut modifié suivant lequel le locataire est responsable de sa part proportionnelle des coûts des services publics, en plus du loyer. 4. Plus le nettoyage: Un type de bail brut modifié suivant lequel le locataire est responsable de sa part proportionnelle des coûts de nettoyage, en plus du loyer. 4. Plus l'électricité: Un type de bail brut modifié suivant lequel le locataire est responsable de sa part proportionnelle des coûts d’électricité, en plus du loyer. 4. Plus l’électricité et le nettoyage: Un type de bail brut modifié dans lequel le locataire est responsable de sa part proportionnelle des coûts d’électricité et de nettoyage, en plus du loyer. 4. Plus les services publics et le nettoyage: Un type de bail brut modifié dans lequel le locataire est responsable de sa part proportionnelle des coûts des services publics et de nettoyage, en plus du loyer. 4. Bail industriel brut: Un type de bail brut modifié dans lequel le locataire paie un ou plusieurs des frais, en plus du loyer. Le propriétaire et le locataire déterminent ces frais spécifiques avant la signature du bail.
5. L’électricité est à la charge du locataire: Le propriétaire paie pour tous les services et le locataire est responsable de sa propre utilisation de l’éclairage et des prises électriques dans l’espace qu’il occupe.
6. Négociable ou sur demande: Cette option est utilisée lorsque le contact de location ne précise pas le type de loyer ou de service.
7. À déterminer: À déterminer ; utilisé pour les immeubles dont le type de services ou de loyer n’est pas connu, souvent quand l’immeuble n’est pas encore construit.
Faits sur la propriété
| Superficie totale disponible | 8 335 pi² | Superficie commerciale brute | 8 335 pi² |
| Type de propriété | Commerce de détail | Année de construction/rénovation | 1920/1996 |
| Sous-type de propriété | Boutique |
| Superficie totale disponible | 8 335 pi² |
| Type de propriété | Commerce de détail |
| Sous-type de propriété | Boutique |
| Superficie commerciale brute | 8 335 pi² |
| Année de construction/rénovation | 1920/1996 |
À propos de la propriété
Identité d'un locataire unique dans un immeuble à plusieurs niveaux dans le centre-ville de Berkeley, à forte circulation. Emplacement privilégié — à un pâté de maisons de l'UC Berkeley et du BART. ± 2 800 RSF au rez-de-chaussée. Appelez le courtier pour connaître le tarif de location. L'ESPACE BONUS COMPREND : ± 2 538 mezzanine RSF ± 2 997 sous-sol RSF CARACTÉRISTIQUES DE LA PROPRIÉTÉ - Façade de rue ornée de carrelage entourant 3 fenêtres en mezzanine et magnifique plancher en terrazzo à l'entrée intérieure - La hauteur du plafond varie selon le plancher. Le rez-de-chaussée mesure ± 10 pieds de hauteur ; la hauteur du plafond de la mezzanine et du sous-sol est d'environ 7 pieds et plus - Des toilettes existantes au niveau principal, plus des toilettes non conformes au niveau de la mezzanine - Bien adapté à de nombreux usages - Désigné point d'intérêt par la Ville de Berkeley en 2008 EMPLACEMENT - Sur l'avenue Shattuck très fréquentée, au cœur du centre-ville de Berkeley - Circulation piétonnière élevée tous les jours - Le nombre de trafic sur l'avenue Shattuck (rue Kittredge) est de 18 498 - Le centre-ville de Berkeley compte ± 22 812 résidents dans un rayon d'un demi-mille - Plus de 1 400 nouveaux logements récemment achevés, dont plusieurs à moins d'un quart de mille - 200 entreprises en démarrage en activité à Berkeley, dont plus de la moitié au centre-ville - Rejoignez d'autres entreprises de vente au détail, de restauration et de services à proximité, notamment : Target, CVS, UPS, Sliver Pizzeria, Gater, Ippudo, Half Price Books, Pegasus Books, Comal, Jupiter, Angeline's Louisiana Kitchen et Eureka ! - À distance de marche de plus de 119 000 sièges de théâtre, de musique et de salles de sport
- Ligne d'autobus
- Métro
- Mezzanine
- Affichage
- Puits de lumière
Principaux détaillants à proximité
Présenté par
Prime Downtown Berkeley Retail Space | 2277 Shattuck Ave
Hmm, il semble y avoir eu une erreur lors de l’envoi de votre message. Veuillez réessayer.
Merci! Votre message a été envoyé.









