Votre courriel a été envoyé.
23 Industrial Park Dr 26 280 pi² Industriel Immeuble Lugoff, SC 29078 À vendre



Certaines informations ont été traduites automatiquement.
Faits sur la propriété
| Type de vente | Investissement ou propriétaire utilisateur | Année de construction | 1990 |
| Type de propriété | Industriel | Location | Unique |
| Sous-type de propriété | Manufacture | Ratio de stationnement | 0,61/1 000 pi² |
| Classe d’immeuble | C | Effacer hauteur du plafond | 21’5” |
| Taille du lot | 5,62 AC | Nbre de quais à portes élevées/de chargement | 4 |
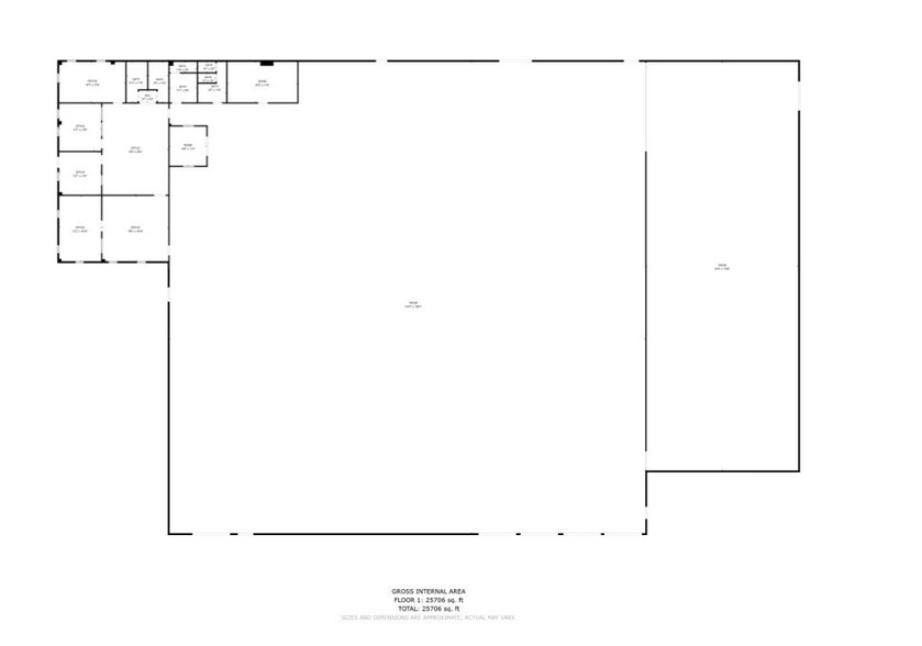
| Aire du bâtiment louable | 26 280 pi² | Nbre d’entrées dans les portes/au niveau du sol | 2 |
| Nombre d’étages | 1 | ||
| Zonage | I-1 | ||
| Type de vente | Investissement ou propriétaire utilisateur |
| Type de propriété | Industriel |
| Sous-type de propriété | Manufacture |
| Classe d’immeuble | C |
| Taille du lot | 5,62 AC |
| Aire du bâtiment louable | 26 280 pi² |
| Nombre d’étages | 1 |
| Année de construction | 1990 |
| Location | Unique |
| Ratio de stationnement | 0,61/1 000 pi² |
| Effacer hauteur du plafond | 21’5” |
| Nbre de quais à portes élevées/de chargement | 4 |
| Nbre d’entrées dans les portes/au niveau du sol | 2 |
| Zonage | I-1 |
Services publics
- Éclairage - Fluorescent
- Gaz - Naturel
Disponibilité des espaces
- Espace
- Taille
- Utilisation de l’espace
- Aménagement
- Disponible
Square Footage: +/- 27,280 SF Total; +/- 1,800 SF Office Acreage: +/- 5.62 AC Zoning: I-1 (Industrial District) Former Use: Manufacturing Power: 1,600 AMP Clearance Height: Eaves: 14’ 2” Center: 20’ 2” Parking: 16 Surface Spaces Column Spacing: 46’5” x 27’7” Doors: 2 Drive-In Door 12’x14’; 4 Dock High Doors (1) 10’x12’ (2) 10’x10’ Recent Improvements - New roof on the warehouse portion in 2024 with a 10-year warranty - New concrete aprons installed - Improved laydown yard Lease Rate $6.50 PSF NNN + $1.40 TICAM
| Espace | Taille | Utilisation de l’espace | Aménagement | Disponible |
| 1er étage | 26 280 pi² | Industriel | - | 30 jours |
1er étage
| Taille |
| 26 280 pi² |
| Utilisation de l’espace |
| Industriel |
| Aménagement |
| - |
| Disponible |
| 30 jours |
1er étage
| Taille | 26 280 pi² |
| Utilisation de l’espace | Industriel |
| Aménagement | - |
| Disponible | 30 jours |
Square Footage: +/- 27,280 SF Total; +/- 1,800 SF Office Acreage: +/- 5.62 AC Zoning: I-1 (Industrial District) Former Use: Manufacturing Power: 1,600 AMP Clearance Height: Eaves: 14’ 2” Center: 20’ 2” Parking: 16 Surface Spaces Column Spacing: 46’5” x 27’7” Doors: 2 Drive-In Door 12’x14’; 4 Dock High Doors (1) 10’x12’ (2) 10’x10’ Recent Improvements - New roof on the warehouse portion in 2024 with a 10-year warranty - New concrete aprons installed - Improved laydown yard Lease Rate $6.50 PSF NNN + $1.40 TICAM
Impôts fonciers
| Numéro de lot | 338-01-00-011-SCK | Évaluation des bâtiments | 384 294 $ CAD |
| Évaluation du terrain | 57 919 $ CAD | Évaluation totale | 442 213 $ CAD |
Impôts fonciers
Présenté par
23 Industrial Park Dr
Hmm, il semble y avoir eu une erreur lors de l’envoi de votre message. Veuillez réessayer.
Merci! Votre message a été envoyé.



