Se Connecter/S’inscrire
Votre courriel a été envoyé.
23 Public Square
Belleville, IL 62220
Class A Office Space for Lease - Full Service · Bureau Propriété À louer
·
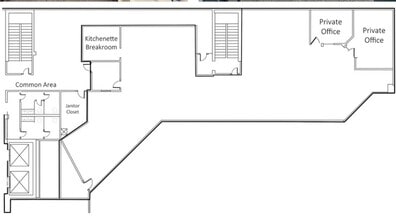
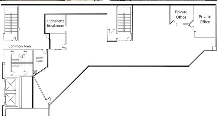
9 494 pi²


Certaines informations ont été traduites automatiquement.
Faits saillants
- Bureaux de classe A et locaux de vente au détail
- Stationnement sur place
- À distance de marche de nombreux restaurants et boutiques
- L'espace au 1er étage serait idéal pour un restaurant, un bureau, un commerce de détail ou une utilisation financière
Aperçu de la propriété
Édifice à bureaux professionnels avec 500 à 13 000 pi2 de locaux à bureaux et de vente au détail disponibles pour la location. L'espace du hall d'entrée du rez-de-chaussée serait idéal pour un restaurant avec vue sur la place et la fontaine. Il y a un stationnement privé sur place. Idéalement situé à distance de marche de nombreux restaurants et magasins. L'édifice est situé sur la place publique du centre-ville historique de Belleville, juste en face du palais de justice du comté de Sainte-Claire
- Accès 24 heures
- Banque
- Ligne d'autobus
- Installations de conférences
- Restaurant
- Affichage
- Climatisation
Faits sur la propriété
Type de bâtiment
Bureau
Année de construction/rénovation
1985/2005
Hauteur du bâtiment
4 étages
Taille du bâtiment
58 000 pi²
Classe d’immeuble
A
Superficie de plancher typique
14 500 pi²
Hauteur du plafond non finie
11’
Stationnement
100 places de stationnement surface
Stationnement Couvert
1 de 11
Vidéos
Visite extérieure 3D Matterport
Visite 3D Matterport
Photos
Vue depuis la rue
Rue
Carte
