Se Connecter/S’inscrire
Votre courriel a été envoyé.
2300 Parkwood Dr 4 664 pi² Bureau Immeuble Brunswick, GA 31520 1 712 137 $ CAD (367,10 $ CAD/pi²)



Certaines informations ont été traduites automatiquement.
Faits saillants de l'investissement
- Emplacement ! Rare immeuble commercial situé à la vue d'un hôpital régional de plus de 150 lits
- Grande expansion de l'immeuble en 2021
- Bâtiment commercial moderne adaptable à plusieurs usages, y compris un cabinet médical, une garderie, une garde d'aînés ou un établissement d'enseignement.
Résumé de l'annonce
Rare immeuble commercial situé à la vue d'un hôpital régional de plus de 150 lits. Élargi ou mis à jour de manière significative en 2021. Facilement adapté au cabinet médical, à la garde d'enfants, aux soins aux personnes âgées ou à l'établissement d'enseignement.
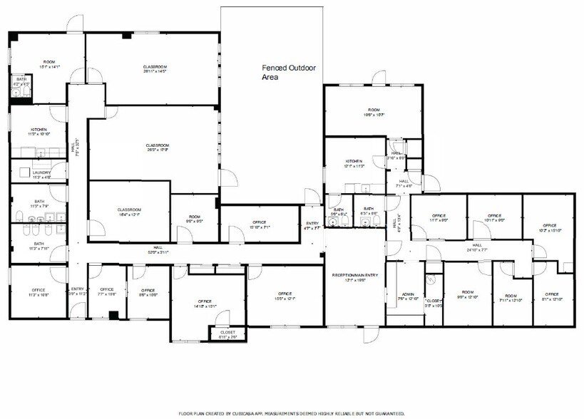
Cet immeuble commercial d'environ 5 300 pieds 2 est bien situé à la vue du campus principal du Southeast Georgia Health System à Brunswick. L'immeuble occupe un terrain d'angle situé à l'angle de la promenade Parkwood et de l'avenue E. Park. D'importants travaux d'agrandissement et de rénovation ont eu lieu en 2021, ce qui a donné lieu à une structure moderne et attrayante. Le bâtiment comprend plusieurs bureaux, aires de travail, une réception, deux cuisines, une buanderie, cinq salles de bains, des salles de classe, des rangements et un espace extérieur clôturé. Il y a 30 places de stationnement et des entrées des deux rues. L'immeuble dispose de plusieurs points d'entrée et de sortie et est accessible aux personnes handicapées. Il s'adapte facilement au cabinet médical, à la garde d'enfants, aux soins aux personnes âgées ou au bureau général.
Cet immeuble commercial d'environ 5 300 pieds 2 est bien situé à la vue du campus principal du Southeast Georgia Health System à Brunswick. L'immeuble occupe un terrain d'angle situé à l'angle de la promenade Parkwood et de l'avenue E. Park. D'importants travaux d'agrandissement et de rénovation ont eu lieu en 2021, ce qui a donné lieu à une structure moderne et attrayante. Le bâtiment comprend plusieurs bureaux, aires de travail, une réception, deux cuisines, une buanderie, cinq salles de bains, des salles de classe, des rangements et un espace extérieur clôturé. Il y a 30 places de stationnement et des entrées des deux rues. L'immeuble dispose de plusieurs points d'entrée et de sortie et est accessible aux personnes handicapées. Il s'adapte facilement au cabinet médical, à la garde d'enfants, aux soins aux personnes âgées ou au bureau général.
Faits sur la propriété
Type de vente
Investissement ou propriétaire utilisateur
Type de propriété
Bureau
Sous-type de propriété
Taille du bâtiment
4 664 pi²
Classe d’immeuble
C
Année de construction/rénovation
1952/2021
Prix
1 712 137 $ CAD
Prix par pi²
367,10 $ CAD
Location
Unique
Hauteur du bâtiment
1 étage
Superficie de plancher typique
4 664 pi²
Coefficient d’occupation des sols de l’immeuble
0,18
Taille du lot
0,60 AC
Zonage
C2 - Commerciale
1 1
Assez praticable à pied
50/100
Moyennement facile d’accès en voiture
70/100
Plutôt praticable en vélo
50/100
Impôts fonciers
| Numéros de lot | Évaluation des bâtiments | 152 750 $ CAD | |
| Évaluation du terrain | 115 658 $ CAD | Évaluation totale | 268 408 $ CAD |
Impôts fonciers
Numéros de lot
Évaluation du terrain
115 658 $ CAD
Évaluation des bâtiments
152 750 $ CAD
Évaluation totale
268 408 $ CAD
1 de 15
Vidéos
Visite extérieure 3D Matterport
Visite 3D Matterport
Photos
Vue depuis la rue
Rue
Carte
1 de 1
Présenté par
2300 Parkwood Dr
Vous êtes déjà membre? Connectez-vous
Hmm, il semble y avoir eu une erreur lors de l’envoi de votre message. Veuillez réessayer.
Merci! Votre message a été envoyé.
