Se Connecter/S’inscrire
Votre courriel a été envoyé.
23040 John T Reid Pkwy
Scottsboro, AL 35768
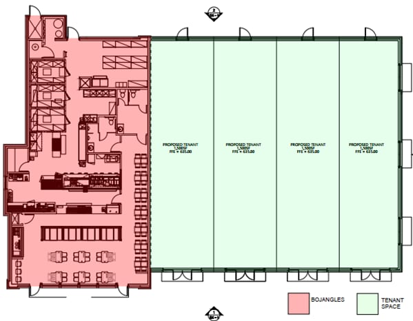
Up to 6,000 SF AVAIL-Bojangles Multi-Tenant · Commerce de détail Propriété À louer
·
6 000 pi²


Certaines informations ont été traduites automatiquement.
Faits saillants
- - Construction neuve
- - Excellente visibilité et accès complet par feux de circulation
- - Corridor commercial Prime Hwy 72 en face de New Whataburger, Starbucks et Future Hobby Lobby
Faits sur la propriété
| Superficie totale disponible | 6 000 pi² | Superficie commerciale brute | 9 600 pi² |
| Min. divisible | 1 500 pi² | État de la construction | Proposé |
| Type de propriété | Commerce de détail |
| Superficie totale disponible | 6 000 pi² |
| Min. divisible | 1 500 pi² |
| Type de propriété | Commerce de détail |
| Superficie commerciale brute | 9 600 pi² |
| État de la construction | Proposé |
À propos de la propriété
Un nouveau centre à locataires multiples de construction arrive à Scottsboro, en Alabradousie, avec Bojangles occupant l'extrémité avec drive-thru. Jusqu'à 6 000 PI2 d'espace de vente supplémentaire disponible. Situé sur John T Reid Pkwy (autoroute 72) à côté de High Country Toyota.
1 de 5
Vidéos
Visite extérieure 3D Matterport
Visite 3D Matterport
Photos
Vue depuis la rue
Rue
Carte
