Se Connecter/S’inscrire
Votre courriel a été envoyé.
23042 Commerce Dr
Farmington Hills, MI 48335
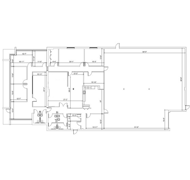
Local d'activités Propriété À vendre


Certaines informations ont été traduites automatiquement.
Faits sur la propriété
| Type de vente | Investissement ou propriétaire utilisateur | Nombre d’étages | 1 |
| Type de propriété | Local d'activités | Année de construction | 1983 |
| Sous-type de propriété | Manufacture légère | Location | Unique |
| Classe d’immeuble | C | Ratio de stationnement | 3,07/1 000 pi² |
| Taille du lot | 0,75 AC | Effacer hauteur du plafond | 18’ |
| Aire du bâtiment louable | 8 790 pi² | Nbre d’entrées dans les portes/au niveau du sol | 1 |
| Zonage | I-1 - Industrielles | ||
| Type de vente | Investissement ou propriétaire utilisateur |
| Type de propriété | Local d'activités |
| Sous-type de propriété | Manufacture légère |
| Classe d’immeuble | C |
| Taille du lot | 0,75 AC |
| Aire du bâtiment louable | 8 790 pi² |
| Nombre d’étages | 1 |
| Année de construction | 1983 |
| Location | Unique |
| Ratio de stationnement | 3,07/1 000 pi² |
| Effacer hauteur du plafond | 18’ |
| Nbre d’entrées dans les portes/au niveau du sol | 1 |
| Zonage | I-1 - Industrielles |
Commodités
- Climatisation
Services publics
- Gaz - Naturel
- Eau - Eau de ville
- Égout - Égout de la ville
- Chauffage - Gaz
Impôts fonciers
| Numéro de lot | 23-30-327-019 | Évaluation des bâtiments | 517 090 $ CAD |
| Évaluation du terrain | 73 964 $ CAD | Évaluation totale | 591 054 $ CAD |
Impôts fonciers
Numéro de lot
23-30-327-019
Évaluation du terrain
73 964 $ CAD
Évaluation des bâtiments
517 090 $ CAD
Évaluation totale
591 054 $ CAD
1 de 3
Vidéos
Visite extérieure 3D Matterport
Visite 3D Matterport
Photos
Vue depuis la rue
Rue
Carte
