Se Connecter/S’inscrire
Votre courriel a été envoyé.
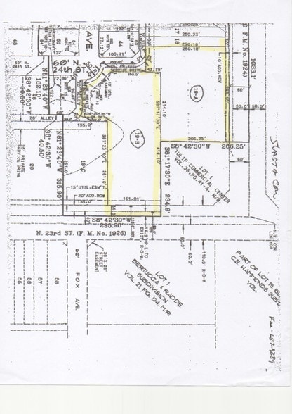
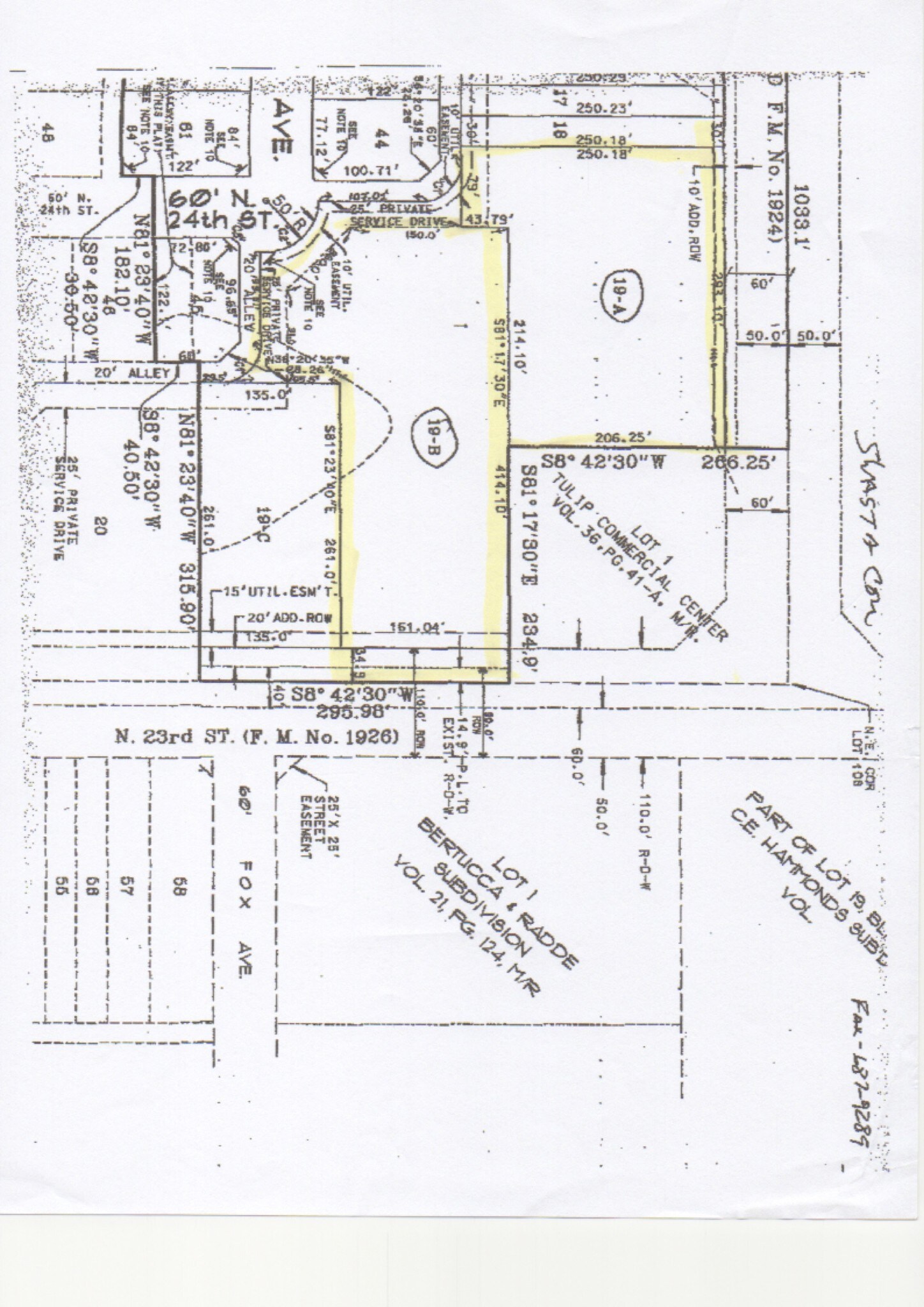
2317 Buddy Owens Blvd - 23rd & 3 Mile Rd. (Buddy Owens) Lot • Terrain commercial • 1,47 Acres • 875 567 $ CAD • McAllen, TX 78504


Certaines informations ont été traduites automatiquement.
Résumé de l'annonce
Excellent terrain commercial. Coin très visible. Prêt pour la construction avec stationnement et services publics finis.
Coin sud-ouest de la 23rd et Buddy Owens entre Trenton et Nolana
Coin sud-ouest de la 23rd et Buddy Owens entre Trenton et Nolana
Faits sur la propriété
1 Lot disponible
Lot 19-A
| Prix | 875 567 $ CAD | Taille du lot | 1,47 AC |
| Prix par AC | 596 771,89 $ CAD |
| Prix | 875 567 $ CAD |
| Prix par AC | 596 771,89 $ CAD |
| Taille du lot | 1,47 AC |
Deux terrains entièrement aménagés comprenant pavage de stationnement, éclairage de stationnement, aménagement paysager, Tous les services publics
1 1
Moyennement praticable à pied
60/100
Exceptionnellement facile d’accès en voiture
100/100
Moyennement praticable en vélo
60/100
Impôts fonciers
| Numéro de lot | S3020-02-000-019A-00 | Évaluation des bâtiments | 98 184 $ CAD |
| Évaluation du terrain | 459 311 $ CAD | Évaluation totale | 557 495 $ CAD |
Impôts fonciers
Numéro de lot
S3020-02-000-019A-00
Évaluation du terrain
459 311 $ CAD
Évaluation des bâtiments
98 184 $ CAD
Évaluation totale
557 495 $ CAD
1 de 3
Vidéos
Visite extérieure 3D Matterport
Visite 3D Matterport
Photos
Vue depuis la rue
Rue
Carte
1 de 1
Présenté par
Titus Development
2317 Buddy Owens Blvd - 23rd & 3 Mile Rd. (Buddy Owens)
Vous êtes déjà membre? Connectez-vous
Hmm, il semble y avoir eu une erreur lors de l’envoi de votre message. Veuillez réessayer.
Merci! Votre message a été envoyé.
