Votre courriel a été envoyé.
Kingsland Plaza 23222 Kingsland Blvd 1 125–6 750 pi² d'espace disponible • Commerce de détail • Katy, TX 77494



Certaines informations ont été traduites automatiquement.
Faits saillants
- Retail Shopping strip consists of two centers with combined footprint of 22,500 SF.
- Property is surrounded by well established subdivisions.
- The Plazas are an excellent corner location with high volume traffic just off SH-99.
- Easy access with 4 curb cuts and excellent visibility.
Disponibilité des espaces (3)
Afficher les taux de location en
- Espace
- Taille
- Terme
- Taux de location
- Type de loyer
| Espace | Taille | Terme | Taux de location | Type de loyer | ||
| 1er étage, ste A | 4 500 pi² | Négociable | 37,21 $ CAD/pi²/an 3,10 $ CAD/pi²/mois 167 444 $ CAD/an 13 954 $ CAD/mois | Loyer hypernet | ||
| 1er étage, ste A | 1 125 pi² | Négociable | 37,21 $ CAD/pi²/an 3,10 $ CAD/pi²/mois 41 861 $ CAD/an 3 488 $ CAD/mois | Loyer hypernet | ||
| 1er étage, ste J | 1 125 pi² | Négociable | 37,21 $ CAD/pi²/an 3,10 $ CAD/pi²/mois 41 861 $ CAD/an 3 488 $ CAD/mois | Loyer hypernet |
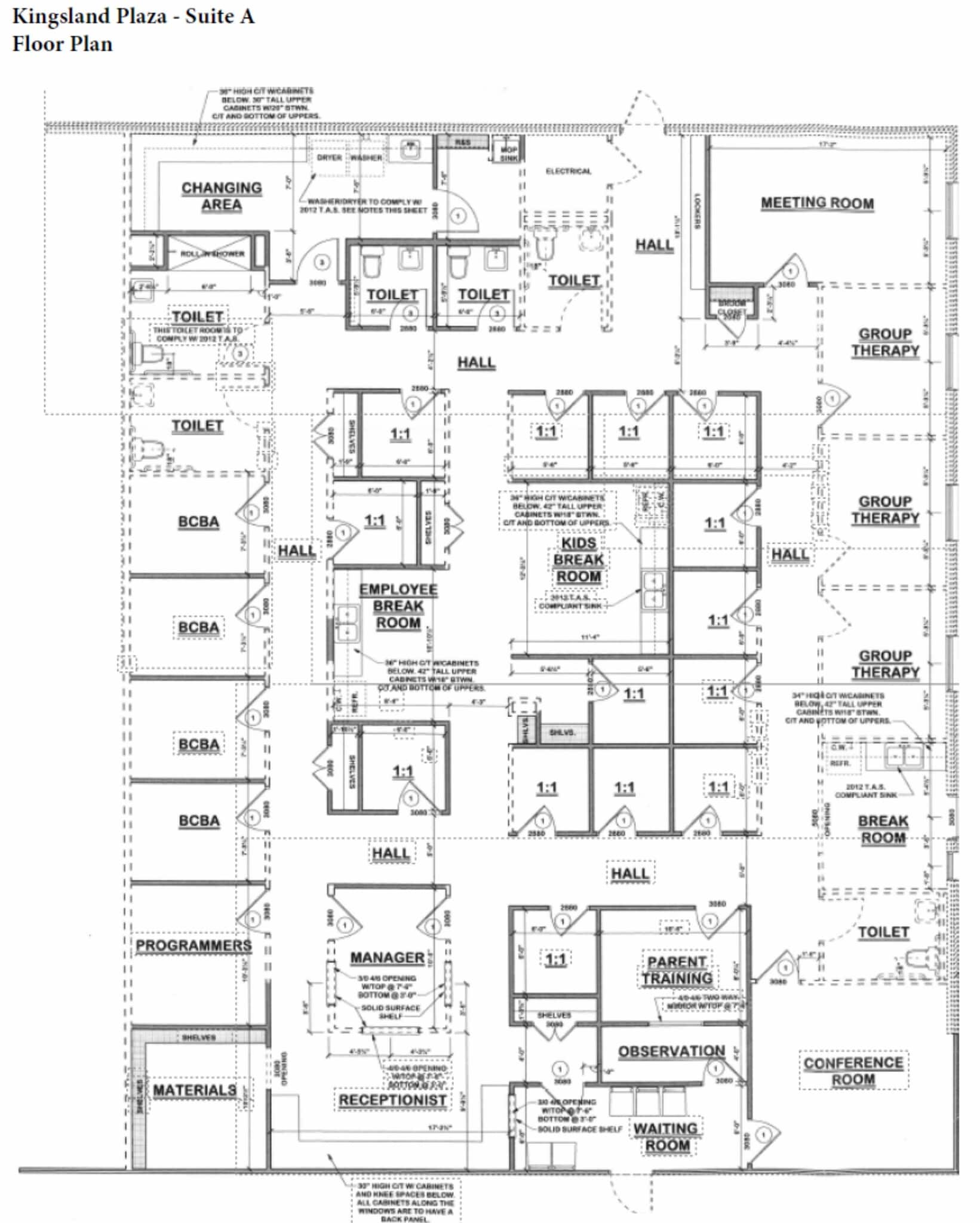
23222 Kingsland Blvd - 1er étage - ste A
Second-generation ABA Therapy Center, FF&E included.
- Le taux de location ne comprend pas les services publics, les services de bâtiment ou les dépenses immobilières.
- Entièrement construit comme Espace (spécialité)
- Espace embout très recherché
23232 Kingsland Blvd - 1er étage - ste A
Second-generation pet grooming. Available 05/01/2026
- Le taux de location ne comprend pas les services publics, les services de bâtiment ou les dépenses immobilières.
- Entièrement construit comme Espace de commerce de détail standard
- Espace embout très recherché
23222 Kingsland Blvd - 1er étage - ste J
Second-generation hair salon, hair stations included.
- Le taux de location ne comprend pas les services publics, les services de bâtiment ou les dépenses immobilières.
- Entièrement construit comme Espace (spécialité)
- Espace embout très recherché
Types de loyers
Le type et le montant du loyer que le locataire (preneur) est tenu de payer au propriétaire (bailleur) sur la durée du bail sont négociés avant la signature du bail par les deux parties. Le type de loyer varie selon les services fournis. Par exemple, le prix d’un loyer hypernet est habituellement inférieur à celui d’un bail à service complet puisque le locataire est tenu d’assumer des dépenses additionnelles par rapport au loyer de base. Contactez le courtier inscripteur pour tout connaître sur les frais connexes et additionnels associés à chaque type de loyer.
1. Service complet: Un taux de location qui comprend des services standards liés à l’immeuble fournis par le propriétaire dans le cadre d’une location annuelle de base.
2. Loyer supernet: Le locataire paie seulement deux des frais de l’immeuble. Le propriétaire et le locataire déterminent ces frais spécifiques avant la signature du bail.
3. Loyer hypernet: Un bail en vertu duquel le locataire est responsable de tous les frais liés à sa part proportionnelle d’occupation de l’immeuble.
4. Brut modifié: Le loyer brut modifié désigne un type général de taux de location dans lequel le locataire est habituellement responsable de sa part proportionnelle d’un ou de plusieurs frais. C’est le propriétaire qui paie les frais restants. Considérez les structures tarifaires courantes suivantes applicables aux loyers bruts modifiés: 4. Plus les services: Un type de bail brut modifié suivant lequel le locataire est responsable de sa part proportionnelle des coûts des services publics, en plus du loyer. 4. Plus le nettoyage: Un type de bail brut modifié suivant lequel le locataire est responsable de sa part proportionnelle des coûts de nettoyage, en plus du loyer. 4. Plus l'électricité: Un type de bail brut modifié suivant lequel le locataire est responsable de sa part proportionnelle des coûts d’électricité, en plus du loyer. 4. Plus l’électricité et le nettoyage: Un type de bail brut modifié dans lequel le locataire est responsable de sa part proportionnelle des coûts d’électricité et de nettoyage, en plus du loyer. 4. Plus les services publics et le nettoyage: Un type de bail brut modifié dans lequel le locataire est responsable de sa part proportionnelle des coûts des services publics et de nettoyage, en plus du loyer. 4. Bail industriel brut: Un type de bail brut modifié dans lequel le locataire paie un ou plusieurs des frais, en plus du loyer. Le propriétaire et le locataire déterminent ces frais spécifiques avant la signature du bail.
5. L’électricité est à la charge du locataire: Le propriétaire paie pour tous les services et le locataire est responsable de sa propre utilisation de l’éclairage et des prises électriques dans l’espace qu’il occupe.
6. Négociable ou sur demande: Cette option est utilisée lorsque le contact de location ne précise pas le type de loyer ou de service.
7. À déterminer: À déterminer ; utilisé pour les immeubles dont le type de services ou de loyer n’est pas connu, souvent quand l’immeuble n’est pas encore construit.
Sélectionner des locataires à Kingsland Plaza
- Locataire
- Description
- Emplacements US
- Portée
- Create A Cut
- Services
- 1
- -
- Houston's Fuzzy Tails
- -
- 1
- -
- J Jllashes Studio
- Grossiste
- 1
- -
- Katy ABA Center
- -
- 1
- -
- Katy Kolache Coffee & Donuts
- Restaurant
- 1
- Local
- Salon Service Group
- Salon / Barbier / Spa
- 49
- National
| Locataire | Description | Emplacements US | Portée |
| Create A Cut | Services | 1 | - |
| Houston's Fuzzy Tails | - | 1 | - |
| J Jllashes Studio | Grossiste | 1 | - |
| Katy ABA Center | - | 1 | - |
| Katy Kolache Coffee & Donuts | Restaurant | 1 | Local |
| Salon Service Group | Salon / Barbier / Spa | 49 | National |
Faits sur la propriété
À propos de la propriété
This retail shopping strip consists of two well-designed centers totaling approximately 22,500 square feet, offering a strong presence in a high-traffic corridor just off SH-99. Positioned at a prominent corner location, the property benefits from exceptional visibility and accessibility, making it an attractive destination for retailers and service providers. The surrounding area features well-established residential subdivisions, creating a steady customer base and consistent traffic flow. With four convenient curb cuts, the property ensures smooth ingress and egress for visitors, enhancing overall accessibility for both local and regional shoppers. This location combines strong traffic counts, excellent visibility, and proximity to growing neighborhoods, making it a compelling choice for businesses seeking a vibrant retail environment.
- Visibilité de l'autoroute
- Enseigne sur pylône
- Intersection avec signalisation
Principaux détaillants à proximité
Présenté par
Kingsland Plaza | 23222 Kingsland Blvd
Hmm, il semble y avoir eu une erreur lors de l’envoi de votre message. Veuillez réessayer.
Merci! Votre message a été envoyé.


