Votre courriel a été envoyé.
The Woolworth Building 233 Broadway 1 225–167 340 pi² d'espace disponible • 4 étoiles • New York, NY 10279


Certaines informations ont été traduites automatiquement.
Faits saillants
- L'édifice Woolworth est l'une des tours de bureaux les plus emblématiques du centre-ville de Manhattan et est idéalement situé près des principaux centres de transport.
- Les propriétés de classe mondiale comprennent un stationnement sur place, un accès 24 heures sur 24, un hall d'entrée à l'atrium de trois étages, des ascenseurs modernes et des fenêtres fonctionnelles.
- Situé à quelques pas du district financier depuis plus de 100 ans, le gratte-ciel emblématique est bien équipé pour soutenir les entreprises d'aujourd'hui.
- Un espace de vente au détail très visible au rez-de-chaussée et des aménagements intensifs de bureaux dans diverses tailles de suite et des étages supérieurs entiers sont immédiatement disponibles.
Tous les espaces disponibles(20)
Afficher les taux de location en
- Espace
- Taille
- Terme
- Taux de location
- Utilisation de l’espace
- Aménagement
- Disponible
1,936 SF of fully built out office space on ground floor.
- Entièrement construit comme Bureau standard
- Convient pour 5 à 16 personnes
- 24 Hour Access
- Disposition du plan d’étage ouverte en général
- Espace en excellent état
- Property Manager on Site
1,225 SF of fully built out retail space on ground floor.
- Entièrement construit comme Espace de commerce de détail standard
- Espace en excellent état
- 24 Hour Access
- Situé en ligne avec d’autres commerces de détail
- Property Manager on Site
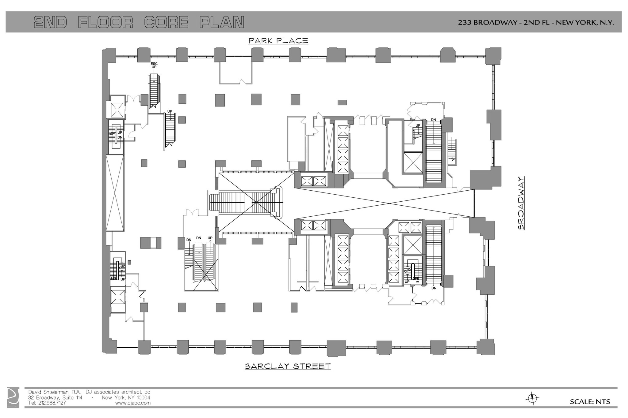
The second floor of the Woolworth Building offers approximately 30,000 RSF of contiguous space with a slab-to-slab height of 12’ 3” and a live floor load capacity of 50 lbs/SF. This floor features direct access from the building’s iconic lobby and includes an escalator connection for convenient circulation. The layout combines open work areas with multiple private offices and meeting rooms, providing flexibility for a variety of uses. Large perimeter windows allow for abundant natural light and city views, while modern finishes and infrastructure support a professional and efficient environment. This space is well-suited for medical facilities, educational institutions, or professional office users seeking a prestigious address in a historic landmark.
- Entièrement construit comme Bureau standard
- Convient pour 75 à 240 personnes
- Peut être associé à un ou plusieurs espaces supplémentaires pour obtenir jusqu’à 60 000 pi² d’espace adjacent.
- On-site security for enhanced safety.
- Disposition du plan d’étage ouverte en général
- Espace en excellent état
- 24-hour access for tenants.
- Property manager available on-site.
The third floor encompasses approximately 30,000 RSF of adaptable space with a slab-to-slab height of 11’ 7” and a live floor load capacity of 50 lbs/SF. It is connected to the second floor via an internal staircase, creating an opportunity for multi-level occupancy. The floor plan offers a mix of open areas and enclosed rooms, ideal for offices, classrooms, or creative workspaces. Perimeter windows provide natural light and views of the surrounding cityscape, enhancing the overall work environment. With modern infrastructure and flexible design, this floor is suitable for a range of uses, including educational, cultural, or professional organizations, all within the historic and architecturally significant Woolworth Building.
- Entièrement construit comme Bureau standard
- Convient pour 75 à 240 personnes
- Peut être associé à un ou plusieurs espaces supplémentaires pour obtenir jusqu’à 60 000 pi² d’espace adjacent.
- 24-hour access for tenants.
- Disposition du plan d’étage ouverte en général
- Espace en excellent état
- Connected to the 2nd floor via internal staircase.
5,716 SF of fully built out office space.
- Entièrement construit comme Bureau standard
- Convient pour 15 à 46 personnes
- 24-hour access for tenants.
- Close proximity to Broadway attractions.
- Disposition du plan d’étage ouverte
- Espace en excellent état
- Property manager available on-site.
2,327 SF of fully built out office space.
- Entièrement construit comme Bureau standard
- Convient pour 6 à 19 personnes
- Plan ouvert
- On-site security for enhanced safety.
- Disposition du plan d’étage ouverte
- Espace en excellent état
- 24-hour access for tenants.
1,747 SF of fully built out office space.
- Entièrement construit comme Bureau standard
- Convient pour 5 à 14 personnes
- Plan ouvert
- 24-hour access for tenants.
- Disposition du plan d’étage ouverte
- Espace en excellent état
- On-site security for enhanced safety.
- Close proximity to Broadway attractions.
2,217 SF of fully built out office space.
- Entièrement construit comme Bureau standard
- Convient pour 6 à 18 personnes
- Plan ouvert
- Close proximity to Broadway attractions.
- Disposition du plan d’étage ouverte
- Espace en excellent état
- 24-hour access for tenants.
- On-site security for enhanced safety.
- Entièrement construit comme Bureau standard
- Convient pour 8 à 26 personnes
- Disposition du plan d’étage ouverte en général
- Espace en excellent état
- Entièrement construit comme Bureau standard
- Convient pour 10 à 30 personnes
- Disposition du plan d’étage ouverte en général
- Espace en excellent état
- Entièrement construit comme Bureau standard
- Convient pour 4 à 10 personnes
- Disposition du plan d’étage ouverte en général
- Espace en excellent état
- Le taux inscrit peut ne pas comprendre certains services publics, les services de bâtiment et les dépenses immobilières.
- Disposition du plan d’étage ouverte en général
- Espace en excellent état
- Entièrement construit comme Bureau standard
- Convient pour 29 à 92 personnes
2,594 SF of fully built out office space.
- Entièrement construit comme Bureau standard
- Convient pour 7 à 21 personnes
- Plan ouvert
- Disposition du plan d’étage ouverte
- Espace en excellent état
3,375 SF of fully built out office space.
- Entièrement construit comme Bureau standard
- Convient pour 9 à 27 personnes
- Disposition du plan d’étage ouverte en général
- Espace en excellent état
- Le taux inscrit peut ne pas comprendre certains services publics, les services de bâtiment et les dépenses immobilières.
- Disposition du plan d’étage ouverte en général
- 2 bureaux privés
- Espace en excellent état
- Pantry Area
- Entièrement construit comme Bureau standard
- Convient pour 4 à 11 personnes
- 1 salle de conférence
- Plan ouvert
Virtual Tour Link: https://my.matterport.com/show/?m=JxTk4jBmuXj
- Entièrement construit comme Bureau standard
- Convient pour 12 à 36 personnes
- Lumière naturelle
- Planchers de bois franc
- Disposition du plan d’étage ouverte en général
- Espace en excellent état
- Plan ouvert
- Abundant natural light
2,364 SF of fully built out office space with private offices, a reception area, and conference space available.
- Entièrement construit comme Bureau standard
- Convient pour 6 à 19 personnes
- 1 salle de conférence
- Salle d’impression/Photocopie
- Disposition du plan d’étage ouverte en général
- 4 bureaux privés
- Espace en excellent état
Floor 26 of the Woolworth Building offers approximately 28,098 square feet of premium office space within one of New York City’s most iconic landmarks. This historic property provides 24-hour access, on-site security, and a property manager for convenience and peace of mind. The building is surrounded by major transit options, including nearby subway lines and bus routes, and features restaurants within the property for added amenities. The space itself boasts high-end creative installation with concrete floors, soaring 13.5-foot ceilings, and exceptional natural light through large windows. It includes 16 private windowed offices and three conference rooms, making it ideal for collaborative work environments. Nearby attractions such as Broadway and proximity to major banks like Chase and Bank of America further enhance its appeal for professional users seeking a prestigious address.
- Entièrement construit comme Bureau standard
- Convient pour 71 à 225 personnes
- 3 salles de conférence
- Plafonds finis: 13’6”
- Hauts plafonds
- Expansive 13.5-foot ceilings
- High-end creative installation
- Disposition du plan d’étage ouverte en général
- 16 bureaux privés
- 130 postes de travail
- Espace en excellent état
- Lumière naturelle
- 16 private windowed offices
2,744 SF of fully built out office space with private office options and a conference room.
- Entièrement construit comme Bureau standard
- Convient pour 7 à 22 personnes
- Espace en excellent état
- Disposition du plan d’étage ouverte en général
- 1 salle de conférence
- Salle d’impression/Photocopie
Entire 28th floor - great branding opportunity in the iconic Woolworth building, once the tallest building in New York. Direct lease for 27,713 sf of office space in proximity to City Hall, New York courts, World Trade Center, Pace University and more. Near all modes of public/private transportation.
- Entièrement construit comme Bureau standard
- Convient pour 70 à 222 personnes
- Plan ouvert
- Occasion à l'étage complet - Immeuble emblématique de Manhattan
- Disposition du plan d’étage ouverte
- Espace en excellent état
- Des vues incroyables
- Situé au centre du centre-ville de New York
| Espace | Taille | Terme | Taux de location | Utilisation de l’espace | Aménagement | Disponible |
| RDC | 1 936 pi² | Négociable | Sur demande Sur demande Sur demande Sur demande | Bureau/Médical | construction complète | Maintenant |
| RDC, ste Portion | 1 225 pi² | Négociable | Sur demande Sur demande Sur demande Sur demande | Commerce de détail | construction complète | Maintenant |
| 2e étage | 30 000 pi² | Négociable | Sur demande Sur demande Sur demande Sur demande | Bureau/Médical | construction complète | Maintenant |
| 3e étage | 30 000 pi² | Négociable | Sur demande Sur demande Sur demande Sur demande | Bureau/Médical | construction complète | Maintenant |
| 7e étage, ste 720 | 5 716 pi² | Négociable | Sur demande Sur demande Sur demande Sur demande | Bureau | construction complète | Maintenant |
| 8e étage, ste 810 | 2 327 pi² | Négociable | Sur demande Sur demande Sur demande Sur demande | Bureau | construction complète | Maintenant |
| 8e étage, ste 850 | 1 747 pi² | Négociable | Sur demande Sur demande Sur demande Sur demande | Bureau | construction complète | Maintenant |
| 8e étage, ste 860 | 2 217 pi² | Négociable | Sur demande Sur demande Sur demande Sur demande | Bureau | construction complète | Maintenant |
| 17e étage, ste 1705 | 3 160 pi² | Négociable | Sur demande Sur demande Sur demande Sur demande | Bureau | construction complète | 2026-06-01 |
| 17e étage, ste 1710 | 3 712 pi² | Négociable | Sur demande Sur demande Sur demande Sur demande | Bureau | construction complète | 2026-06-01 |
| 17e étage, ste 1742 | 1 240 pi² | Négociable | Sur demande Sur demande Sur demande Sur demande | Bureau | construction complète | Maintenant |
| 18e étage, ste 1801 | 11 444 pi² | Négociable | Sur demande Sur demande Sur demande Sur demande | Bureau | construction complète | 2026-06-01 |
| 20e étage, ste 2005 | 2 594 pi² | Négociable | Sur demande Sur demande Sur demande Sur demande | Bureau | construction complète | Maintenant |
| 20e étage, ste 2020 | 3 375 pi² | Négociable | Sur demande Sur demande Sur demande Sur demande | Bureau | construction complète | Maintenant |
| 20e étage, ste 2060 | 1 267 pi² | Négociable | Sur demande Sur demande Sur demande Sur demande | Bureau | construction complète | 2026-05-01 |
| 21e étage, ste 2160 | 4 461 pi² | Négociable | Sur demande Sur demande Sur demande Sur demande | Bureau | construction complète | Maintenant |
| 22e étage, ste 2205 | 2 364 pi² | Négociable | Sur demande Sur demande Sur demande Sur demande | Bureau | construction complète | Maintenant |
| 26e étage, ste Entire | 28 098 pi² | Négociable | Sur demande Sur demande Sur demande Sur demande | Bureau | construction complète | Maintenant |
| 27e étage, ste 2704 | 2 744 pi² | Négociable | Sur demande Sur demande Sur demande Sur demande | Bureau | construction complète | Maintenant |
| 28e étage, ste Entire | 27 713 pi² | Négociable | Sur demande Sur demande Sur demande Sur demande | Bureau | construction complète | Maintenant |
RDC
| Taille |
| 1 936 pi² |
| Terme |
| Négociable |
| Taux de location |
| Sur demande Sur demande Sur demande Sur demande |
| Utilisation de l’espace |
| Bureau/Médical |
| Aménagement |
| construction complète |
| Disponible |
| Maintenant |
RDC, ste Portion
| Taille |
| 1 225 pi² |
| Terme |
| Négociable |
| Taux de location |
| Sur demande Sur demande Sur demande Sur demande |
| Utilisation de l’espace |
| Commerce de détail |
| Aménagement |
| construction complète |
| Disponible |
| Maintenant |
2e étage
| Taille |
| 30 000 pi² |
| Terme |
| Négociable |
| Taux de location |
| Sur demande Sur demande Sur demande Sur demande |
| Utilisation de l’espace |
| Bureau/Médical |
| Aménagement |
| construction complète |
| Disponible |
| Maintenant |
3e étage
| Taille |
| 30 000 pi² |
| Terme |
| Négociable |
| Taux de location |
| Sur demande Sur demande Sur demande Sur demande |
| Utilisation de l’espace |
| Bureau/Médical |
| Aménagement |
| construction complète |
| Disponible |
| Maintenant |
7e étage, ste 720
| Taille |
| 5 716 pi² |
| Terme |
| Négociable |
| Taux de location |
| Sur demande Sur demande Sur demande Sur demande |
| Utilisation de l’espace |
| Bureau |
| Aménagement |
| construction complète |
| Disponible |
| Maintenant |
8e étage, ste 810
| Taille |
| 2 327 pi² |
| Terme |
| Négociable |
| Taux de location |
| Sur demande Sur demande Sur demande Sur demande |
| Utilisation de l’espace |
| Bureau |
| Aménagement |
| construction complète |
| Disponible |
| Maintenant |
8e étage, ste 850
| Taille |
| 1 747 pi² |
| Terme |
| Négociable |
| Taux de location |
| Sur demande Sur demande Sur demande Sur demande |
| Utilisation de l’espace |
| Bureau |
| Aménagement |
| construction complète |
| Disponible |
| Maintenant |
8e étage, ste 860
| Taille |
| 2 217 pi² |
| Terme |
| Négociable |
| Taux de location |
| Sur demande Sur demande Sur demande Sur demande |
| Utilisation de l’espace |
| Bureau |
| Aménagement |
| construction complète |
| Disponible |
| Maintenant |
17e étage, ste 1705
| Taille |
| 3 160 pi² |
| Terme |
| Négociable |
| Taux de location |
| Sur demande Sur demande Sur demande Sur demande |
| Utilisation de l’espace |
| Bureau |
| Aménagement |
| construction complète |
| Disponible |
| 2026-06-01 |
17e étage, ste 1710
| Taille |
| 3 712 pi² |
| Terme |
| Négociable |
| Taux de location |
| Sur demande Sur demande Sur demande Sur demande |
| Utilisation de l’espace |
| Bureau |
| Aménagement |
| construction complète |
| Disponible |
| 2026-06-01 |
17e étage, ste 1742
| Taille |
| 1 240 pi² |
| Terme |
| Négociable |
| Taux de location |
| Sur demande Sur demande Sur demande Sur demande |
| Utilisation de l’espace |
| Bureau |
| Aménagement |
| construction complète |
| Disponible |
| Maintenant |
18e étage, ste 1801
| Taille |
| 11 444 pi² |
| Terme |
| Négociable |
| Taux de location |
| Sur demande Sur demande Sur demande Sur demande |
| Utilisation de l’espace |
| Bureau |
| Aménagement |
| construction complète |
| Disponible |
| 2026-06-01 |
20e étage, ste 2005
| Taille |
| 2 594 pi² |
| Terme |
| Négociable |
| Taux de location |
| Sur demande Sur demande Sur demande Sur demande |
| Utilisation de l’espace |
| Bureau |
| Aménagement |
| construction complète |
| Disponible |
| Maintenant |
20e étage, ste 2020
| Taille |
| 3 375 pi² |
| Terme |
| Négociable |
| Taux de location |
| Sur demande Sur demande Sur demande Sur demande |
| Utilisation de l’espace |
| Bureau |
| Aménagement |
| construction complète |
| Disponible |
| Maintenant |
20e étage, ste 2060
| Taille |
| 1 267 pi² |
| Terme |
| Négociable |
| Taux de location |
| Sur demande Sur demande Sur demande Sur demande |
| Utilisation de l’espace |
| Bureau |
| Aménagement |
| construction complète |
| Disponible |
| 2026-05-01 |
21e étage, ste 2160
| Taille |
| 4 461 pi² |
| Terme |
| Négociable |
| Taux de location |
| Sur demande Sur demande Sur demande Sur demande |
| Utilisation de l’espace |
| Bureau |
| Aménagement |
| construction complète |
| Disponible |
| Maintenant |
22e étage, ste 2205
| Taille |
| 2 364 pi² |
| Terme |
| Négociable |
| Taux de location |
| Sur demande Sur demande Sur demande Sur demande |
| Utilisation de l’espace |
| Bureau |
| Aménagement |
| construction complète |
| Disponible |
| Maintenant |
26e étage, ste Entire
| Taille |
| 28 098 pi² |
| Terme |
| Négociable |
| Taux de location |
| Sur demande Sur demande Sur demande Sur demande |
| Utilisation de l’espace |
| Bureau |
| Aménagement |
| construction complète |
| Disponible |
| Maintenant |
27e étage, ste 2704
| Taille |
| 2 744 pi² |
| Terme |
| Négociable |
| Taux de location |
| Sur demande Sur demande Sur demande Sur demande |
| Utilisation de l’espace |
| Bureau |
| Aménagement |
| construction complète |
| Disponible |
| Maintenant |
28e étage, ste Entire
| Taille |
| 27 713 pi² |
| Terme |
| Négociable |
| Taux de location |
| Sur demande Sur demande Sur demande Sur demande |
| Utilisation de l’espace |
| Bureau |
| Aménagement |
| construction complète |
| Disponible |
| Maintenant |
RDC
| Taille | 1 936 pi² |
| Terme | Négociable |
| Taux de location | Sur demande |
| Utilisation de l’espace | Bureau/Médical |
| Aménagement | construction complète |
| Disponible | Maintenant |
1,936 SF of fully built out office space on ground floor.
- Entièrement construit comme Bureau standard
- Disposition du plan d’étage ouverte en général
- Convient pour 5 à 16 personnes
- Espace en excellent état
- 24 Hour Access
- Property Manager on Site
RDC, ste Portion
| Taille | 1 225 pi² |
| Terme | Négociable |
| Taux de location | Sur demande |
| Utilisation de l’espace | Commerce de détail |
| Aménagement | construction complète |
| Disponible | Maintenant |
1,225 SF of fully built out retail space on ground floor.
- Entièrement construit comme Espace de commerce de détail standard
- Situé en ligne avec d’autres commerces de détail
- Espace en excellent état
- Property Manager on Site
- 24 Hour Access
2e étage
| Taille | 30 000 pi² |
| Terme | Négociable |
| Taux de location | Sur demande |
| Utilisation de l’espace | Bureau/Médical |
| Aménagement | construction complète |
| Disponible | Maintenant |
The second floor of the Woolworth Building offers approximately 30,000 RSF of contiguous space with a slab-to-slab height of 12’ 3” and a live floor load capacity of 50 lbs/SF. This floor features direct access from the building’s iconic lobby and includes an escalator connection for convenient circulation. The layout combines open work areas with multiple private offices and meeting rooms, providing flexibility for a variety of uses. Large perimeter windows allow for abundant natural light and city views, while modern finishes and infrastructure support a professional and efficient environment. This space is well-suited for medical facilities, educational institutions, or professional office users seeking a prestigious address in a historic landmark.
- Entièrement construit comme Bureau standard
- Disposition du plan d’étage ouverte en général
- Convient pour 75 à 240 personnes
- Espace en excellent état
- Peut être associé à un ou plusieurs espaces supplémentaires pour obtenir jusqu’à 60 000 pi² d’espace adjacent.
- 24-hour access for tenants.
- On-site security for enhanced safety.
- Property manager available on-site.
3e étage
| Taille | 30 000 pi² |
| Terme | Négociable |
| Taux de location | Sur demande |
| Utilisation de l’espace | Bureau/Médical |
| Aménagement | construction complète |
| Disponible | Maintenant |
The third floor encompasses approximately 30,000 RSF of adaptable space with a slab-to-slab height of 11’ 7” and a live floor load capacity of 50 lbs/SF. It is connected to the second floor via an internal staircase, creating an opportunity for multi-level occupancy. The floor plan offers a mix of open areas and enclosed rooms, ideal for offices, classrooms, or creative workspaces. Perimeter windows provide natural light and views of the surrounding cityscape, enhancing the overall work environment. With modern infrastructure and flexible design, this floor is suitable for a range of uses, including educational, cultural, or professional organizations, all within the historic and architecturally significant Woolworth Building.
- Entièrement construit comme Bureau standard
- Disposition du plan d’étage ouverte en général
- Convient pour 75 à 240 personnes
- Espace en excellent état
- Peut être associé à un ou plusieurs espaces supplémentaires pour obtenir jusqu’à 60 000 pi² d’espace adjacent.
- Connected to the 2nd floor via internal staircase.
- 24-hour access for tenants.
7e étage, ste 720
| Taille | 5 716 pi² |
| Terme | Négociable |
| Taux de location | Sur demande |
| Utilisation de l’espace | Bureau |
| Aménagement | construction complète |
| Disponible | Maintenant |
5,716 SF of fully built out office space.
- Entièrement construit comme Bureau standard
- Disposition du plan d’étage ouverte
- Convient pour 15 à 46 personnes
- Espace en excellent état
- 24-hour access for tenants.
- Property manager available on-site.
- Close proximity to Broadway attractions.
8e étage, ste 810
| Taille | 2 327 pi² |
| Terme | Négociable |
| Taux de location | Sur demande |
| Utilisation de l’espace | Bureau |
| Aménagement | construction complète |
| Disponible | Maintenant |
2,327 SF of fully built out office space.
- Entièrement construit comme Bureau standard
- Disposition du plan d’étage ouverte
- Convient pour 6 à 19 personnes
- Espace en excellent état
- Plan ouvert
- 24-hour access for tenants.
- On-site security for enhanced safety.
8e étage, ste 850
| Taille | 1 747 pi² |
| Terme | Négociable |
| Taux de location | Sur demande |
| Utilisation de l’espace | Bureau |
| Aménagement | construction complète |
| Disponible | Maintenant |
1,747 SF of fully built out office space.
- Entièrement construit comme Bureau standard
- Disposition du plan d’étage ouverte
- Convient pour 5 à 14 personnes
- Espace en excellent état
- Plan ouvert
- On-site security for enhanced safety.
- 24-hour access for tenants.
- Close proximity to Broadway attractions.
8e étage, ste 860
| Taille | 2 217 pi² |
| Terme | Négociable |
| Taux de location | Sur demande |
| Utilisation de l’espace | Bureau |
| Aménagement | construction complète |
| Disponible | Maintenant |
2,217 SF of fully built out office space.
- Entièrement construit comme Bureau standard
- Disposition du plan d’étage ouverte
- Convient pour 6 à 18 personnes
- Espace en excellent état
- Plan ouvert
- 24-hour access for tenants.
- Close proximity to Broadway attractions.
- On-site security for enhanced safety.
17e étage, ste 1705
| Taille | 3 160 pi² |
| Terme | Négociable |
| Taux de location | Sur demande |
| Utilisation de l’espace | Bureau |
| Aménagement | construction complète |
| Disponible | 2026-06-01 |
- Entièrement construit comme Bureau standard
- Disposition du plan d’étage ouverte en général
- Convient pour 8 à 26 personnes
- Espace en excellent état
17e étage, ste 1710
| Taille | 3 712 pi² |
| Terme | Négociable |
| Taux de location | Sur demande |
| Utilisation de l’espace | Bureau |
| Aménagement | construction complète |
| Disponible | 2026-06-01 |
- Entièrement construit comme Bureau standard
- Disposition du plan d’étage ouverte en général
- Convient pour 10 à 30 personnes
- Espace en excellent état
17e étage, ste 1742
| Taille | 1 240 pi² |
| Terme | Négociable |
| Taux de location | Sur demande |
| Utilisation de l’espace | Bureau |
| Aménagement | construction complète |
| Disponible | Maintenant |
- Entièrement construit comme Bureau standard
- Disposition du plan d’étage ouverte en général
- Convient pour 4 à 10 personnes
- Espace en excellent état
18e étage, ste 1801
| Taille | 11 444 pi² |
| Terme | Négociable |
| Taux de location | Sur demande |
| Utilisation de l’espace | Bureau |
| Aménagement | construction complète |
| Disponible | 2026-06-01 |
- Le taux inscrit peut ne pas comprendre certains services publics, les services de bâtiment et les dépenses immobilières.
- Entièrement construit comme Bureau standard
- Disposition du plan d’étage ouverte en général
- Convient pour 29 à 92 personnes
- Espace en excellent état
20e étage, ste 2005
| Taille | 2 594 pi² |
| Terme | Négociable |
| Taux de location | Sur demande |
| Utilisation de l’espace | Bureau |
| Aménagement | construction complète |
| Disponible | Maintenant |
2,594 SF of fully built out office space.
- Entièrement construit comme Bureau standard
- Disposition du plan d’étage ouverte
- Convient pour 7 à 21 personnes
- Espace en excellent état
- Plan ouvert
20e étage, ste 2020
| Taille | 3 375 pi² |
| Terme | Négociable |
| Taux de location | Sur demande |
| Utilisation de l’espace | Bureau |
| Aménagement | construction complète |
| Disponible | Maintenant |
3,375 SF of fully built out office space.
- Entièrement construit comme Bureau standard
- Disposition du plan d’étage ouverte en général
- Convient pour 9 à 27 personnes
- Espace en excellent état
20e étage, ste 2060
| Taille | 1 267 pi² |
| Terme | Négociable |
| Taux de location | Sur demande |
| Utilisation de l’espace | Bureau |
| Aménagement | construction complète |
| Disponible | 2026-05-01 |
- Le taux inscrit peut ne pas comprendre certains services publics, les services de bâtiment et les dépenses immobilières.
- Entièrement construit comme Bureau standard
- Disposition du plan d’étage ouverte en général
- Convient pour 4 à 11 personnes
- 2 bureaux privés
- 1 salle de conférence
- Espace en excellent état
- Plan ouvert
- Pantry Area
21e étage, ste 2160
| Taille | 4 461 pi² |
| Terme | Négociable |
| Taux de location | Sur demande |
| Utilisation de l’espace | Bureau |
| Aménagement | construction complète |
| Disponible | Maintenant |
Virtual Tour Link: https://my.matterport.com/show/?m=JxTk4jBmuXj
- Entièrement construit comme Bureau standard
- Disposition du plan d’étage ouverte en général
- Convient pour 12 à 36 personnes
- Espace en excellent état
- Lumière naturelle
- Plan ouvert
- Planchers de bois franc
- Abundant natural light
22e étage, ste 2205
| Taille | 2 364 pi² |
| Terme | Négociable |
| Taux de location | Sur demande |
| Utilisation de l’espace | Bureau |
| Aménagement | construction complète |
| Disponible | Maintenant |
2,364 SF of fully built out office space with private offices, a reception area, and conference space available.
- Entièrement construit comme Bureau standard
- Disposition du plan d’étage ouverte en général
- Convient pour 6 à 19 personnes
- 4 bureaux privés
- 1 salle de conférence
- Espace en excellent état
- Salle d’impression/Photocopie
26e étage, ste Entire
| Taille | 28 098 pi² |
| Terme | Négociable |
| Taux de location | Sur demande |
| Utilisation de l’espace | Bureau |
| Aménagement | construction complète |
| Disponible | Maintenant |
Floor 26 of the Woolworth Building offers approximately 28,098 square feet of premium office space within one of New York City’s most iconic landmarks. This historic property provides 24-hour access, on-site security, and a property manager for convenience and peace of mind. The building is surrounded by major transit options, including nearby subway lines and bus routes, and features restaurants within the property for added amenities. The space itself boasts high-end creative installation with concrete floors, soaring 13.5-foot ceilings, and exceptional natural light through large windows. It includes 16 private windowed offices and three conference rooms, making it ideal for collaborative work environments. Nearby attractions such as Broadway and proximity to major banks like Chase and Bank of America further enhance its appeal for professional users seeking a prestigious address.
- Entièrement construit comme Bureau standard
- Disposition du plan d’étage ouverte en général
- Convient pour 71 à 225 personnes
- 16 bureaux privés
- 3 salles de conférence
- 130 postes de travail
- Plafonds finis: 13’6”
- Espace en excellent état
- Hauts plafonds
- Lumière naturelle
- Expansive 13.5-foot ceilings
- 16 private windowed offices
- High-end creative installation
27e étage, ste 2704
| Taille | 2 744 pi² |
| Terme | Négociable |
| Taux de location | Sur demande |
| Utilisation de l’espace | Bureau |
| Aménagement | construction complète |
| Disponible | Maintenant |
2,744 SF of fully built out office space with private office options and a conference room.
- Entièrement construit comme Bureau standard
- Disposition du plan d’étage ouverte en général
- Convient pour 7 à 22 personnes
- 1 salle de conférence
- Espace en excellent état
- Salle d’impression/Photocopie
28e étage, ste Entire
| Taille | 27 713 pi² |
| Terme | Négociable |
| Taux de location | Sur demande |
| Utilisation de l’espace | Bureau |
| Aménagement | construction complète |
| Disponible | Maintenant |
Entire 28th floor - great branding opportunity in the iconic Woolworth building, once the tallest building in New York. Direct lease for 27,713 sf of office space in proximity to City Hall, New York courts, World Trade Center, Pace University and more. Near all modes of public/private transportation.
- Entièrement construit comme Bureau standard
- Disposition du plan d’étage ouverte
- Convient pour 70 à 222 personnes
- Espace en excellent état
- Plan ouvert
- Des vues incroyables
- Occasion à l'étage complet - Immeuble emblématique de Manhattan
- Situé au centre du centre-ville de New York
Visites 3D Matterport
Aperçu de la propriété
Il y a plus d'un siècle, l'emblématique Woolworth Building, situé au 233 Broadway, a d'abord percé la ligne d'horizon de la ville de New York, une cathédrale néo-gothique de commerce qui a contribué à définir le paysage urbain naissant. Ce monument historique est maintenant entièrement équipé pour répondre aux besoins spatiaux et technologiques des entreprises d'aujourd'hui et de demain. Installé dans un quartier animé par le commerce, la restauration, le transport et l'infrastructure, le Woolworth Building a été et sera toujours une icône de la ville de New York. Au-dessus du lobby arqué classique, les agences, les entreprises, les entreprises en démarrage et d'autres entreprises trouvent une maison aménagée avec toutes les commodités et tous les besoins modernes. Les caractéristiques de la propriété comprennent un parking sur place, un accès à l'immeuble 24 heures sur 24, 18 ascenseurs de passagers entièrement modernisés, deux monte-charges, des fenêtres en verre isolantes à double accroche et une entrée directe du métro. Des aménagements intensifs de bureaux dans différentes tailles de suites et des étages entiers de 28 098 pieds carrés sont immédiatement disponibles pour répondre à tous les besoins de l'entreprise et à tous les besoins d'espace. Joignez-vous à une solide liste de locataires qui comprend le Center for Global Affairs & American Language Institute (ALI) de New York, Shop Architects, artnet, la New York City Police Pension Fund et T-Mobile. Le commerce bat de dynamisme et de créativité comme jamais auparavant au cœur de New York. L'époque où le centre-ville était synonyme de costumes trois pièces et de bureaucrates farouche se sont transformés en restaurants et en marchés à Tribeca, un lien avec la nature par le développement du West Side Waterfront, et les rues sinueuses de la ville abritent des loft, des bars et des boutiques reconvertis. D'élégantes lampes à gaz brûlent toujours dans le parc de l'hôtel de ville, accueillant les nouveaux arrivants et les anciens voisins. Au-dessus, au centre de tout, se dresse l'édifice Woolworth, aussi emblématique aujourd'hui qu'il l'était il y a plus de 100 ans.
- Accès 24 heures
- Atrium
- Banque
- Ligne d'autobus
- Cour
- Métro
- Gestionnaire d'immeuble sur place
- Restaurant
- Climatisation
Faits sur la propriété
Sélectionner des locataires
- Allied Integrated Marketing
- Agence de marketing internationale à service complet basée à Los Angeles, en Californie et fondée en 1986.
- Artnet Worldwide Corporation
- Lieu d'achat, de vente et de recherche d'œuvres d'art en ligne, situé à New York.
- CallisonRTKL
- Leader mondial des services de conception, de conseil et de gestion de projet aux Pays-Bas depuis 1888.
- Goldfarb & Gerzog
- Cabinet d'avocats local représentant des clients dans le cadre de litiges en dommages corporels à New York
- Icon Parking Systems
- Provides parking management and mobility services in urban environments.
- Melito & Adolfsen P.C.
- Cabinet d'avocats régional dont le siège social est situé à New York, dans l'État de New York, spécialisé dans la défense d'assurance.
- New York City Police Pension Fund
- Services des caisses de retraite et service de la commission de police qui aide les participants actifs et retraités.
- NYU Langone Seaport Orthopaedic
- Global research University, située à New York et fondée en 1831.
- SHoP Architects
- Cabinet d'architecture local situé à New York, New York fondé en 1996.
- Splash
- Éditeurs locaux d'une plateforme de marketing événementiel, située à New York, NY.
Commodités à proximité
Hôpitaux |
|||
|---|---|---|---|
| Mount Sinai Beth Israel | Soins de courte durée | 8 route min. | 3,9 km |
| New York Eye and Ear Infirmary of Mount Sinai | Soins de courte durée | 9 route min. | 4,1 km |
| Brooklyn Hospital Center - Downtown Campus | Soins de courte durée | 8 route min. | 4,4 km |
| Hoboken University Medical Center | Soins de courte durée | 11 route min. | 6,3 km |
| Jersey City Medical Center | Soins de courte durée | 11 route min. | 6,9 km |
Restaurants |
|||
|---|---|---|---|
| Dunkin' | Café | - | 2 Min. de marche |
| Dark Horse | Américain | $$ | 3 Min. de marche |
| Salad Fox | Salade | $ | 3 Min. de marche |
| Pret A Manger | Restauration rapide | $ | 3 Min. de marche |
Commerce de détail |
||
|---|---|---|
| CVS Pharmacy | Pharmacie | 3 Min. de marche |
| Chase Bank | Banque | 2 Min. de marche |
| Equinox | Entraînement physique | 3 Min. de marche |
| Target | Grand magasin | 4 Min. de marche |
Hôtels |
|
|---|---|
| aloft Hotel |
128 Pièces
5 Min. de marche
|
À propos du quartier Hôtel de ville
Situé à la pointe sud de Manhattan, l'hôtel de ville, comme son nom l'indique, abrite un grand nombre d'agences gouvernementales locales. Dominé par le secteur gouvernemental, les locataires comme le ministère des Bâtiments et le conseil municipal de New York sont présents ici. Les
occupants continuent d'être attirés par la foule d'immeubles de bureaux de qualité et la connectivité supérieure à Brooklyn et New Jersey via le Fulton Transit Center situé à proximité. Le
développement résidentiel croissant de Lower Manhattan et l'évolution du paysage commercial à Brookfield Place et Pier 17, à proximité, servent de facteurs de demande supplémentaires.
Équipe de location
David Ofman, Executive Managing Director
Brian Siegel, Executive Managing Director
À propos du propriétaire
Autres propriétés dans le ALCHEMY PROPERTIES INC. portefeuille
À propos de l’architecte
Autres propriétés dans le Cass Gilbert portefeuille
Présenté par
The Woolworth Building | 233 Broadway
Hmm, il semble y avoir eu une erreur lors de l’envoi de votre message. Veuillez réessayer.
Merci! Votre message a été envoyé.








































