Votre courriel a été envoyé.
Certaines informations ont été traduites automatiquement.
Faits saillants
- 8,010± SF Modern Industrial Space For Lease At Grandview Business Park
- Office Area Reception, 6 Offices, 2 ADA Restrooms & Break Room
- Just 1.7 Miles From I-79 & 6.1 Miles From I-90
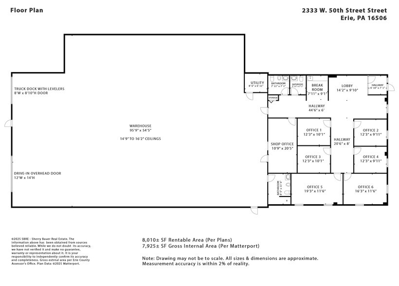
- 5,287± SF Warehouse Features 16' Ceilings, Shop Office, Shop Restroom, Overhead Door & Truck Dock
- Zoned I-1, Light Industrial - Floor Plan & 3D Tour Available
Caractéristiques
Tous les espaces disponibles(1)
Afficher les taux de location en
- Espace
- Taille
- Terme
- Taux de location
- Utilisation de l’espace
- État
- Disponible
8,010± SF modern industrial space for lease at Grandview Business Park. 5,287± SF warehouse features 14'9" to 16'2" ceilings, 12'x14' drive-in overhead door, raised truck dock with leveler (8'W x 8'10"H overhead door), shop office, shop restroom, 200 amp, 3-phase power & more. 2,723± SF office area with reception, 6 private offices - 4 including windows for natural light, break room & two ADA restrooms. Located just 1.7 miles to I-79 & 6.1 miles to I-90. Zoned I-1 Light Industrial. Offered at $12.95/SF/YR-NNN. NNN estimated at $2.14/SF/YR based on 2025. Floor plan and 3D tour available. Contact broker for additional information or to schedule a tour.
- Le taux de location ne comprend pas les services publics, les services de bâtiment ou les dépenses immobilières.
- 1 accès plain-pied
- 1 quai de chargement
- 5,287±SF Warehouse With Truck Dock & Drive-In Door
- 2,723± SF Office Area Lobby/Reception & 6 Offices
- Floor Plan & 3D Tour Available - Zoned Lt. Ind.
- Comprend 2 723 pi² d’espace de bureau dédié
- Espace en excellent état
- 8,010±SF Modern Industrial Space For Lease
- 16' Ceilings, Shop Office & Shop Restroom
- Break Room & 2 Restrooms
| Espace | Taille | Terme | Taux de location | Utilisation de l’espace | État | Disponible |
| 1er étage - 2333 W. 50th Street | 8 010 pi² | Négociable | 17,73 $ CAD/pi²/an 1,48 $ CAD/pi²/mois 141 978 $ CAD/an 11 831 $ CAD/mois | Industriel | construction complète | Maintenant |
1er étage - 2333 W. 50th Street
| Taille |
| 8 010 pi² |
| Terme |
| Négociable |
| Taux de location |
| 17,73 $ CAD/pi²/an 1,48 $ CAD/pi²/mois 141 978 $ CAD/an 11 831 $ CAD/mois |
| Utilisation de l’espace |
| Industriel |
| État |
| construction complète |
| Disponible |
| Maintenant |
1er étage - 2333 W. 50th Street
| Taille | 8 010 pi² |
| Terme | Négociable |
| Taux de location | 17,73 $ CAD/pi²/an |
| Utilisation de l’espace | Industriel |
| État | construction complète |
| Disponible | Maintenant |
8,010± SF modern industrial space for lease at Grandview Business Park. 5,287± SF warehouse features 14'9" to 16'2" ceilings, 12'x14' drive-in overhead door, raised truck dock with leveler (8'W x 8'10"H overhead door), shop office, shop restroom, 200 amp, 3-phase power & more. 2,723± SF office area with reception, 6 private offices - 4 including windows for natural light, break room & two ADA restrooms. Located just 1.7 miles to I-79 & 6.1 miles to I-90. Zoned I-1 Light Industrial. Offered at $12.95/SF/YR-NNN. NNN estimated at $2.14/SF/YR based on 2025. Floor plan and 3D tour available. Contact broker for additional information or to schedule a tour.
- Le taux de location ne comprend pas les services publics, les services de bâtiment ou les dépenses immobilières.
- Comprend 2 723 pi² d’espace de bureau dédié
- 1 accès plain-pied
- Espace en excellent état
- 1 quai de chargement
- 8,010±SF Modern Industrial Space For Lease
- 5,287±SF Warehouse With Truck Dock & Drive-In Door
- 16' Ceilings, Shop Office & Shop Restroom
- 2,723± SF Office Area Lobby/Reception & 6 Offices
- Break Room & 2 Restrooms
- Floor Plan & 3D Tour Available - Zoned Lt. Ind.
Aperçu de la propriété
8,010± SF modern industrial space for lease at Grandview Business Park. 5,287± SF warehouse features 14'9" to 16'2" ceilings, 12'x14' drive-in overhead door, raised truck dock with leveler (8'W x 8'10"H overhead door), shop office, shop restroom, 200 amp, 3-phase power & more. 2,723± SF office area with reception, 6 private offices - 4 including windows for natural light, break room & two ADA restrooms. Located just 1.7 miles to I-79 & 6.1 miles to I-90. Zoned I-1 Light Industrial. Offered at $12.95/SF/YR-NNN. Floor plan and 3D tour available. Offered at $12.95/SF/YR-NNN. NNN estimated at $2.14/SF/YR based on 2025. Contact broker for additional information or to schedule a tour.
Faits sur l’installation entrepôt
Sélectionner des locataires
- Nom du locataire
- Secteur
- Kaman Industrial
- Fabrication
- Service Coordination Unlimited
- Services
Présenté par
2333-2335 W 50th St
Hmm, il semble y avoir eu une erreur lors de l’envoi de votre message. Veuillez réessayer.
Merci! Votre message a été envoyé.






