Votre courriel a été envoyé.
23423 NW 30th Road - Residential Development in Gainesville Suburb Lot • Résidentiel • 225 Acres • 31 831 999 $ CAD • Newberry, FL 32669



Certaines informations ont été traduites automatiquement.
Faits saillants de l'investissement
- Future development in for this lot and the surrounding area
- High-demand residential land
- 20 minutes from Gainesville
Résumé de l'annonce
Newberry has experienced significant growth with a brand new nearby Publix (5 minutes), fueled by its close proximity to The University of Florida (30 minutes), Interstate-75 (20 minutes), and US HWY 27 (1 minute). The area continues to attract a diverse population of professionals, students, and retirees, making this a strategic location for for-sale or for-rent residential product.
Faits sur la propriété
1 Lot disponible
Lot
| Prix | 31 831 999 $ CAD | Taille du lot | 225,00 AC |
| Prix par AC | 141 475,55 $ CAD |
| Prix | 31 831 999 $ CAD |
| Prix par AC | 141 475,55 $ CAD |
| Taille du lot | 225,00 AC |
An outstanding entitled development opportunity in the heart of Newberry, FL a thriving suburb of Gainesville, FL. This site offers a rare chance to deliver a high-demand residential product in one of Florida’s fastest-growing suburbs
Description
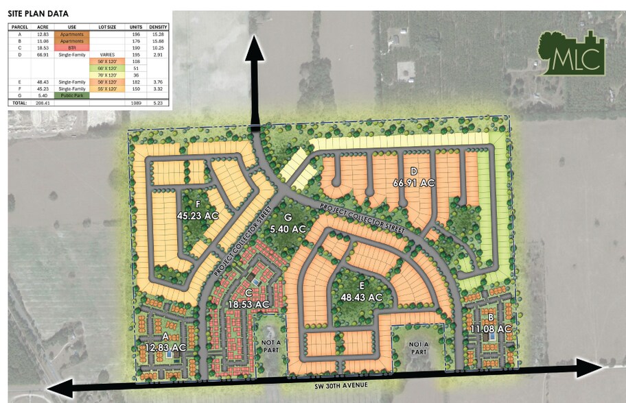
Site de Développement Résidentiel jusqu'à ±1 089 Unités | Newberry, FL Une opportunité de développement exceptionnelle dans le cœur de Newberry, FL, une banlieue florissante de Gainesville, FL (Université de Floride). Ce site offre une occasion rare de proposer un produit résidentiel très demandé dans l'une des banlieues à la croissance la plus rapide de Floride. Situé près du centre-ville de Newberry, FL et à environ 750 pieds de l'autoroute US 27, le site s'étend sur plusieurs parcelles avec une autorisation pour jusqu'à ±1 089 unités résidentielles. Le projet est en cours d'ingénierie et sera prêt à démarrer dans un avenir proche, simplifiant ainsi le passage de l'acquisition à la construction verticale. Newberry a connu une croissance significative avec un tout nouveau Publix à proximité (5 minutes), grâce à sa proximité avec l'Université de Floride (30 minutes), l'Interstate-75 (20 minutes) et l'US HWY 27 (1 minute). La région continue d'attirer une population diversifiée de professionnels, d'étudiants et de retraités, ce qui en fait un emplacement stratégique pour un produit résidentiel à vendre ou à louer.
Impôts fonciers
| Numéros de lot | Évaluation des bâtiments | 48 382 $ CAD | |
| Évaluation du terrain | 4 983 438 $ CAD | Évaluation totale | 5 344 231 $ CAD |
Impôts fonciers
Présenté par
23423 NW 30th Road - Residential Development in Gainesville Suburb
Hmm, il semble y avoir eu une erreur lors de l’envoi de votre message. Veuillez réessayer.
Merci! Votre message a été envoyé.
