Votre courriel a été envoyé.
Certaines informations ont été traduites automatiquement.
Faits saillants
- Full interior/exterior renovation in progress – project set for completion by Q1 2026
- Excellent signage opportunity at a signalized intersection (20,237 vehicles per day)
- Existing layout includes multiple restrooms, kitchen, private offices, and reception area
- Outdoor patio with picnic area and Territorial Views
Disponibilité des espaces (2)
Afficher les taux de location en
- Espace
- Taille
- Terme
- Taux de location
- Type de loyer
| Espace | Taille | Terme | Taux de location | Type de loyer | ||
| Niveau inférieur, ste 100 | 1 251 pi² | Négociable | Sur demande Sur demande Sur demande Sur demande | À déterminer | ||
| 1er étage, ste 200 | 1 938 pi² | Négociable | 38,02 $ CAD/pi²/an 3,17 $ CAD/pi²/mois 73 691 $ CAD/an 6 141 $ CAD/mois | Loyer hypernet |
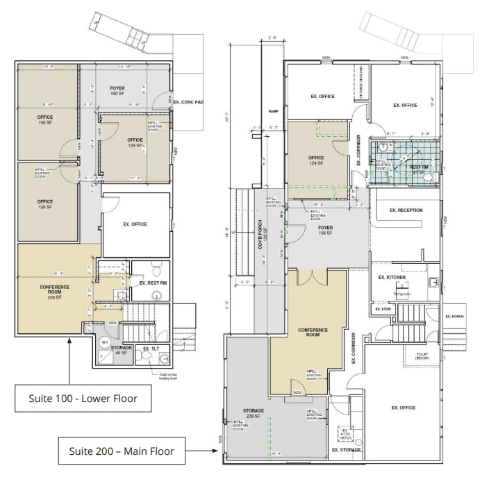
Niveau inférieur, ste 100
AVAILABLE FOR LEASE (IMPROVEMENTS UNDERWAY) ±3,189 SF Total (Divisible to Suite 100 / Suite 200) Suite 100: ±1,251 SF Suite 200: ±1,938 SF • Full interior/exterior renovation in progress – project set for completion by Q1 2026 • Existing layout includes multiple restrooms, kitchen, private offices, and reception area • Ample On-Site Parking (4 Stalls per 1,000 SF) • Frontage along Bothell Everett Hwy with easy access to retail amenities • Tenant Improvement Allowance available for qualified tenants – please inquire with listing brokers • Excellent signage opportunity at a signalized intersection (20,237 vehicles per day) • Outdoor patio with picnic area and Territorial Views • Asking Rent: $28.00/SF/Year, NNN (2025 Est. NNN = $9.32/SF/Year)
- Convient pour 4 à 11 personnes
1er étage, ste 200
AVAILABLE FOR LEASE (IMPROVEMENTS UNDERWAY) ±3,189 SF Total (Divisible to Suite 100 / Suite 200) Suite 100: ±1,251 SF Suite 200: ±1,938 SF • Full interior/exterior renovation in progress – project set for completion by Q1 2026 • Existing layout includes multiple restrooms, kitchen, private offices, and reception area • Ample On-Site Parking (4 Stalls per 1,000 SF) • Frontage along Bothell Everett Hwy with easy access to retail amenities • Tenant Improvement Allowance available for qualified tenants – please inquire with listing brokers • Excellent signage opportunity at a signalized intersection (20,237 vehicles per day) • Outdoor patio with picnic area and Territorial Views • Asking Rent: $28.00/SF/Year, NNN (2025 Est. NNN = $9.32/SF/Year)
- Le taux de location ne comprend pas les services publics, les services de bâtiment ou les dépenses immobilières.
- Convient pour 5 à 16 personnes
Types de loyers
Le type et le montant du loyer que le locataire (preneur) est tenu de payer au propriétaire (bailleur) sur la durée du bail sont négociés avant la signature du bail par les deux parties. Le type de loyer varie selon les services fournis. Par exemple, le prix d’un loyer hypernet est habituellement inférieur à celui d’un bail à service complet puisque le locataire est tenu d’assumer des dépenses additionnelles par rapport au loyer de base. Contactez le courtier inscripteur pour tout connaître sur les frais connexes et additionnels associés à chaque type de loyer.
1. Service complet: Un taux de location qui comprend des services standards liés à l’immeuble fournis par le propriétaire dans le cadre d’une location annuelle de base.
2. Loyer supernet: Le locataire paie seulement deux des frais de l’immeuble. Le propriétaire et le locataire déterminent ces frais spécifiques avant la signature du bail.
3. Loyer hypernet: Un bail en vertu duquel le locataire est responsable de tous les frais liés à sa part proportionnelle d’occupation de l’immeuble.
4. Brut modifié: Le loyer brut modifié désigne un type général de taux de location dans lequel le locataire est habituellement responsable de sa part proportionnelle d’un ou de plusieurs frais. C’est le propriétaire qui paie les frais restants. Considérez les structures tarifaires courantes suivantes applicables aux loyers bruts modifiés: 4. Plus les services: Un type de bail brut modifié suivant lequel le locataire est responsable de sa part proportionnelle des coûts des services publics, en plus du loyer. 4. Plus le nettoyage: Un type de bail brut modifié suivant lequel le locataire est responsable de sa part proportionnelle des coûts de nettoyage, en plus du loyer. 4. Plus l'électricité: Un type de bail brut modifié suivant lequel le locataire est responsable de sa part proportionnelle des coûts d’électricité, en plus du loyer. 4. Plus l’électricité et le nettoyage: Un type de bail brut modifié dans lequel le locataire est responsable de sa part proportionnelle des coûts d’électricité et de nettoyage, en plus du loyer. 4. Plus les services publics et le nettoyage: Un type de bail brut modifié dans lequel le locataire est responsable de sa part proportionnelle des coûts des services publics et de nettoyage, en plus du loyer. 4. Bail industriel brut: Un type de bail brut modifié dans lequel le locataire paie un ou plusieurs des frais, en plus du loyer. Le propriétaire et le locataire déterminent ces frais spécifiques avant la signature du bail.
5. L’électricité est à la charge du locataire: Le propriétaire paie pour tous les services et le locataire est responsable de sa propre utilisation de l’éclairage et des prises électriques dans l’espace qu’il occupe.
6. Négociable ou sur demande: Cette option est utilisée lorsque le contact de location ne précise pas le type de loyer ou de service.
7. À déterminer: À déterminer ; utilisé pour les immeubles dont le type de services ou de loyer n’est pas connu, souvent quand l’immeuble n’est pas encore construit.
Faits sur la propriété
| Superficie totale disponible | 3 189 pi² | Année de construction/rénovation | 1965/2026 |
| Type de propriété | Commerce de détail | Ratio de stationnement | 0,31/1 000 pi² |
| Superficie commerciale brute | 3 189 pi² | État de la construction | En cours de rénovation |
| Superficie totale disponible | 3 189 pi² |
| Type de propriété | Commerce de détail |
| Superficie commerciale brute | 3 189 pi² |
| Année de construction/rénovation | 1965/2026 |
| Ratio de stationnement | 0,31/1 000 pi² |
| État de la construction | En cours de rénovation |
À propos de la propriété
AVAILABLE FOR LEASE (IMPROVEMENTS UNDERWAY) ±3,189 SF Total (Divisible to Suite 100 / Suite 200) Suite 100: ±1,251 SF Suite 200: ±1,938 SF • Full interior/exterior renovation in progress – project set for completion by Q1 2026 • Existing layout includes multiple restrooms, kitchen, private offices, and reception area • Ample On-Site Parking (4 Stalls per 1,000 SF) • Frontage along Bothell Everett Hwy with easy access to retail amenities • Tenant Improvement Allowance available for qualified tenants – please inquire with listing brokers • Excellent signage opportunity at a signalized intersection (20,237 vehicles per day) • Outdoor patio with picnic area and Territorial Views • Asking Rent: $28.00/SF/Year, NNN (2025 Est. NNN = $9.32/SF/Year)
Principaux détaillants à proximité
Présenté par
23717 Bothell-Everett Hwy
Hmm, il semble y avoir eu une erreur lors de l’envoi de votre message. Veuillez réessayer.
Merci! Votre message a été envoyé.







