Votre courriel a été envoyé.
238-239 Oxford St 765–11 545 pi² d'espace disponible • Commerce de détail • Swansea SA1 3BL



Certaines informations ont été traduites automatiquement.
Faits saillants
- Emplacement de commerce de détail bien en vue
- Les parties supérieures pourraient convenir à la vente au détail, au gymnase, au restaurant, à la salle d'évasion et à d'autres utilisations récréatives
- Liaisons de transport solides
Disponibilité des espaces (4)
Afficher les taux de location en
- Espace
- Taille
- Terme
- Taux de location
- Type
| Espace | Taille | Terme | Taux de location | Type de loyer | ||
| RDC | 3 515 pi² | Négociable | 18,77 $ CAD/pi²/an 1,56 $ CAD/pi²/mois 65 971 $ CAD/an 5 498 $ CAD/mois | Réparation complète et assurance | ||
| 1er étage | 3 660 pi² | Négociable | 12,02 $ CAD/pi²/an 1,00 $ CAD/pi²/mois 43 981 $ CAD/an 3 665 $ CAD/mois | Réparation complète et assurance | ||
| 2e étage | 3 605 pi² | Négociable | 12,20 $ CAD/pi²/an 1,02 $ CAD/pi²/mois 43 981 $ CAD/an 3 665 $ CAD/mois | Réparation complète et assurance | ||
| 3e étage | 765 pi² | Négociable | 17,25 $ CAD/pi²/an 1,44 $ CAD/pi²/mois 13 194 $ CAD/an 1 100 $ CAD/mois | Réparation complète et assurance |
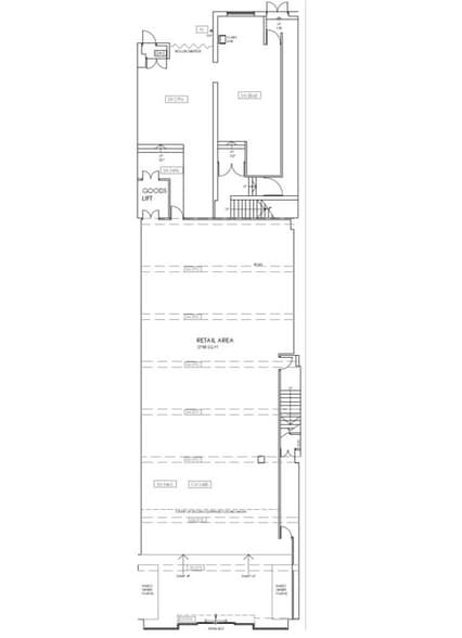
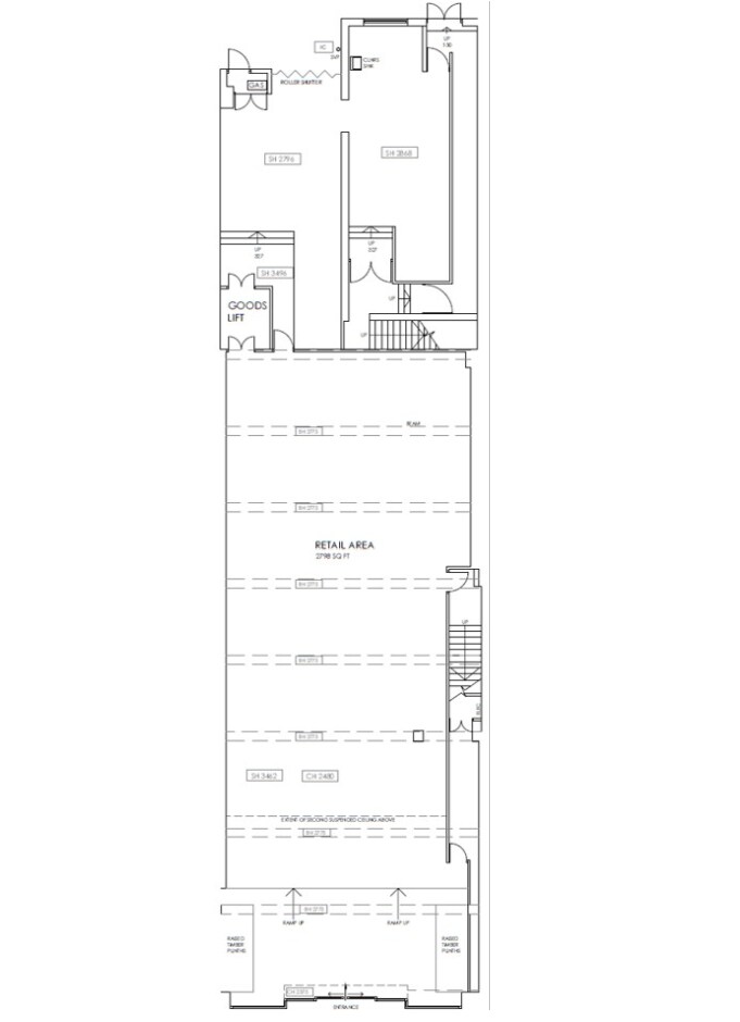
RDC
Located in Swansea’s prime retail thoroughfare at 238-239 Oxford Street. The premises is adjacent to Peacocks, opposite Bon Marche and BetFred and amongst such other multiples as Waterstones, Greggs, NatWest and Poundland.
- Classe d’utilisation : B1
- Entièrement construit comme Espace de commerce de détail standard
- Situé en ligne avec d’autres commerces de détail
- Peut être associé à un ou plusieurs espaces supplémentaires pour obtenir jusqu’à 11 545 pi² d’espace adjacent.
- Air central et chauffage
- Cuisine
- Système de sécurité
- Vidéosurveillance
- Plancher surélevé
- Entreposage sécurisé
- Éclairage encastré
- Stores automatiques
- Cour
- Excellent niveau d'exposition à la lumière naturelle
- Portes à volets roulants et hauts plafonds
- Niveau élevé de circulation piétonnière diurne
1er étage
Located in Swansea’s prime retail thoroughfare at 238-239 Oxford Street. The premises is adjacent to Peacocks, opposite Bon Marche and BetFred and amongst such other multiples as Waterstones, Greggs, NatWest and Poundland.
- Classe d’utilisation : B1
- Entièrement construit comme Espace de commerce de détail standard
- Peut être associé à un ou plusieurs espaces supplémentaires pour obtenir jusqu’à 11 545 pi² d’espace adjacent.
- Air central et chauffage
- Cuisine
- Système de sécurité
- Vidéosurveillance
- Plancher surélevé
- Entreposage sécurisé
- Éclairage encastré
- Stores automatiques
- Cour
- Excellent niveau d'exposition à la lumière naturelle
- Portes à volets roulants et hauts plafonds
- Niveau élevé de circulation piétonnière diurne
2e étage
Located in Swansea’s prime retail thoroughfare at 238-239 Oxford Street. The premises is adjacent to Peacocks, opposite Bon Marche and BetFred and amongst such other multiples as Waterstones, Greggs, NatWest and Poundland.
- Classe d’utilisation : B1
- Entièrement construit comme Espace de commerce de détail standard
- Peut être associé à un ou plusieurs espaces supplémentaires pour obtenir jusqu’à 11 545 pi² d’espace adjacent.
- Air central et chauffage
- Cuisine
- Système de sécurité
- Vidéosurveillance
- Plancher surélevé
- Entreposage sécurisé
- Éclairage encastré
- Stores automatiques
- Cour
- Excellent niveau d'exposition à la lumière naturelle
- Portes à volets roulants et hauts plafonds
- Niveau élevé de circulation piétonnière diurne
3e étage
Located in Swansea’s prime retail thoroughfare at 238-239 Oxford Street. The premises is adjacent to Peacocks, opposite Bon Marche and BetFred and amongst such other multiples as Waterstones, Greggs, NatWest and Poundland.
- Classe d’utilisation : B1
- Entièrement construit comme Espace de commerce de détail standard
- Peut être associé à un ou plusieurs espaces supplémentaires pour obtenir jusqu’à 11 545 pi² d’espace adjacent.
- Air central et chauffage
- Cuisine
- Système de sécurité
- Vidéosurveillance
- Plancher surélevé
- Entreposage sécurisé
- Éclairage encastré
- Stores automatiques
- Cour
- Excellent niveau d'exposition à la lumière naturelle
- Portes à volets roulants et hauts plafonds
- Niveau élevé de circulation piétonnière diurne
Types de services
Le type de service et le montant du loyer que le locataire (preneur) est tenu de payer au propriétaire (bailleur) sur la durée du bail sont négociés avant la signature du bail par les deux parties. Le type de service varie selon les services fournis. Contactez le courtier inscripteur pour tout connaître sur les frais connexes et additionnels associés à chaque type de service.
1. Réparations et assurances complètes: Toutes les obligations de réparer et d’assurer la propriété (ou de sa part de la propriété) à l’interne comme à l’externe.
2. Réparations internes seulement: Le locataire est responsable des réparations internes seulement. Le propriétaire est responsable des réparations structurelles et externes.
3. Réparations et assurances internes: Le locataire est responsable des réparations internes et des assurances pour les parties internes de la propriété seulement. Le propriétaire est responsable des réparations structurelles et externes.
4. Négociable ou à déterminer: Cette option est utilisée lorsque le contact de location ne fournit pas le type de service.
Faits sur la propriété
| Superficie totale disponible | 11 545 pi² | Superficie commerciale brute | 12 477 pi² |
| Type de propriété | Commerce de détail | Année de construction | 1969 |
| Sous-type de propriété | Bien à usage mixte |
| Superficie totale disponible | 11 545 pi² |
| Type de propriété | Commerce de détail |
| Sous-type de propriété | Bien à usage mixte |
| Superficie commerciale brute | 12 477 pi² |
| Année de construction | 1969 |
À propos de la propriété
La propriété comprend un bâtiment de construction à ossature de béton armé, réparti sur quatre étages et offrant des locaux de vente au détail avec espace auxiliaire partout. La propriété est située dans la section non piétonne de la rue Oxford, près de la jonction avec la rue Plymouth. Swansea Railway Station se trouve à proximité.
- Accès 24 heures
- Restaurant
- Système de sécurité
- Éclairage accentué
- Stores automatiques
- Espace d'entreposage
- Éclairage encastré
- Climatisation
Principaux détaillants à proximité
Présenté par
238-239 Oxford St
Hmm, il semble y avoir eu une erreur lors de l’envoi de votre message. Veuillez réessayer.
Merci! Votre message a été envoyé.



