Votre courriel a été envoyé.
23801 Southwest St - Harvest Heights Condos - 11 Units Available Unité de condo • Flex • 1 500 pi² • À vendre 527 338 $ CAD • Waterloo, NE 68069



Certaines informations ont été traduites automatiquement.
Faits saillants de l'investissement
- Equity Opportunity
- Turn-Key
- Flexibility
Résumé de l'annonce
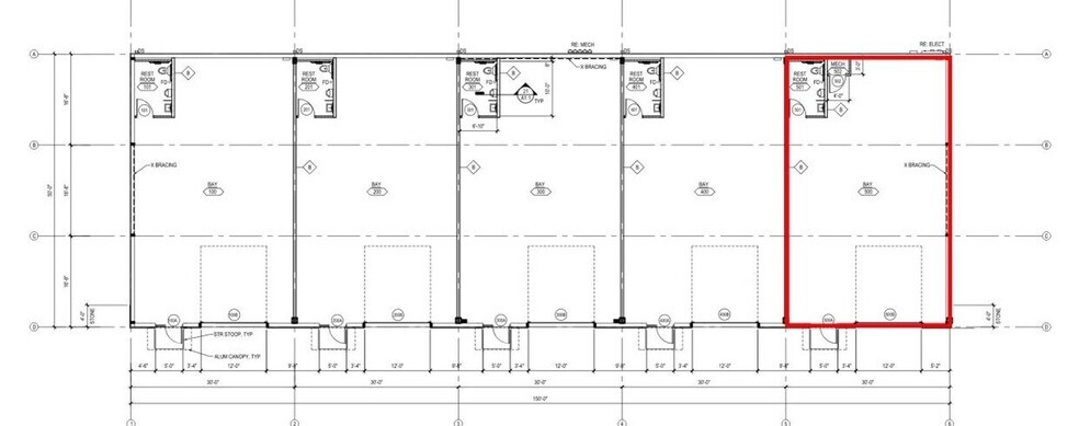
Property Highlights: - Modern Design: Sleek new construction with abundant natural light and high-end finishes. - Versatile Use: Ideal for small business operations, a high-end "Man Cave," or a secure climate-controlled environment for car collectors. - High-Volume Traffic: Excellent visibility with a daily traffic count of 24,000 vehicles and easy access from Highway 275. - Low Maintenance: The Association handles all snow removal and grounds maintenance, allowing you to focus on your business or hobbies. Unit Features: - Dimensions: 30’ x 50’ (1,500 SF) with soaring high ceilings. - Accessibility: 12' x 14' glass garage doors equipped with automatic openers. - Efficiency: Energy-efficient construction featuring full heating and cooling. - Utilities: 200 Amp electrical panel and 6 high-bay LED lights. - Convenience: Includes a private, ADA-compliant restroom. About the Developer: Built by Red Dog We are more than developers; we are entrepreneurs building for entrepreneurs. Our mission is to create affordable, flexible spaces where communities can thrive together. When you buy a Built by Red Dog property, you are investing in a space designed for durability, form, and function. Schedule a Tour: Come visit our fully finished models today and see why Harvest Heights is the right move for your future!
1 Unité disponible
Unité 1
| Taille de l’unité | 1 500 pi² | Utilisation du condo | Flex |
| Prix | 527 338 $ CAD | Type de vente | Investissement ou propriétaire utilisateur |
| Prix par pi² | 351,56 $ CAD |
| Taille de l’unité | 1 500 pi² |
| Prix | 527 338 $ CAD |
| Prix par pi² | 351,56 $ CAD |
| Utilisation du condo | Flex |
| Type de vente | Investissement ou propriétaire utilisateur |
Description
1,500 SF Modern Commercial Flex Condo | Harvest Heights
Stop Renting and Start Building Equity Today!
Position your business or personal collection in a premier, new-construction flex space designed for the modern entrepreneur. Located at Harvest Heights, this 30’ x 50’ unit offers the perfect balance of professional aesthetics and industrial functionality.
Notes sur la vente
- Equity Opportunity: Rare chance to own commercial real estate instead of leasing.
- Prime Visibility: Located on a high-traffic corridor with 24,000 VPD.
- Flexibility: Zoned for multiple uses including retail, office, warehouse, or personal storage.
- Turn-Key: New construction with ADA restroom and HVAC already in place.
3
4
11
12
8
10
Faits sur la propriété
| Taille totale du bâtiment | 1 500 pi² | Superficie de plancher typique | 1 500 pi² |
| Type de propriété | Année de construction | 2026 | |
| Classe d’immeuble | B | Taille du lot | 0,67 AC |
| Planchers | 1 | ||
| Zonage | AG | ||
| Taille totale du bâtiment | 1 500 pi² |
| Type de propriété | |
| Classe d’immeuble | B |
| Planchers | 1 |
| Superficie de plancher typique | 1 500 pi² |
| Année de construction | 2026 |
| Taille du lot | 0,67 AC |
| Zonage | AG |
Commodités
- Accès 24 heures
- Puits de lumière
- Accessible aux fauteuils roulants
- Espace d'entreposage
- Climatisation
Services publics
- Éclairage - Fluorescent
- Gaz - Naturel
- Eau - Ville
- Égout - Ville
- Chauffage - Gaz
Présenté par
23801 Southwest St - Harvest Heights Condos - 11 Units Available
Hmm, il semble y avoir eu une erreur lors de l’envoi de votre message. Veuillez réessayer.
Merci! Votre message a été envoyé.

