Votre courriel a été envoyé.
Certaines informations ont été traduites automatiquement.
Faits saillants
- Nouvelle construction - Comté de Wil non incorporé
Caractéristiques
Tous les espaces disponibles(2)
Afficher les taux de location en
- Espace
- Taille
- Terme
- Taux de location
- Utilisation de l’espace
- État
- Disponible
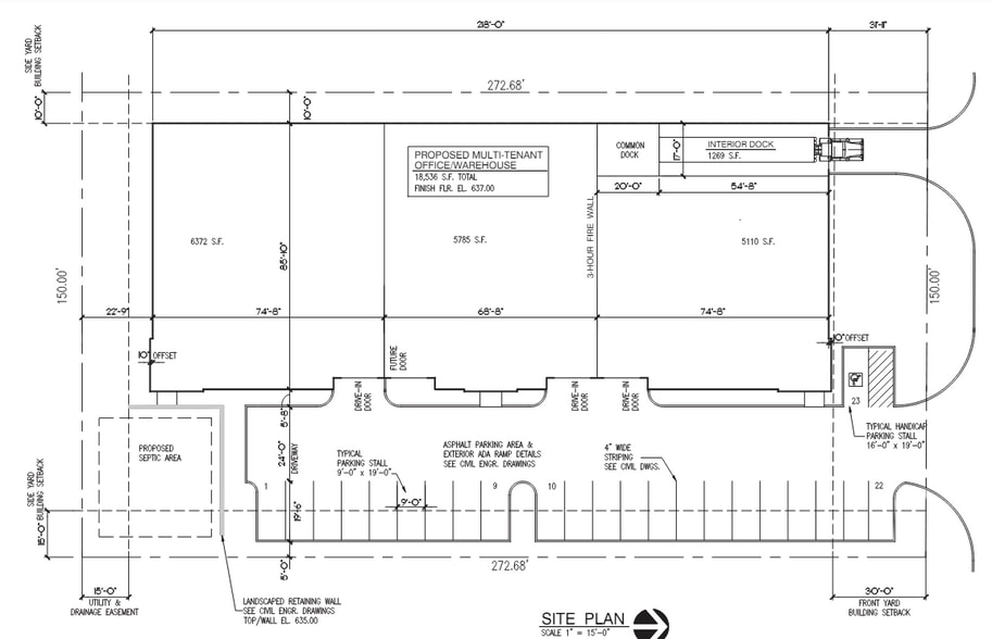
+ Total Available: Unit B: 6,210-13,050 SF + Office: 800 SF Mezzanine Storage Above Office NOT Included in SF + Clear Height: 21’ + Loading: 2 Drive-In Doors (12’x14’), 1 interior Dock with Leveler (common if multi-tenant) + Parking: 23 Vehicles + Zoning: Manufacturing
- Le taux inscrit peut ne pas comprendre certains services publics, les services de bâtiment et les dépenses immobilières.
- 2 accès plain-pied
- Peut être associé à un ou plusieurs espaces supplémentaires pour obtenir jusqu’à 13 050 pi² d’espace adjacent.
- Comprend 800 pi² d’espace de bureau dédié
- Espace en excellent état
+ Total Available: Unit C: 6,840-13,050 SF + Office: 800 SF Mezzanine Storage Above Office NOT Included in SF + Clear Height: 21’ + Loading: 2 Drive-In Doors (12’x14’), 1 interior Dock with Leveler (common if multi-tenant) + Parking: 23 Vehicles + Zoning: Manufacturing
- Le taux inscrit peut ne pas comprendre certains services publics, les services de bâtiment et les dépenses immobilières.
- Peut être associé à un ou plusieurs espaces supplémentaires pour obtenir jusqu’à 13 050 pi² d’espace adjacent.
- 2 accès plain-pied
| Espace | Taille | Terme | Taux de location | Utilisation de l’espace | État | Disponible |
| 1er étage - B | 6 210 pi² | 5-10 ans | 21,53 $ CAD/pi²/an 1,79 $ CAD/pi²/mois 133 708 $ CAD/an 11 142 $ CAD/mois | Industriel | selon spécifications | Maintenant |
| 1er étage - C | 6 840 pi² | Négociable | 21,53 $ CAD/pi²/an 1,79 $ CAD/pi²/mois 147 272 $ CAD/an 12 273 $ CAD/mois | Industriel | - | Maintenant |
1er étage - B
| Taille |
| 6 210 pi² |
| Terme |
| 5-10 ans |
| Taux de location |
| 21,53 $ CAD/pi²/an 1,79 $ CAD/pi²/mois 133 708 $ CAD/an 11 142 $ CAD/mois |
| Utilisation de l’espace |
| Industriel |
| État |
| selon spécifications |
| Disponible |
| Maintenant |
1er étage - C
| Taille |
| 6 840 pi² |
| Terme |
| Négociable |
| Taux de location |
| 21,53 $ CAD/pi²/an 1,79 $ CAD/pi²/mois 147 272 $ CAD/an 12 273 $ CAD/mois |
| Utilisation de l’espace |
| Industriel |
| État |
| - |
| Disponible |
| Maintenant |
1er étage - B
| Taille | 6 210 pi² |
| Terme | 5-10 ans |
| Taux de location | 21,53 $ CAD/pi²/an |
| Utilisation de l’espace | Industriel |
| État | selon spécifications |
| Disponible | Maintenant |
+ Total Available: Unit B: 6,210-13,050 SF + Office: 800 SF Mezzanine Storage Above Office NOT Included in SF + Clear Height: 21’ + Loading: 2 Drive-In Doors (12’x14’), 1 interior Dock with Leveler (common if multi-tenant) + Parking: 23 Vehicles + Zoning: Manufacturing
- Le taux inscrit peut ne pas comprendre certains services publics, les services de bâtiment et les dépenses immobilières.
- Comprend 800 pi² d’espace de bureau dédié
- 2 accès plain-pied
- Espace en excellent état
- Peut être associé à un ou plusieurs espaces supplémentaires pour obtenir jusqu’à 13 050 pi² d’espace adjacent.
1er étage - C
| Taille | 6 840 pi² |
| Terme | Négociable |
| Taux de location | 21,53 $ CAD/pi²/an |
| Utilisation de l’espace | Industriel |
| État | - |
| Disponible | Maintenant |
+ Total Available: Unit C: 6,840-13,050 SF + Office: 800 SF Mezzanine Storage Above Office NOT Included in SF + Clear Height: 21’ + Loading: 2 Drive-In Doors (12’x14’), 1 interior Dock with Leveler (common if multi-tenant) + Parking: 23 Vehicles + Zoning: Manufacturing
- Le taux inscrit peut ne pas comprendre certains services publics, les services de bâtiment et les dépenses immobilières.
- 2 accès plain-pied
- Peut être associé à un ou plusieurs espaces supplémentaires pour obtenir jusqu’à 13 050 pi² d’espace adjacent.
Aperçu de la propriété
La promenade industrielle de 23838 W offre un espace total considérable allant de 5 110 à 18 536 pieds carrés, adaptable à vos besoins. L'espace de bureau est personnalisable en fonction de vos besoins spécifiques, offrant une solution flexible pour vos opérations commerciales. La propriété dispose d'une hauteur dégagée impressionnante de 21 pieds, assurant un espace vertical suffisant pour vos opérations. Pour le chargement et le déchargement, vous bénéficierez de trois portes d'entrée (12 pi x 14 pi) et d'un quai intérieur avec un niveleur, ce qui est courant si vous êtes multilocataire. Cette configuration facilite la logistique efficace et simplifie les opérations. Le stationnement est abondant et peut accueillir jusqu'à 23 véhicules, ce qui permet d'accueillir confortablement les employés et les clients. Zonée pour la fabrication, cette propriété convient parfaitement à une gamme d'utilisations industrielles.
Faits sur l’installation distribution
Présenté par
23838 W Industrial Dr S
Hmm, il semble y avoir eu une erreur lors de l’envoi de votre message. Veuillez réessayer.
Merci! Votre message a été envoyé.


