Se Connecter/S’inscrire
Votre courriel a été envoyé.
24 Fore St 511 pi² Commerce de détail Immeuble Camelford PL32 9PG 108 431 $ CAD (212,19 $ CAD/pi²)



Certaines informations ont été traduites automatiquement.
Faits saillants de l'investissement
- Town centre location
- Positioned on southwest arterial road A39
- Neighboured by amenities
Résumé de l'annonce
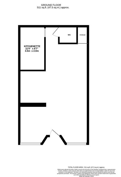
The unit is a double front space with separate kitchen & WC.
This unit would make and ideal outlet for an established business looking to expand into Camelford or a new enterprise. It also lends itself for conversion to a residential property, subject to the necessary permissions.
The property is available Freehold with vacant possession on completion. The first floor residential property was sold on a 999 year lease commencing 1980.
This unit would make and ideal outlet for an established business looking to expand into Camelford or a new enterprise. It also lends itself for conversion to a residential property, subject to the necessary permissions.
The property is available Freehold with vacant possession on completion. The first floor residential property was sold on a 999 year lease commencing 1980.
Faits sur la propriété
Type de vente
Investissement ou propriétaire utilisateur
Type de propriété
Commerce de détail
Ancienneté
Pleine propriété
Sous-type de propriété
Commerce pied immeuble
Taille du bâtiment
511 pi²
Classe d’immeuble
C
Année de construction
1900
Prix
108 431 $ CAD
Prix par pi²
212,19 $ CAD
Location
Unique
Hauteur du bâtiment
3 étages
Coefficient d’occupation des sols de l’immeuble
0,68
Taille du lot
0,02 AC
Commodités
- Affichage
1 1
Principaux détaillants à proximité
1 de 10
Vidéos
Visite extérieure 3D Matterport
Visite 3D Matterport
Photos
Vue depuis la rue
Rue
Carte
1 de 1
Présenté par
24 Fore St
Vous êtes déjà membre? Connectez-vous
Hmm, il semble y avoir eu une erreur lors de l’envoi de votre message. Veuillez réessayer.
Merci! Votre message a été envoyé.
