Votre courriel a été envoyé.
Certaines informations ont été traduites automatiquement.
Faits saillants
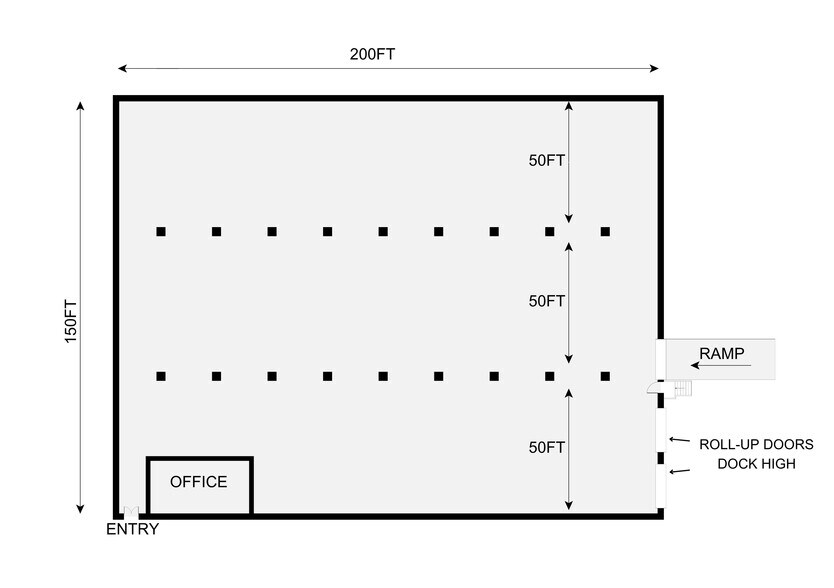
- 2 dock-high doors
- Approx. 30 parking spaces
- Ideal for distribution, logistics, or manufacturing
- 1 loading dock with ramp
- IND-2 / IND-3 zoning
Caractéristiques
Tous les espaces disponibles(1)
Afficher les taux de location en
- Espace
- Taille
- Terme
- Taux de location
- Utilisation de l’espace
- Aménagement
- Disponible
- Le taux de location n’inclut pas certaines dépenses immobilières
- 3 quais de chargement
| Espace | Taille | Terme | Taux de location | Utilisation de l’espace | Aménagement | Disponible |
| 1er étage | 10 000 à 30 000 pi² | 5 ans | 16,44 $ CAD/pi²/an 1,37 $ CAD/pi²/mois 493 200 $ CAD/an 41 100 $ CAD/mois | Industriel | - | Maintenant |
1er étage
| Taille |
| 10 000 à 30 000 pi² |
| Terme |
| 5 ans |
| Taux de location |
| 16,44 $ CAD/pi²/an 1,37 $ CAD/pi²/mois 493 200 $ CAD/an 41 100 $ CAD/mois |
| Utilisation de l’espace |
| Industriel |
| Aménagement |
| - |
| Disponible |
| Maintenant |
1er étage
| Taille | 10 000 à 30 000 pi² |
| Terme | 5 ans |
| Taux de location | 16,44 $ CAD/pi²/an |
| Utilisation de l’espace | Industriel |
| Aménagement | - |
| Disponible | Maintenant |
- Le taux de location n’inclut pas certaines dépenses immobilières
- 3 quais de chargement
Aperçu de la propriété
Nous offrons maintenant jusqu'à 30 000 pi² d'espace d'entrepôt industriel contigu à louer, divisible à partir d'un minimum de 10 000 pi². L'installation dispose de plafonds dégagés de 17 pieds, d'une alimentation électrique importante (deux services : 1200 AMP / 277 / 480V triphasé et 80), ainsi que de multiples options de chargement à quai pour répondre à divers besoins opérationnels. Les configurations de chargement incluent deux portes à quai de 10' x 12' et une porte supplémentaire de 9' x 9' avec rampe située dans la partie centrale du bâtiment. L'espace est idéalement situé dans le corridor industriel d'Orlando, près du district de Taft. Situé juste à côté de Exchange Drive et Sand Lake Road, le site offre une excellente connectivité aux principales autoroutes, corridors de transport et pôles industriels environnants, ce qui en fait un choix idéal pour les utilisateurs axés sur la logistique ou les entreprises nécessitant une infrastructure flexible pour le chargement et l'entreposage. L'entrepôt dispose d'un accès à environ 40+ places de stationnement, avec un usage privé pour l'allée sud du bâtiment (voir les images). Il s'agit d'une excellente opportunité de location pour les utilisateurs à la recherche d'un espace bien situé, avec une disposition fonctionnelle et un accès immédiat à l'infrastructure commerciale de la Floride centrale. Contactez l'agent inscripteur pour plus de détails ou pour planifier une visite.
Faits sur l’installation entrepôt
Présenté par
2441 Viscount Row
Hmm, il semble y avoir eu une erreur lors de l’envoi de votre message. Veuillez réessayer.
Merci! Votre message a été envoyé.





