Votre courriel a été envoyé.
245 Hembree Park Dr
Roswell, GA 30076
Hembree Park · Flex Propriété À louer
·
11 232 pi²


Certaines informations ont été traduites automatiquement.
FAITS SAILLANTS
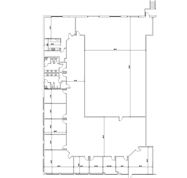
- Three dock-high doors support efficient loading and distribution.
- Balanced 60% office and 40% warehouse layout.
- Surrounded by retail, residential, and business amenities.
- 24-foot clear height ideal for racking and vertical storage.
- Located near GA-400 and North Point Parkway for regional access.
- Professionally managed by Cushman & Wakefield’s Atlanta team.
CARACTÉRISTIQUES
APERÇU DE LA PROPRIÉTÉ
Située juste à côté de Hembree Park Drive, la propriété bénéficie d'une proximité avec des axes principaux tels que GA-400, Mansell Road et North Point Parkway, offrant un accès fluide à Alpharetta, Sandy Springs et à l'ensemble de la région métropolitaine d'Atlanta. Les environs sont un mélange dynamique de parcs d'affaires, de communautés résidentielles et de centres commerciaux, offrant une grande commodité tant pour les employés que pour les clients. Construit en 1999, le bâtiment conserve une esthétique industrielle moderne et une disposition fonctionnelle. La configuration de la suite permet une variété d'utilisations, allant de la fabrication légère à la distribution ou aux opérations hybrides de bureau. Avec l'équipe expérimentée de Cushman & Wakefield—Andrew Thurman, Tara Healy et Pat Murphy—en charge des efforts de location, les locataires peuvent s'attendre à un service réactif et à des conseils stratégiques tout au long du processus.
