Votre courriel a été envoyé.
Main Ridge Shopping Center 2450-2460 W Main St 1 200–7 650 pi² d'espace disponible • Norristown, PA 19403



Certaines informations ont été traduites automatiquement.
FAITS SAILLANTS
- Bonne combinaison de locataires de commerces de détail, de restaurants et de bureaux
- Excellente visibilité et accès sur la rue Main
DISPONIBILITÉ DES ESPACES (3)
Afficher les taux de location en
- ESPACE
- TAILLE
- PLAFOND
- TERME
- TAUX DE LOCATION
- TYPE DE LOYER
| Espace | Taille | Plafond | Terme | Taux de location | Type de loyer | |
| 1er étage, ste A | 1 200 pi² | - | 3-5 ans | 34,49 $ CAD/pi²/an 2,87 $ CAD/pi²/mois 41 382 $ CAD/an 3 449 $ CAD/mois | Plus les services | |
| 1er étage, ste E & F | 1 450 pi² | - | 3-5 ans | 27,59 $ CAD/pi²/an 2,30 $ CAD/pi²/mois 40 003 $ CAD/an 3 334 $ CAD/mois | Plus les services | |
| 2e étage | 5 000 pi² | 9’ | 3-5 ans | 17,93 $ CAD/pi²/an 1,49 $ CAD/pi²/mois 89 661 $ CAD/an 7 472 $ CAD/mois | Plus les services |
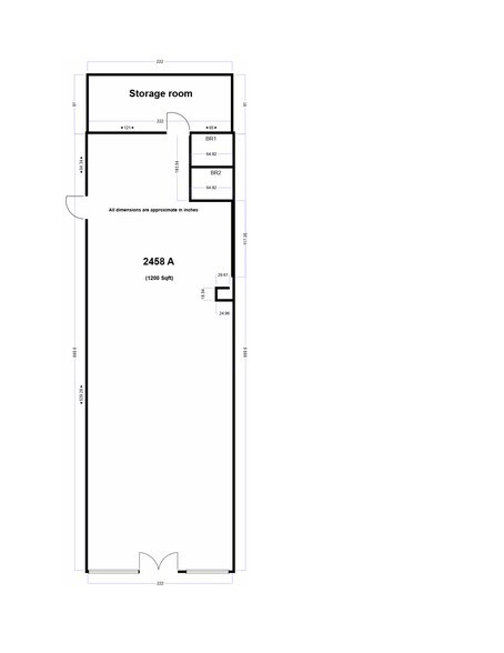
2450 W Main St - 1er étage - ste A
1,200 square feet of retail/commercial space $25.00 per sq. ft. / $2,500.00 per month plus Utilities and Janitorial NO CAM! (Common Area Maintenance Fees) Large open area Plenty of off-street parking Pylon signage on heavily travelled West Main Street Newly renovated space
- Taux de location inscrit plus part proportionnelle des services publics
- Entièrement construit comme Espace de commerce de détail standard
- Situé en ligne avec d’autres commerces de détail
- Espace en excellent état
9 Lawn Ave - 1er étage - ste E & F
5,000 square feet of just renovated 2nd Floor Space $13.00 per sq. ft. / $5,416.00 per month plus Utilities and Janitorial First Floor – Suite E & F 1,450 square feet $20.00 per sq. ft. / $2,416 per month plus Utilities and Janitorial NO CAM! (Common Area Maintenance Fees) 2nd fl. Features Large open area, 3 private offices, separate men’s & women's bathrooms & breakroom Access the space by the private elevator that opens directly into the office suite Signage available on Lawn Avenue & Main Street Plenty of off-street parking, Brand new heating ventilating and central air conditioning system Available for Lease Jefferson Professional Building 9 Lawn Avenue West Norriton Twp., Jeffersonville, PA 19403
- Taux de location inscrit plus part proportionnelle des services publics
- Disposition du plan d’étage ouverte en général
- Convient pour 4 à 12 personnes
9 Lawn Ave - 2e étage
5,000 square feet of just renovated 2nd Floor Space $15.00 per sq. ft. / $6,250.00 per month plus Utilities and Janitorial Second Floor Private Elevator Served Commercial / Professional / Medical Space First Floor – Suite B 800 square feet $18.00 per sq. ft. / $1,200 per month plus Utilities and Janitorial NO CAM! (Common Area Maintenance Fees) Large open area, 3 private offices, separate men’s & women's bathrooms & breakroom Access the space by the private elevator that opens directly into the office suite Signage available on Lawn Avenue & Main Street Plenty of off-street parking, Brand new heating ventilating and central air conditioning system
- Taux de location inscrit plus part proportionnelle des services publics
- Entièrement construit comme Bureau standard
- Disposition du plan d’étage ouverte en général
- Convient pour 13 à 40 personnes
- 3 bureaux privés
- Plafonds finis: 9’
- Espace en excellent état
- Air central et chauffage
- Salle de bains privée
- Complètement tapissé
- Plafond suspendu
- Plan ouvert
- Large open floor plan
- Private elevator
- Two large bathrooms
Types de loyers
Le type et le montant du loyer que le locataire (preneur) est tenu de payer au propriétaire (bailleur) sur la durée du bail sont négociés avant la signature du bail par les deux parties. Le type de loyer varie selon les services fournis. Par exemple, le prix d’un loyer hypernet est habituellement inférieur à celui d’un bail à service complet puisque le locataire est tenu d’assumer des dépenses additionnelles par rapport au loyer de base. Contactez le courtier inscripteur pour tout connaître sur les frais connexes et additionnels associés à chaque type de loyer.
1. Service complet: Un taux de location qui comprend des services standards liés à l’immeuble fournis par le propriétaire dans le cadre d’une location annuelle de base.
2. Loyer supernet: Le locataire paie seulement deux des frais de l’immeuble. Le propriétaire et le locataire déterminent ces frais spécifiques avant la signature du bail.
3. Loyer hypernet: Un bail en vertu duquel le locataire est responsable de tous les frais liés à sa part proportionnelle d’occupation de l’immeuble.
4. Brut modifié: Le loyer brut modifié désigne un type général de taux de location dans lequel le locataire est habituellement responsable de sa part proportionnelle d’un ou de plusieurs frais. C’est le propriétaire qui paie les frais restants. Considérez les structures tarifaires courantes suivantes applicables aux loyers bruts modifiés: 4. Plus les services: Un type de bail brut modifié suivant lequel le locataire est responsable de sa part proportionnelle des coûts des services publics, en plus du loyer. 4. Plus le nettoyage: Un type de bail brut modifié suivant lequel le locataire est responsable de sa part proportionnelle des coûts de nettoyage, en plus du loyer. 4. Plus l'électricité: Un type de bail brut modifié suivant lequel le locataire est responsable de sa part proportionnelle des coûts d’électricité, en plus du loyer. 4. Plus l’électricité et le nettoyage: Un type de bail brut modifié dans lequel le locataire est responsable de sa part proportionnelle des coûts d’électricité et de nettoyage, en plus du loyer. 4. Plus les services publics et le nettoyage: Un type de bail brut modifié dans lequel le locataire est responsable de sa part proportionnelle des coûts des services publics et de nettoyage, en plus du loyer. 4. Bail industriel brut: Un type de bail brut modifié dans lequel le locataire paie un ou plusieurs des frais, en plus du loyer. Le propriétaire et le locataire déterminent ces frais spécifiques avant la signature du bail.
5. L’électricité est à la charge du locataire: Le propriétaire paie pour tous les services et le locataire est responsable de sa propre utilisation de l’éclairage et des prises électriques dans l’espace qu’il occupe.
6. Négociable ou sur demande: Cette option est utilisée lorsque le contact de location ne précise pas le type de loyer ou de service.
7. À déterminer: À déterminer ; utilisé pour les immeubles dont le type de services ou de loyer n’est pas connu, souvent quand l’immeuble n’est pas encore construit.
SÉLECTIONNER DES LOCATAIRES À MAIN RIDGE SHOPPING CENTER
- LOCATAIRE
- DESCRIPTION
- EMPLACEMENTS US
- PORTÉE
- AAA Trucking
- Services
- 1
- -
- Arete Athletics
- Services
- -
- -
- Empire Designz
- Détaillant
- -
- -
- Gangster Vegan
- Restaurant
- 1
- Local
- Motto Mortgage
- Société de financement
- 48
- National
- PTW Physical Therapy
- Soins de santé
- 449
- National
| LOCATAIRE | DESCRIPTION | EMPLACEMENTS US | PORTÉE |
| AAA Trucking | Services | 1 | - |
| Arete Athletics | Services | - | - |
| Empire Designz | Détaillant | - | - |
| Gangster Vegan | Restaurant | 1 | Local |
| Motto Mortgage | Société de financement | 48 | National |
| PTW Physical Therapy | Soins de santé | 449 | National |
FAITS SUR LA PROPRIÉTÉ
| Superficie totale disponible | 7 650 pi² | Façade | 219’ le Main St |
| Type de centre | Centre commercial à ciel ouvert | Superficie commerciale brute | 29 458 pi² |
| Stationnement | 180 places | Superficie totale du terrain | 7,57 AC |
| Magasins | 12 | Année de construction | 1974 |
| Propriétés du centre | 4 |
| Superficie totale disponible | 7 650 pi² |
| Type de centre | Centre commercial à ciel ouvert |
| Stationnement | 180 places |
| Magasins | 12 |
| Propriétés du centre | 4 |
| Façade | 219’ le Main St |
| Superficie commerciale brute | 29 458 pi² |
| Superficie totale du terrain | 7,57 AC |
| Année de construction | 1974 |
À PROPOS DE LA PROPRIÉTÉ
Le centre commercial Main Ridge et l'édifice professionnel Jefferson offrent un bon mélange de magasins de détail, de restaurants et de bureaux professionnels. Des places de stationnement dans la rue et hors rue sont disponibles. Idéalement situé sur la rue Main avec un accès et une visibilité accrus. 5 000 pieds carrés de l'espace au 2e étage qui vient d'être rénové 15,00$ par pi2/6 250,00$ par mois plus services publics et conciergerie Espace commercial, professionnel et médical desservi par ascenseur privé au deuxième étage PAS DE CAMÉRA ! (Frais d'entretien des aires communes) Grand espace ouvert, 3 bureaux privés, salles de bain séparées pour hommes et femmes et salle de réunion Accédez à l'espace par l'ascenseur privé qui s'ouvre directement sur la suite bureautique Signalisation disponible sur l'avenue Lawn et la rue Main Beaucoup de stationnement hors rue, tout nouveau système de chauffage, de ventilation et de climatisation central
- Enseigne sur pylône
- CVCA contrôlé par le locataire
PRINCIPAUX DÉTAILLANTS À PROXIMITÉ
Présenté par
Main Ridge Shopping Center | 2450-2460 W Main St
Hmm, il semble y avoir eu une erreur lors de l’envoi de votre message. Veuillez réessayer.
Merci! Votre message a été envoyé.








