Votre courriel a été envoyé.
Certaines informations ont été traduites automatiquement.
Faits saillants de l'investissement
- INDUSTRIAL LAND FOR SALE
- Excellent visibility
- Opportunity to acquire adjacent land parcel
Résumé de l'annonce
Faits sur la propriété
| Prix | 2 053 605 $ CAD | Sous-type de propriété | Terrain commercial |
| Type de vente | Investissement ou propriétaire utilisateur | Utilisation proposée | Industriel |
| Nombre de lots | 1 | Taille totale du lot | 1,11 AC |
| Type de propriété | Terrain | Zone de développement économique |
Oui
|
| Zonage | I-G - Industrielle générale | ||
| Prix | 2 053 605 $ CAD |
| Type de vente | Investissement ou propriétaire utilisateur |
| Nombre de lots | 1 |
| Type de propriété | Terrain |
| Sous-type de propriété | Terrain commercial |
| Utilisation proposée | Industriel |
| Taille totale du lot | 1,11 AC |
| Zone de développement économique |
Oui |
| Zonage | I-G - Industrielle générale |
1 Lot disponible
Lot
| Prix | 2 053 605 $ CAD | Taille du lot | 1,11 AC |
| Prix par AC | 1 850 094,67 $ CAD |
| Prix | 2 053 605 $ CAD |
| Prix par AC | 1 850 094,67 $ CAD |
| Taille du lot | 1,11 AC |
APNs: 193-410-050 & 100 LAND SIZE: 1.30± ACRES (57,063± SF) ZONED: I-G (General Industrial City of Stockton)
Description
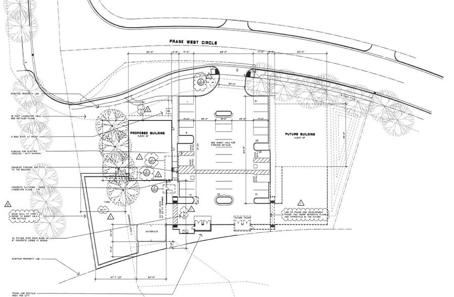
Accès immédiat à l'Interstate 5 via l'échangeur French Camp Road / Arch/Sperry • Possibilité d'acquérir un terrain adjacent par un propriétaire distinct (0,52± acres) 193-440-060 pour un total de 1,82± acres • Excellente visibilité le long de l'échangeur très fréquenté French Camp Road / Arch/Sperry • Situé dans une « Zone d'Opportunité » • Tous les services publics/municipaux disponibles sur le site • Voisins corporatifs incluent Honda, Teichert Construction, WL Butler, Applied Industrial Technologies • Situé dans le parc d'affaires Grupe • Comprend un plan de site provisoirement approuvé pour jusqu'à 8 000± pieds carrés de bâtiments
Impôts fonciers
| Numéro de lot | 193-410-05 | Évaluation des bâtiments | 0 $ CAD |
| Évaluation du terrain | 555 608 $ CAD | Évaluation totale | 555 608 $ CAD |
Impôts fonciers
Présenté par
248 Frank West Cir
Hmm, il semble y avoir eu une erreur lors de l’envoi de votre message. Veuillez réessayer.
Merci! Votre message a été envoyé.



