Votre courriel a été envoyé.
Certaines informations ont été traduites automatiquement.
Faits saillants du parc
- Cedarcrest Point offre un mélange de condos de bureaux et d'espaces de vente au détail
- Beaucoup de places de stationnement
- Provides sufficient parking space for tenants and visitors.
- Adjacent au magasinage à pied des restaurants, café, conditionnement physique
- Situé entre les collectivités primées Bentwater et Seven Hills
Faits sur le parc
| Superficie totale disponible | 5 220 pi² | Type de parc | Parc de bureaux |
| Superficie totale disponible | 5 220 pi² |
| Type de parc | Parc de bureaux |
Tous les espaces disponibles(5)
Afficher les taux de location en
- Espace
- Taille
- Terme
- Taux de location
- Utilisation de l’espace
- État
- Disponible
$18 + CAM
- Le taux inscrit peut ne pas comprendre certains services publics, les services de bâtiment et les dépenses immobilières.
- Convient pour 4 à 11 personnes
$18 + CAM
- Le taux inscrit peut ne pas comprendre certains services publics, les services de bâtiment et les dépenses immobilières.
- Convient pour 3 à 8 personnes
$18 + CAM
- Le taux inscrit peut ne pas comprendre certains services publics, les services de bâtiment et les dépenses immobilières.
- Convient pour 3 à 8 personnes
$18 + CAM
- Le taux inscrit peut ne pas comprendre certains services publics, les services de bâtiment et les dépenses immobilières.
- Convient pour 4 à 11 personnes
This property is currently vacant and no HVAC
- Le taux inscrit peut ne pas comprendre certains services publics, les services de bâtiment et les dépenses immobilières.
- Convient pour 3 à 8 personnes
| Espace | Taille | Terme | Taux de location | Utilisation de l’espace | État | Disponible |
| 1er étage, ste 721 | 1 260 pi² | Négociable | 24,68 $ CAD/pi²/an 2,06 $ CAD/pi²/mois 31 098 $ CAD/an 2 591 $ CAD/mois | Bureau | - | Maintenant |
| 1er étage, ste 912 | 900 pi² | Négociable | 24,68 $ CAD/pi²/an 2,06 $ CAD/pi²/mois 22 213 $ CAD/an 1 851 $ CAD/mois | Bureau | - | Maintenant |
| 1er étage, ste 922 | 900 pi² | Négociable | 24,68 $ CAD/pi²/an 2,06 $ CAD/pi²/mois 22 213 $ CAD/an 1 851 $ CAD/mois | Bureau | - | Maintenant |
| 2e étage, ste 121 | 1 260 pi² | Négociable | 24,68 $ CAD/pi²/an 2,06 $ CAD/pi²/mois 31 098 $ CAD/an 2 591 $ CAD/mois | Bureau | - | Maintenant |
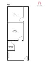
| 2e étage, ste 821 | 900 pi² | Négociable | 24,68 $ CAD/pi²/an 2,06 $ CAD/pi²/mois 22 213 $ CAD/an 1 851 $ CAD/mois | Bureau | - | Maintenant |
2487 Cedarcrest Rd - 1er étage - ste 721
2487 Cedarcrest Rd - 1er étage - ste 912
2487 Cedarcrest Rd - 1er étage - ste 922
2487 Cedarcrest Rd - 2e étage - ste 121
2487 Cedarcrest Rd - 2e étage - ste 821
2487 Cedarcrest Rd - 1er étage - ste 721
| Taille | 1 260 pi² |
| Terme | Négociable |
| Taux de location | 24,68 $ CAD/pi²/an |
| Utilisation de l’espace | Bureau |
| État | - |
| Disponible | Maintenant |
$18 + CAM
- Le taux inscrit peut ne pas comprendre certains services publics, les services de bâtiment et les dépenses immobilières.
- Convient pour 4 à 11 personnes
2487 Cedarcrest Rd - 1er étage - ste 912
| Taille | 900 pi² |
| Terme | Négociable |
| Taux de location | 24,68 $ CAD/pi²/an |
| Utilisation de l’espace | Bureau |
| État | - |
| Disponible | Maintenant |
$18 + CAM
- Le taux inscrit peut ne pas comprendre certains services publics, les services de bâtiment et les dépenses immobilières.
- Convient pour 3 à 8 personnes
2487 Cedarcrest Rd - 1er étage - ste 922
| Taille | 900 pi² |
| Terme | Négociable |
| Taux de location | 24,68 $ CAD/pi²/an |
| Utilisation de l’espace | Bureau |
| État | - |
| Disponible | Maintenant |
$18 + CAM
- Le taux inscrit peut ne pas comprendre certains services publics, les services de bâtiment et les dépenses immobilières.
- Convient pour 3 à 8 personnes
2487 Cedarcrest Rd - 2e étage - ste 121
| Taille | 1 260 pi² |
| Terme | Négociable |
| Taux de location | 24,68 $ CAD/pi²/an |
| Utilisation de l’espace | Bureau |
| État | - |
| Disponible | Maintenant |
$18 + CAM
- Le taux inscrit peut ne pas comprendre certains services publics, les services de bâtiment et les dépenses immobilières.
- Convient pour 4 à 11 personnes
2487 Cedarcrest Rd - 2e étage - ste 821
| Taille | 900 pi² |
| Terme | Négociable |
| Taux de location | 24,68 $ CAD/pi²/an |
| Utilisation de l’espace | Bureau |
| État | - |
| Disponible | Maintenant |
This property is currently vacant and no HVAC
- Le taux inscrit peut ne pas comprendre certains services publics, les services de bâtiment et les dépenses immobilières.
- Convient pour 3 à 8 personnes
Aperçu du parc
Magnifique bureau à louer dans le comté en pleine croissance d'Acworth & Paulding Espace de bureaux très recherché au large de Cedarcrest Rd. Les espaces comprennent 4 à 5 bureaux dans chaque unité avec une salle de bain. Brique à quatre côtés, intérieur spacieux Cedarcrest Point offre un mélange de condos à bureaux et d'espaces commerciaux À côté des commerces -- marchez jusqu'aux restaurants, café, conditionnement physique Beaucoup de places de stationnement
Présenté par
Cedarcrest Point Condominiums | Acworth, GA 30101
Hmm, il semble y avoir eu une erreur lors de l’envoi de votre message. Veuillez réessayer.
Merci! Votre message a été envoyé.





