Votre courriel a été envoyé.
Melville Corporate Plaza 25 Melville Park Rd 98 000 pi² 73% Loué 4-Étoile Bureau Immeuble Melville, NY 11747 15 083 626 $ CAD (153,91 $ CAD/pi²) 9,65% Taux de capitalisation



Certaines informations ont été traduites automatiquement.
Faits saillants de l'investissement
- ±98,000 SF Class A Office | ~89% Leased
- Efficient Floor Plates with Ample Parking (3.57/1,000 SF)
- Prime Melville Location with Direct Access to I-495 & Route 110
Résumé de l'annonce
The property offers stable in-place cash flow supported by a diverse tenant base and benefits from recent upgrades, including brand new bathrooms, that enhance the overall tenant experience. Featuring efficient two-story floor plates, 350 parking spaces, and immediate access to the LIE (I-495) and Northern State Parkway, the asset provides exceptional convenience for major corporate occupiers and regional commuters.
Positioned within one of Long Island’s most established office markets, 25 Melville Park Road presents a rare opportunity to acquire a stabilized, income-producing suburban office asset with long-term relevance and durable demand.
Faits sur la propriété
Commodités
- Accès 24 heures
- Atrium
- Installations de conférences
- Système de sécurité
- Affichage
- Réception
- Espace d'entreposage
- Climatisation
Disponibilité des espaces
- Espace
- Taille
- Utilisation de l’espace
- Aménagement
- Disponible
Les divisions comprennent un bureau de 2 000 pi² ou 6 763 pi². Division ou espace complet disponible.
Espace entièrement meublé et prêt à l'emploi!
Espace entièrement meublé et prêt à l'emploi!
Espace entièrement meublé et prêt à l'emploi!
Espace entièrement meublé et prêt à l'emploi!
Espace entièrement meublé et clé en main!
Espace entièrement meublé et prêt à l'emploi!
Espace entièrement meublé et clé en main!
Espace entièrement meublé et clé en main!
Espace entièrement meublé et prêt à l'emploi!
Espace entièrement meublé et prêt à l'emploi!
Espace entièrement meublé et prêt à l'emploi!
| Espace | Taille | Utilisation de l’espace | Aménagement | Disponible |
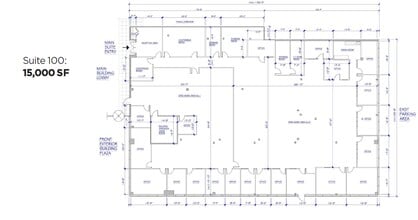
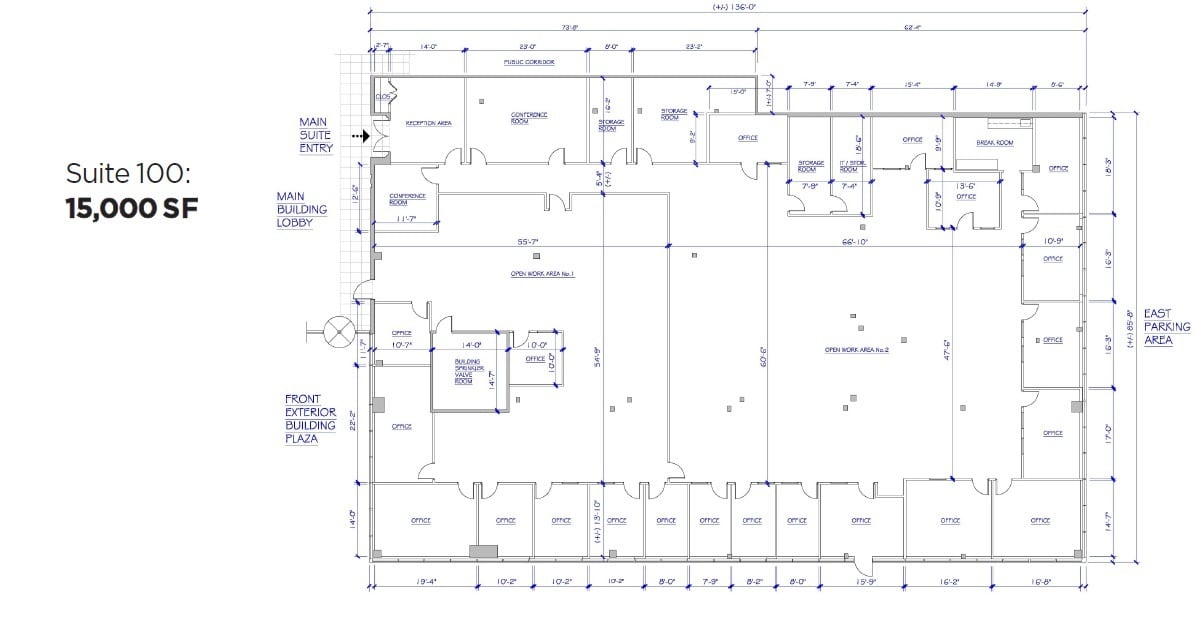
| 1er Ét.-ste 100 | 6 000 pi² | Bureau | construction complète | Maintenant |
| 1er Ét.-ste 105 | 8 228 pi² | Bureau | construction complète | Maintenant |
| 1er Ét.-ste 110 | 2 000 à 8 763 pi² | Bureau | construction complète | Maintenant |
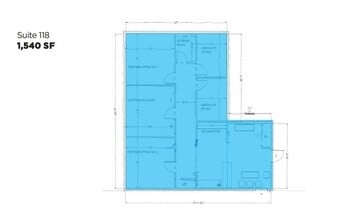
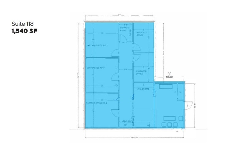
| 1er Ét.-ste 118 | 1 540 pi² | Bureau | construction partielle | Maintenant |
| 1er Ét.-ste 132 | 342 pi² | Bureau | construction complète | Maintenant |
| 1er Ét.-ste 152 | 130 pi² | Bureau | construction complète | Maintenant |
| 1er Ét.-ste 55 | 150 pi² | Bureau | construction complète | Maintenant |
| 1er Ét.-ste 56 | 132 pi² | Bureau | construction complète | Maintenant |
| 1er Ét.-ste 69 | 90 pi² | Bureau | construction complète | Maintenant |
| 1er Ét.-ste 70 | 150 pi² | Bureau | construction complète | Maintenant |
| 2e Ét.-ste 201 | 190 pi² | Bureau | construction complète | Maintenant |
| 2e Ét.-ste 205 | 136 pi² | Bureau | construction complète | Maintenant |
| 2e Ét.-ste 209 | 214 pi² | Bureau | construction complète | Maintenant |
| 2e Ét.-ste 218 | 129 pi² | Bureau | construction complète | Maintenant |
| 2e Ét.-ste 228 | 348 pi² | Bureau | construction complète | Maintenant |
1er Ét.-ste 100
| Taille |
| 6 000 pi² |
| Utilisation de l’espace |
| Bureau |
| Aménagement |
| construction complète |
| Disponible |
| Maintenant |
1er Ét.-ste 105
| Taille |
| 8 228 pi² |
| Utilisation de l’espace |
| Bureau |
| Aménagement |
| construction complète |
| Disponible |
| Maintenant |
1er Ét.-ste 110
| Taille |
| 2 000 à 8 763 pi² |
| Utilisation de l’espace |
| Bureau |
| Aménagement |
| construction complète |
| Disponible |
| Maintenant |
1er Ét.-ste 118
| Taille |
| 1 540 pi² |
| Utilisation de l’espace |
| Bureau |
| Aménagement |
| construction partielle |
| Disponible |
| Maintenant |
1er Ét.-ste 132
| Taille |
| 342 pi² |
| Utilisation de l’espace |
| Bureau |
| Aménagement |
| construction complète |
| Disponible |
| Maintenant |
1er Ét.-ste 152
| Taille |
| 130 pi² |
| Utilisation de l’espace |
| Bureau |
| Aménagement |
| construction complète |
| Disponible |
| Maintenant |
1er Ét.-ste 55
| Taille |
| 150 pi² |
| Utilisation de l’espace |
| Bureau |
| Aménagement |
| construction complète |
| Disponible |
| Maintenant |
1er Ét.-ste 56
| Taille |
| 132 pi² |
| Utilisation de l’espace |
| Bureau |
| Aménagement |
| construction complète |
| Disponible |
| Maintenant |
1er Ét.-ste 69
| Taille |
| 90 pi² |
| Utilisation de l’espace |
| Bureau |
| Aménagement |
| construction complète |
| Disponible |
| Maintenant |
1er Ét.-ste 70
| Taille |
| 150 pi² |
| Utilisation de l’espace |
| Bureau |
| Aménagement |
| construction complète |
| Disponible |
| Maintenant |
2e Ét.-ste 201
| Taille |
| 190 pi² |
| Utilisation de l’espace |
| Bureau |
| Aménagement |
| construction complète |
| Disponible |
| Maintenant |
2e Ét.-ste 205
| Taille |
| 136 pi² |
| Utilisation de l’espace |
| Bureau |
| Aménagement |
| construction complète |
| Disponible |
| Maintenant |
2e Ét.-ste 209
| Taille |
| 214 pi² |
| Utilisation de l’espace |
| Bureau |
| Aménagement |
| construction complète |
| Disponible |
| Maintenant |
2e Ét.-ste 218
| Taille |
| 129 pi² |
| Utilisation de l’espace |
| Bureau |
| Aménagement |
| construction complète |
| Disponible |
| Maintenant |
2e Ét.-ste 228
| Taille |
| 348 pi² |
| Utilisation de l’espace |
| Bureau |
| Aménagement |
| construction complète |
| Disponible |
| Maintenant |
1er Ét.-ste 100
| Taille | 6 000 pi² |
| Utilisation de l’espace | Bureau |
| Aménagement | construction complète |
| Disponible | Maintenant |
1er Ét.-ste 105
| Taille | 8 228 pi² |
| Utilisation de l’espace | Bureau |
| Aménagement | construction complète |
| Disponible | Maintenant |
1er Ét.-ste 110
| Taille | 2 000 à 8 763 pi² |
| Utilisation de l’espace | Bureau |
| Aménagement | construction complète |
| Disponible | Maintenant |
Les divisions comprennent un bureau de 2 000 pi² ou 6 763 pi². Division ou espace complet disponible.
1er Ét.-ste 118
| Taille | 1 540 pi² |
| Utilisation de l’espace | Bureau |
| Aménagement | construction partielle |
| Disponible | Maintenant |
1er Ét.-ste 132
| Taille | 342 pi² |
| Utilisation de l’espace | Bureau |
| Aménagement | construction complète |
| Disponible | Maintenant |
Espace entièrement meublé et prêt à l'emploi!
1er Ét.-ste 152
| Taille | 130 pi² |
| Utilisation de l’espace | Bureau |
| Aménagement | construction complète |
| Disponible | Maintenant |
Espace entièrement meublé et prêt à l'emploi!
1er Ét.-ste 55
| Taille | 150 pi² |
| Utilisation de l’espace | Bureau |
| Aménagement | construction complète |
| Disponible | Maintenant |
Espace entièrement meublé et prêt à l'emploi!
1er Ét.-ste 56
| Taille | 132 pi² |
| Utilisation de l’espace | Bureau |
| Aménagement | construction complète |
| Disponible | Maintenant |
Espace entièrement meublé et prêt à l'emploi!
1er Ét.-ste 69
| Taille | 90 pi² |
| Utilisation de l’espace | Bureau |
| Aménagement | construction complète |
| Disponible | Maintenant |
Espace entièrement meublé et clé en main!
1er Ét.-ste 70
| Taille | 150 pi² |
| Utilisation de l’espace | Bureau |
| Aménagement | construction complète |
| Disponible | Maintenant |
Espace entièrement meublé et prêt à l'emploi!
2e Ét.-ste 201
| Taille | 190 pi² |
| Utilisation de l’espace | Bureau |
| Aménagement | construction complète |
| Disponible | Maintenant |
Espace entièrement meublé et clé en main!
2e Ét.-ste 205
| Taille | 136 pi² |
| Utilisation de l’espace | Bureau |
| Aménagement | construction complète |
| Disponible | Maintenant |
Espace entièrement meublé et clé en main!
2e Ét.-ste 209
| Taille | 214 pi² |
| Utilisation de l’espace | Bureau |
| Aménagement | construction complète |
| Disponible | Maintenant |
Espace entièrement meublé et prêt à l'emploi!
2e Ét.-ste 218
| Taille | 129 pi² |
| Utilisation de l’espace | Bureau |
| Aménagement | construction complète |
| Disponible | Maintenant |
Espace entièrement meublé et prêt à l'emploi!
2e Ét.-ste 228
| Taille | 348 pi² |
| Utilisation de l’espace | Bureau |
| Aménagement | construction complète |
| Disponible | Maintenant |
Espace entièrement meublé et prêt à l'emploi!
Impôts fonciers
| Numéro de lot | 0400-268-00-01-00-004-000 | Évaluation des bâtiments | 26 724 $ CAD |
| Évaluation du terrain | 58 957 $ CAD | Évaluation totale | 85 681 $ CAD |
Impôts fonciers
Présenté par
Melville Corporate Plaza | 25 Melville Park Rd
Hmm, il semble y avoir eu une erreur lors de l’envoi de votre message. Veuillez réessayer.
Merci! Votre message a été envoyé.









