Votre courriel a été envoyé.
25 Washington St Espace de cotravail disponible • Somerville, MA 02143



Certaines informations ont été traduites automatiquement.
Tous les espaces disponibles(3)
Afficher les taux de location en
- Espace
- Nb. de personnes
- Taille
- Taux de location
- Utilisation de l’espace
3 Commercial Office Spaces for Rent: Full Unit 900 SF - $4,500 204 SF - $1200.00 217 SF - $1,500.00 220 SF – 1,500.00 Call today for a viewing! Office Manager, Axelle Dervisevic: (617) 733-9138 Office Spaces - Three fully renovated office spaces in a two-story building, located in a convenient, prime area near Route 93, 99, and minutes from Boston. - Close proximity to the orange and green line (7 minute walk), and several bus route in the area. - Can be rented individually or as an entire unit - Features include a shared conference room, kitchenette, and bathroom. - Rent includes all utilities: internet, heat, AC, electricity, and water. - Ideal for an architect, attorney, designer, or other office space users. Available Nov. 2025
-
Terme
-
- Espace disponible auprès du fournisseur d’espace de travail partagé
- 3 bureaux privés
- 1 salle de conférence
- Air central et chauffage
- Connectivité Wi-Fi
- Salle de bains privée
- Système de sécurité
- Plafond suspendu
- Lumière naturelle
- Éclairage d’urgence
- Bus Line
- Train Line
3 Commercial Office Spaces for Rent: Full Unit 900 SF - $4,500 204 SF - $1200.00 217 SF - $1,500.00 220 SF – 1,500.00 Call today for a viewing! Office Manager, Axelle Dervisevic: (617) 733-9138 Office Spaces - Three fully renovated office spaces in a two-story building, located in a convenient, prime area near Route 93, 99, and minutes from Boston. - Close proximity to the orange and green line (7 minute walk), and several bus route in the area. - Can be rented individually or as an entire unit - Features include a shared conference room, kitchenette, and bathroom. - Rent includes all utilities: internet, heat, AC, electricity, and water. - Ideal for an architect, attorney, designer, or other office space users. Available Nov. 2025
-
Terme
-
- Espace disponible auprès du fournisseur d’espace de travail partagé
- 3 bureaux privés
- 1 salle de conférence
- Air central et chauffage
- Connectivité Wi-Fi
- Salle de bains privée
- Système de sécurité
- Plafond suspendu
- Lumière naturelle
- Éclairage d’urgence
- Bus Line
- Train Line
3 Commercial Office Spaces for Rent: Full Unit 900 SF - $4,500 204 SF - $1200.00 217 SF - $1,500.00 220 SF – 1,500.00 Call today for a viewing! Office Manager, Axelle Dervisevic: (617) 733-9138 Office Spaces - Three fully renovated office spaces in a two-story building, located in a convenient, prime area near Route 93, 99, and minutes from Boston. - Close proximity to the orange and green line (7 minute walk), and several bus route in the area. - Can be rented individually or as an entire unit - Features include a shared conference room, kitchenette, and bathroom. - Rent includes all utilities: internet, heat, AC, electricity, and water. - Ideal for an architect, attorney, designer, or other office space users. Available Nov. 2025
-
Terme
-
- Espace disponible auprès du fournisseur d’espace de travail partagé
- 3 bureaux privés
- 1 salle de conférence
- Air central et chauffage
- Connectivité Wi-Fi
- Salle de bains privée
- Système de sécurité
- Plafond suspendu
- Lumière naturelle
- Éclairage d’urgence
- Bus Line
- Train Line
| Espace | Nb. de personnes | Taille | Taux de location | Utilisation de l’espace |
| 2e étage, ste 1 | 1 - 2 | 220 pi² | 82,06 $ CAD/pi²/an 6,84 $ CAD/pi²/mois 18 054 $ CAD/an 1 504 $ CAD/mois | Bureau |
| 2e étage, ste 2 | 1 - 2 | 217 pi² | 83,21 $ CAD/pi²/an 6,93 $ CAD/pi²/mois 18 057 $ CAD/an 1 505 $ CAD/mois | Bureau |
| 2e étage, ste 3 | 1 - 2 | 204 pi² | 72,38 $ CAD/pi²/an 6,03 $ CAD/pi²/mois 14 765 $ CAD/an 1 230 $ CAD/mois | Bureau |
2e étage, ste 1
| Nb. de personnes |
| 1 - 2 |
| Taille |
| 220 pi² |
| Terme |
| - |
| Taux de location |
| 82,06 $ CAD/pi²/an 6,84 $ CAD/pi²/mois 18 054 $ CAD/an 1 504 $ CAD/mois |
| Utilisation de l’espace |
| Bureau |
2e étage, ste 2
| Nb. de personnes |
| 1 - 2 |
| Taille |
| 217 pi² |
| Terme |
| - |
| Taux de location |
| 83,21 $ CAD/pi²/an 6,93 $ CAD/pi²/mois 18 057 $ CAD/an 1 505 $ CAD/mois |
| Utilisation de l’espace |
| Bureau |
2e étage, ste 3
| Nb. de personnes |
| 1 - 2 |
| Taille |
| 204 pi² |
| Terme |
| - |
| Taux de location |
| 72,38 $ CAD/pi²/an 6,03 $ CAD/pi²/mois 14 765 $ CAD/an 1 230 $ CAD/mois |
| Utilisation de l’espace |
| Bureau |
2e étage, ste 1
| Nb. de personnes | 1 - 2 |
| Taille | 220 pi² |
| Terme | - |
| Taux de location | 1 504 $ CAD/mois |
| Utilisation de l’espace | Bureau |
3 Commercial Office Spaces for Rent: Full Unit 900 SF - $4,500 204 SF - $1200.00 217 SF - $1,500.00 220 SF – 1,500.00 Call today for a viewing! Office Manager, Axelle Dervisevic: (617) 733-9138 Office Spaces - Three fully renovated office spaces in a two-story building, located in a convenient, prime area near Route 93, 99, and minutes from Boston. - Close proximity to the orange and green line (7 minute walk), and several bus route in the area. - Can be rented individually or as an entire unit - Features include a shared conference room, kitchenette, and bathroom. - Rent includes all utilities: internet, heat, AC, electricity, and water. - Ideal for an architect, attorney, designer, or other office space users. Available Nov. 2025
- Espace disponible auprès du fournisseur d’espace de travail partagé
- 3 bureaux privés
- 1 salle de conférence
- Air central et chauffage
- Connectivité Wi-Fi
- Salle de bains privée
- Système de sécurité
- Plafond suspendu
- Lumière naturelle
- Éclairage d’urgence
- Bus Line
- Train Line
2e étage, ste 2
| Nb. de personnes | 1 - 2 |
| Taille | 217 pi² |
| Terme | - |
| Taux de location | 1 505 $ CAD/mois |
| Utilisation de l’espace | Bureau |
3 Commercial Office Spaces for Rent: Full Unit 900 SF - $4,500 204 SF - $1200.00 217 SF - $1,500.00 220 SF – 1,500.00 Call today for a viewing! Office Manager, Axelle Dervisevic: (617) 733-9138 Office Spaces - Three fully renovated office spaces in a two-story building, located in a convenient, prime area near Route 93, 99, and minutes from Boston. - Close proximity to the orange and green line (7 minute walk), and several bus route in the area. - Can be rented individually or as an entire unit - Features include a shared conference room, kitchenette, and bathroom. - Rent includes all utilities: internet, heat, AC, electricity, and water. - Ideal for an architect, attorney, designer, or other office space users. Available Nov. 2025
- Espace disponible auprès du fournisseur d’espace de travail partagé
- 3 bureaux privés
- 1 salle de conférence
- Air central et chauffage
- Connectivité Wi-Fi
- Salle de bains privée
- Système de sécurité
- Plafond suspendu
- Lumière naturelle
- Éclairage d’urgence
- Bus Line
- Train Line
2e étage, ste 3
| Nb. de personnes | 1 - 2 |
| Taille | 204 pi² |
| Terme | - |
| Taux de location | 1 230 $ CAD/mois |
| Utilisation de l’espace | Bureau |
3 Commercial Office Spaces for Rent: Full Unit 900 SF - $4,500 204 SF - $1200.00 217 SF - $1,500.00 220 SF – 1,500.00 Call today for a viewing! Office Manager, Axelle Dervisevic: (617) 733-9138 Office Spaces - Three fully renovated office spaces in a two-story building, located in a convenient, prime area near Route 93, 99, and minutes from Boston. - Close proximity to the orange and green line (7 minute walk), and several bus route in the area. - Can be rented individually or as an entire unit - Features include a shared conference room, kitchenette, and bathroom. - Rent includes all utilities: internet, heat, AC, electricity, and water. - Ideal for an architect, attorney, designer, or other office space users. Available Nov. 2025
- Espace disponible auprès du fournisseur d’espace de travail partagé
- 3 bureaux privés
- 1 salle de conférence
- Air central et chauffage
- Connectivité Wi-Fi
- Salle de bains privée
- Système de sécurité
- Plafond suspendu
- Lumière naturelle
- Éclairage d’urgence
- Bus Line
- Train Line
À propos de la propriété
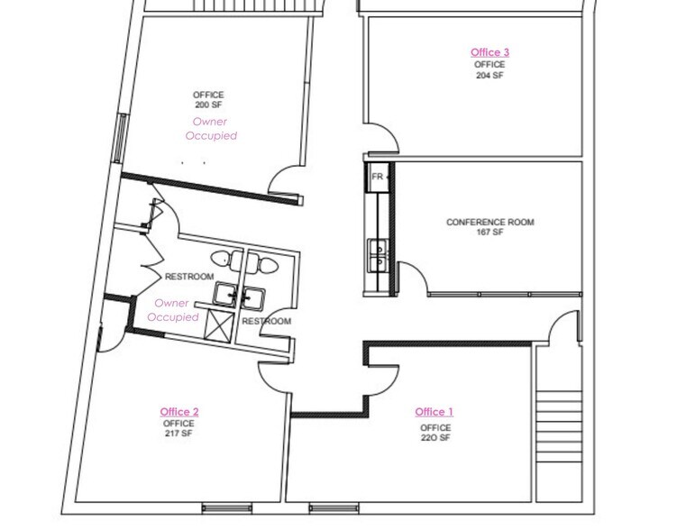
Commercial Office Space for Rent at 25 Washington St. Somerville, MA. The total area is around 1130 sq. ft.: All utilities are included: heat, AC, electricity, water, and internet. Exclusive Office (1): 220 SF – $1,100 Exclusive Office (2): 217 SF - $1,100 -- has a closet Exclusive Office (3): 204 SF - $900 (no longer available) Shared areas: kitchenette, conference room, bathroom entrance and hallways around 486 Sq. feet, included with exclusive office spaces. Call today for a viewing! Office Manager, Axelle Dervisevic: (617) 733-9138 ——- Office Spaces * Fully renovated office spaces in a two-story building, located in a convenient, prime area near Route 28, 93, 99, and minutes from Downtown Boston. * Features include a shared conference room, kitchenette, and bathroom. * Street parking is available with a Somerville Parking Permit for $150/year, although there are several parking lots within a 7-10 minute walking distance * Close proximity to the orange and green lines (7-minute walk), and several bus routes in the area. * Owner-occupied space * Ideal for an architect, attorney, designer, counseler, or other office space users. Available April. 2026!!!
Caractéristiques et commodités
- Ligne d'autobus
- Train de banlieue
- Éclairage accentué
- Espace d'entreposage
- Climatisation
Présenté par
Azem Real Estate, LLC.
25 Washington St
Hmm, il semble y avoir eu une erreur lors de l’envoi de votre message. Veuillez réessayer.
Merci! Votre message a été envoyé.



