Votre courriel a été envoyé.
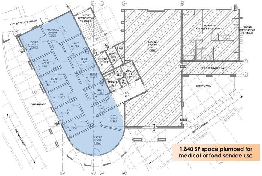
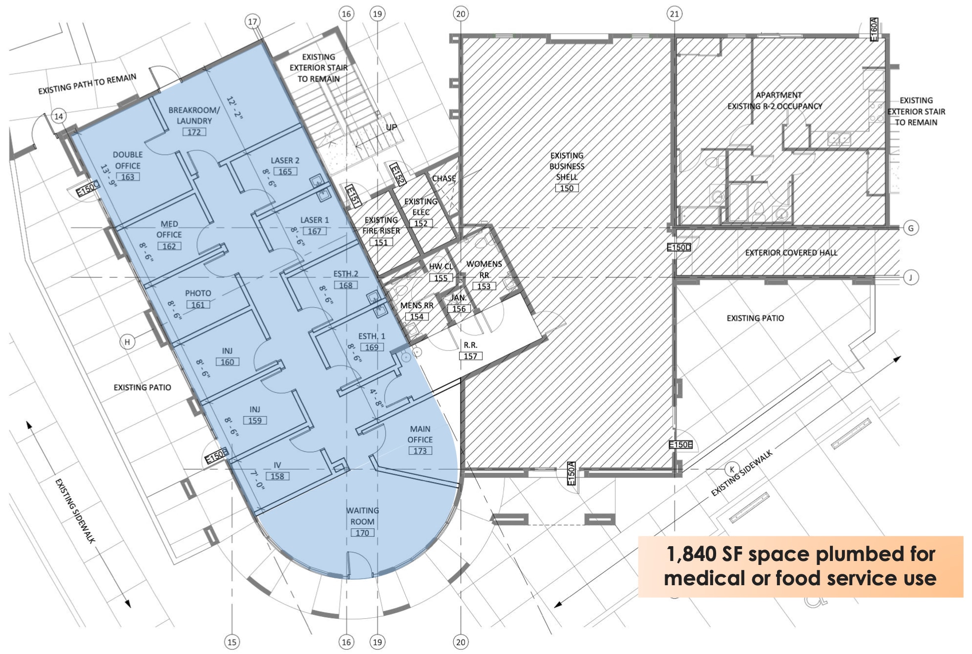
1,840 SF Space at El Vado Place II 2500 Central Ave 1 840 pi² d'espace disponible • Commerce de détail • Albuquerque, NM 87104



Certaines informations ont été traduites automatiquement.
Faits saillants
- 26 100 véhicules de l'avenue Central par jour
- 56 200 DPV au total
- 30 100 boulevard Rio Grande VPD
Disponibilité de l’espace (1)
Afficher les taux de location en
- Espace
- Taille
- Terme
- Taux de location
- Type de loyer
| Espace | Taille | Terme | Taux de location | Type de loyer | ||
| 1er étage | 1 840 pi² | Négociable | 27,46 $ CAD/pi²/an 2,29 $ CAD/pi²/mois 50 530 $ CAD/an 4 211 $ CAD/mois | Loyer hypernet |
1er étage
Building A 1,840 SF Plumbed Space for Lease Building B & C Fully Leased Two Shared ADA Restrooms Momo Cocktail Lounge & Ponderosa Tap Room Walkable Old Town Location Across from Botanical Gardens and Aquarium 32 Fully Leased Apartments Onsite 42 Adjacent Motel Rooms, new Hostel ABQ Rapid Transit Stop
- Le taux de location ne comprend pas les services publics, les services de bâtiment ou les dépenses immobilières.
- Partiellement construit comme Espace de commerce de détail standard
- 56 200 DPV au total
- Arrêt de transport en commun rapide ABQ
- 32 appartements entièrement loués sur place
- De l'autre côté des jardins botaniques
Types de loyers
Le type et le montant du loyer que le locataire (preneur) est tenu de payer au propriétaire (bailleur) sur la durée du bail sont négociés avant la signature du bail par les deux parties. Le type de loyer varie selon les services fournis. Par exemple, le prix d’un loyer hypernet est habituellement inférieur à celui d’un bail à service complet puisque le locataire est tenu d’assumer des dépenses additionnelles par rapport au loyer de base. Contactez le courtier inscripteur pour tout connaître sur les frais connexes et additionnels associés à chaque type de loyer.
1. Service complet: Un taux de location qui comprend des services standards liés à l’immeuble fournis par le propriétaire dans le cadre d’une location annuelle de base.
2. Loyer supernet: Le locataire paie seulement deux des frais de l’immeuble. Le propriétaire et le locataire déterminent ces frais spécifiques avant la signature du bail.
3. Loyer hypernet: Un bail en vertu duquel le locataire est responsable de tous les frais liés à sa part proportionnelle d’occupation de l’immeuble.
4. Brut modifié: Le loyer brut modifié désigne un type général de taux de location dans lequel le locataire est habituellement responsable de sa part proportionnelle d’un ou de plusieurs frais. C’est le propriétaire qui paie les frais restants. Considérez les structures tarifaires courantes suivantes applicables aux loyers bruts modifiés: 4. Plus les services: Un type de bail brut modifié suivant lequel le locataire est responsable de sa part proportionnelle des coûts des services publics, en plus du loyer. 4. Plus le nettoyage: Un type de bail brut modifié suivant lequel le locataire est responsable de sa part proportionnelle des coûts de nettoyage, en plus du loyer. 4. Plus l'électricité: Un type de bail brut modifié suivant lequel le locataire est responsable de sa part proportionnelle des coûts d’électricité, en plus du loyer. 4. Plus l’électricité et le nettoyage: Un type de bail brut modifié dans lequel le locataire est responsable de sa part proportionnelle des coûts d’électricité et de nettoyage, en plus du loyer. 4. Plus les services publics et le nettoyage: Un type de bail brut modifié dans lequel le locataire est responsable de sa part proportionnelle des coûts des services publics et de nettoyage, en plus du loyer. 4. Bail industriel brut: Un type de bail brut modifié dans lequel le locataire paie un ou plusieurs des frais, en plus du loyer. Le propriétaire et le locataire déterminent ces frais spécifiques avant la signature du bail.
5. L’électricité est à la charge du locataire: Le propriétaire paie pour tous les services et le locataire est responsable de sa propre utilisation de l’éclairage et des prises électriques dans l’espace qu’il occupe.
6. Négociable ou sur demande: Cette option est utilisée lorsque le contact de location ne précise pas le type de loyer ou de service.
7. À déterminer: À déterminer ; utilisé pour les immeubles dont le type de services ou de loyer n’est pas connu, souvent quand l’immeuble n’est pas encore construit.
Sélectionner des locataires à 1,840 SF Space at El Vado Place II
- Locataire
- Description
- Emplacements US
- Portée
- State Farm
- Finance et assurances
- -
- -
| Locataire | Description | Emplacements US | Portée |
| State Farm | Finance et assurances | - | - |
Faits sur la propriété
| Superficie totale disponible | 1 840 pi² | Superficie commerciale brute | 19 008 pi² |
| Type de propriété | Commerce de détail | Année de construction | 2018 |
| Superficie totale disponible | 1 840 pi² |
| Type de propriété | Commerce de détail |
| Superficie commerciale brute | 19 008 pi² |
| Année de construction | 2018 |
À propos de la propriété
Développement merveilleux de la Route 66 au Motel El Vado avec 32 appartements entièrement loués, boutiques, centre d'événements, restaurants, ampithéâtre, salle de robinet, motel et bien plus encore ! Entouré par le Monterey Inn, le parcours de golf Albuquerque Country Club, l'aquarium, les jardins botaniques, la vieille ville et les restaurants et boutiques locaux, c'est un endroit merveilleux pour faire des affaires. Les colocataires comprennent State Farm, Fit & Fabulous, Modern Beauty, Kaufman's Coffee & Bagels, Rollin' On In, Buen Provecho, Happy Chickenzz, Bosque Burger, Sandia Crust Pizza Company, Merc 66, Jessica Nicole Authentic Jewelry, Metal the Store, Southwest Cactus, Swan Song et le cocktail Momo.
- Climatisation
- Balcon
Principaux détaillants à proximité
Présenté par
1,840 SF Space at El Vado Place II | 2500 Central Ave
Hmm, il semble y avoir eu une erreur lors de l’envoi de votre message. Veuillez réessayer.
Merci! Votre message a été envoyé.



