Se Connecter/S’inscrire
Votre courriel a été envoyé.
2501 E Elm St Immeuble de 10 980 pi² • Soins de santé • À vendre 1 308 625 $ CAD • Tucson, AZ 85716



Certaines informations ont été traduites automatiquement.
Faits saillants de l'investissement
- Sufficient parking for any prospective tenant
Résumé de l'annonce
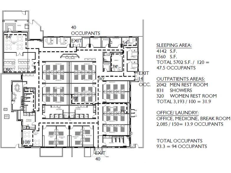
Building Size: ±10,980 SF
Sale Price: $950,000
Year Built: 1970
Assessor Parcel no.: 123-02-288A
Zoning: C-1, City of Tucson
Zoning and approved building plans in place to build out an inpatient drug and alcohol treatment center for 47 beds
Parking: ±37 spaces
Sale Price: $950,000
Year Built: 1970
Assessor Parcel no.: 123-02-288A
Zoning: C-1, City of Tucson
Zoning and approved building plans in place to build out an inpatient drug and alcohol treatment center for 47 beds
Parking: ±37 spaces
Faits sur la propriété
| Prix | 1 308 625 $ CAD | Taille du lot | 0,73 AC |
| Prix par lit | 27 843 $ CAD | Taille du bâtiment | 10 980 pi² |
| Type de vente | Investissement ou propriétaire utilisateur | Nbre de lits | 47 |
| Type de propriété | Soins de santé | Nombre d’étages | 1 |
| Sous-type de propriété | Centre de réeducation | Année de construction | 1948 |
| Classe d’immeuble | B | Ratio de stationnement | 4,28/1 000 pi² |
| Zonage | C-1 - C-1 | ||
| Prix | 1 308 625 $ CAD |
| Prix par lit | 27 843 $ CAD |
| Type de vente | Investissement ou propriétaire utilisateur |
| Type de propriété | Soins de santé |
| Sous-type de propriété | Centre de réeducation |
| Classe d’immeuble | B |
| Taille du lot | 0,73 AC |
| Taille du bâtiment | 10 980 pi² |
| Nbre de lits | 47 |
| Nombre d’étages | 1 |
| Année de construction | 1948 |
| Ratio de stationnement | 4,28/1 000 pi² |
| Zonage | C-1 - C-1 |
Commodités
- Accessible aux fauteuils roulants
1 1
Moyennement praticable à pied
60/100
Moyennement facile d’accès en voiture
60/100
Transports en commun relativement accessibles
40/100
Très praticable en vélo
80/100
Impôts fonciers
| Numéros de lot | Évaluation des bâtiments | 0 $ CAD | |
| Évaluation du terrain | 0 $ CAD | Évaluation totale | 134 959 $ CAD |
Impôts fonciers
Numéros de lot
Évaluation du terrain
0 $ CAD
Évaluation des bâtiments
0 $ CAD
Évaluation totale
134 959 $ CAD
1 de 21
Vidéos
Visite extérieure 3D Matterport
Visite 3D Matterport
Photos
Vue depuis la rue
Rue
Carte
1 de 1
Présenté par
2501 E Elm St
Vous êtes déjà membre? Connectez-vous
Hmm, il semble y avoir eu une erreur lors de l’envoi de votre message. Veuillez réessayer.
Merci! Votre message a été envoyé.
