Votre courriel a été envoyé.
Two Rivers Corporate Centre - Building I 2501 McGavock Pike 283 789 pi² 89% Loué Bureau Immeuble Nashville, TN 37214 À vendre



Certaines informations ont été traduites automatiquement.
Faits saillants de l'investissement
- Multiple exit strategies to consider-prime development site and/or value add commercial play
- Path of Growth Location, 15 minutes Northeast of Downtown and ideally positioned to draft off the urban core's success
- Credit Tenant Leases
- Favorable zoning allowing for High Density Multifamily with no specified unit limit, Retail, Office, and Entertainment
- Only 25 minutes to all major employment centers and a 10-min drive to Nashville International Airport which is undergoing a $4 Billion renovation
Résumé de l'annonce
- Currently three, one story office buildings totaling 289,789 square feet
- Commercial Attraction ("CA") base zoning permitted by right for high density multifamily, retail, office, and entertainment
- 33.3-acre site is available to be sold as one site or to-be-informed separate parcels
- Up to 14.6 acres potentially available for near term development
Faits sur la propriété
Commodités
- Système de sécurité
Principaux locataires Cliquez ici pour accéder à
- Locataire
- Secteur
- pi² Occupé
- Loyer/pi²
- Type de bail
- Fin du bail
The U.S. Department of Veterans Affairs traces its origins to 1930 when the Veterans Administration was created to consolidate veteran services. It became a cabinet-level department in 1989, expanding its mission to better serve veterans. The VA operates three main administrations: Veterans Health provides medical care through hospitals and clinics, Veterans Benefits handles compensation and pensions, and National Cemetery Administration manages burial services. Over decades, the department has evolved to meet changing veteran needs while honoring those who served. Today it remains dedicated to supporting veterans' health, welfare, and memorialization through comprehensive programs and services.
Anthem Blue Cross Blue Shield operates as part of Elevance Health, Inc., a leading managed healthcare company in the United States. The organization traces its roots to 1946, when Mutual Hospital Insurance Inc. and Mutual Medical Insurance Inc. were founded in Indiana. Anthem became a publicly traded company in 2001 and merged with WellPoint Health Networks in 2004, later adopting the Anthem name again in 2014. In 2022, the parent company rebranded as Elevance Health to reflect its broader focus on whole-person health. Anthem Blue Cross Blue Shield provides health insurance products including medical, dental, vision, life, and disability coverage, as well as Medicare and Medicaid plans. The company is an independent licensee of the Blue Cross Blue Shield Association and serves millions of members across multiple states.
| Locataire | Secteur | pi² Occupé | Loyer/pi² | Type de bail | Fin du bail | |
|
Administration publique | - | - | Lorem Ipsum | Jan 0000 | |
|
Finance et assurances | - | - | - | Jan 0000 |
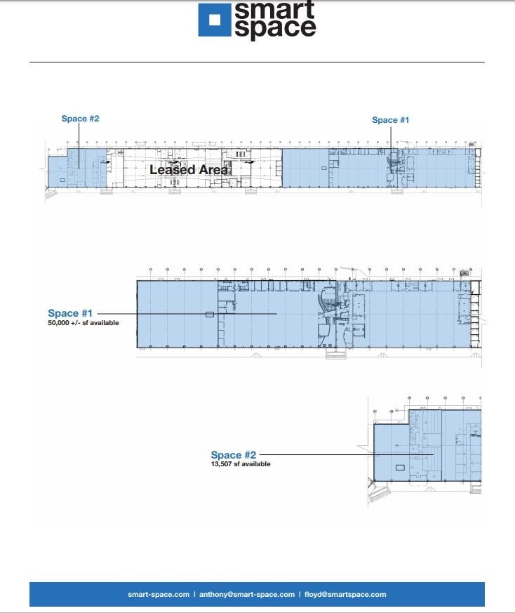
Disponibilité des espaces
- Espace
- Taille
- Utilisation de l’espace
- Aménagement
- Disponible
- 1er étage
- 6 820 pi²
- Bureau
- construction complète
- Maintenant
- 1er Ét.-ste Building I - P7
- 2 457 pi²
- Bureau
- espace cloisonné
- Maintenant
| Espace | Taille | Utilisation de l’espace | Aménagement | Disponible |
| 1er étage | 6 820 pi² | Bureau | construction complète | Maintenant |
| 1er Ét.-ste Building I - 550 | 7 000 à 19 079 pi² | Bureau | espace cloisonné | Maintenant |
| 1er Ét.-ste Building I - P7 | 2 457 pi² | Bureau | espace cloisonné | Maintenant |
| 1er Ét.-ste Building I - P8 | 2 250 pi² | Bureau | espace cloisonné | Maintenant |
1er étage
| Taille |
| 6 820 pi² |
| Utilisation de l’espace |
| Bureau |
| Aménagement |
| construction complète |
| Disponible |
| Maintenant |
1er Ét.-ste Building I - 550
| Taille |
| 7 000 à 19 079 pi² |
| Utilisation de l’espace |
| Bureau |
| Aménagement |
| espace cloisonné |
| Disponible |
| Maintenant |
1er Ét.-ste Building I - P7
| Taille |
| 2 457 pi² |
| Utilisation de l’espace |
| Bureau |
| Aménagement |
| espace cloisonné |
| Disponible |
| Maintenant |
1er Ét.-ste Building I - P8
| Taille |
| 2 250 pi² |
| Utilisation de l’espace |
| Bureau |
| Aménagement |
| espace cloisonné |
| Disponible |
| Maintenant |
1er Ét.-ste Building I - 550
| Taille | 7 000 à 19 079 pi² |
| Utilisation de l’espace | Bureau |
| Aménagement | espace cloisonné |
| Disponible | Maintenant |
1er Ét.-ste Building I - P8
| Taille | 2 250 pi² |
| Utilisation de l’espace | Bureau |
| Aménagement | espace cloisonné |
| Disponible | Maintenant |
Impôts fonciers
| Numéro de lot | 062-00-0-232 | Évaluation des bâtiments | 26 767 809 $ CAD |
| Évaluation du terrain | 5 789 998 $ CAD | Évaluation totale | 32 557 807 $ CAD |
Impôts fonciers
Présenté par
Two Rivers Corporate Centre - Building I | 2501 McGavock Pike
Hmm, il semble y avoir eu une erreur lors de l’envoi de votre message. Veuillez réessayer.
Merci! Votre message a été envoyé.





