Votre courriel a été envoyé.
251 Shawmut Ave Unité de condo • Commerce de détail • 1 415 pi² • Boston, MA 02118



Certaines informations ont été traduites automatiquement.
Faits saillants de l'investissement
- Historic South End brownstone
- Eight Streets neighborhood
- Three-unit condo building
- Garage parking associated with units
Résumé de l'annonce
251 Shawmut Ave is a boutique condominium building located in the South End’s highly desirable Eight Streets neighborhood. The property is a historic brick brownstone originally constructed circa 1890 and later fully renovated and converted into luxury condominium units around 2013. The building contains three residential units and reflects high-end finishes and modern building systems consistent with recent South End condo conversions. Units feature contemporary layouts, central air, and assigned garage parking rights, while retaining classic brownstone character. The property is situated on a quiet residential block with immediate access to parks, restaurants, and neighborhood retail.
1 Unité disponible
Unité 251
| Taille de l’unité | 1 415 pi² | Type de vente | Investissement ou propriétaire utilisateur |
| Utilisation du condo | Commerce de détail |
| Taille de l’unité | 1 415 pi² |
| Utilisation du condo | Commerce de détail |
| Type de vente | Investissement ou propriétaire utilisateur |
Description
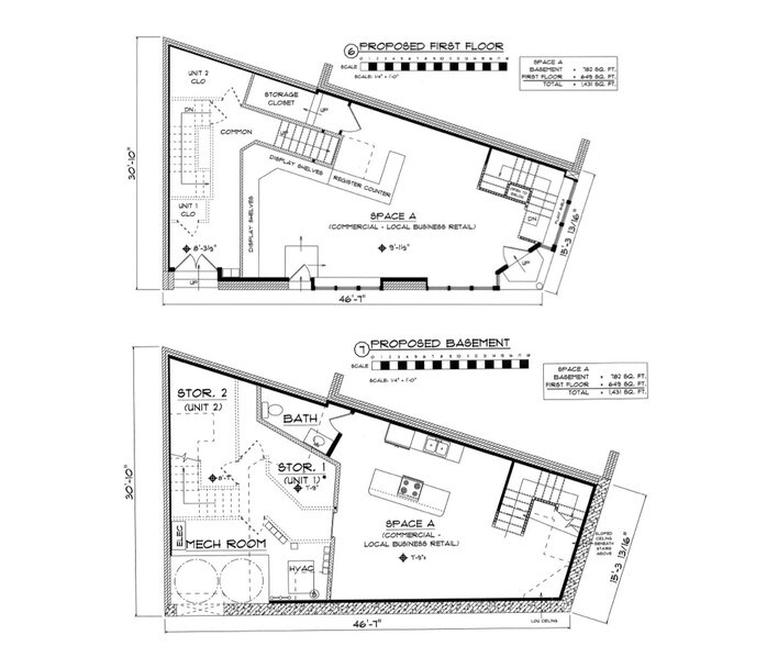
Located at 251 Shawmut Avenue in Boston’s South End neighborhood, this retail condominium comprises two levels totaling approximately 1,415 square feet. The property occupies a corner position within a mixed-use building along a brick-paved pedestrian corridor. It is situated near Union Park and SOWA arts district and is accessible to I-90 and I-93 as well as Back Bay Station and Massachusetts Avenue Station. Surrounding uses include grocery, restaurants, coffee shops, and personal service businesses.
Notes sur la vente
This boutique commercial opportunity at 251 Shawmut Avenue offers a rare chance to own a street-level retail condominium in Boston’s sought-after South End neighborhood. Spanning approximately 1,415 square feet across two levels, the space combines ground-level visibility with flexible lower-level utility, catering to a variety of uses. The property is a corner unit with expansive window lines, delivering exceptional natural light and presence along a charming brick-lined streetscape.
Positioned in one of the city’s most vibrant districts, the property benefits from strong pedestrian activity and proximity to numerous nationally recognized dining destinations, specialty shops, and lifestyle brands. This location also boasts excellent access to major transportation routes, including Interstates 90 and 93, as well as nearby public transit options, ensuring convenience for both customers and staff. Surrounded by affluent demographics with an average household income exceeding $190,000 within a half-mile, this asset aligns perfectly with operators or investors seeking long-term stability and value appreciation in a thriving urban environment.
Faits sur la propriété
| Taille totale du bâtiment | 6 708 pi² | Planchers | 5 |
| Type de propriété | Immeuble residentiel (Condo) | Superficie de plancher typique | 1 000 pi² |
| Sous-type de propriété | Appartement | Année de construction | 1899 |
| Classe d’immeuble | B | Taille du lot | 0,03 AC |
| Zonage | CM | ||
| Taille totale du bâtiment | 6 708 pi² |
| Type de propriété | Immeuble residentiel (Condo) |
| Sous-type de propriété | Appartement |
| Classe d’immeuble | B |
| Planchers | 5 |
| Superficie de plancher typique | 1 000 pi² |
| Année de construction | 1899 |
| Taille du lot | 0,03 AC |
| Zonage | CM |
Présenté par
251 Shawmut Ave
Hmm, il semble y avoir eu une erreur lors de l’envoi de votre message. Veuillez réessayer.
Merci! Votre message a été envoyé.
