Votre courriel a été envoyé.
Prudential NW Building 25228-25230 104th Ave 1 000–3 750 pi² d'espace disponible • Bureau • Kent, WA 98030



Certaines informations ont été traduites automatiquement.
Tous les espaces disponibles(2)
Afficher les taux de location en
- Espace
- Taille
- Terme
- Taux de location
- Utilisation de l’espace
- Aménagement
- Disponible
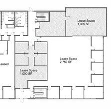
The (5,100 SF) main floor, has been divided into three spaces of (1,000 SF / 2,750 SF / 1,300 SF)
- Le taux inscrit peut ne pas comprendre certains services publics, les services de bâtiment et les dépenses immobilières.
- Convient pour 3 à 6 personnes
- Plafonds finis: 9’
- Climatisation centrale
- Complètement tapissé
- Plafond suspendu
- Accessible aux fauteuils roulants
- Entièrement construit comme Bureau standard
- 4 bureaux privés
- Espace en excellent état
- Aire de réception
- Hauts plafonds
- Sous-sol
The (5,100 SF) main floor, has been divided into three spaces of (1,000 SF / 2,750 SF / 1,300 SF)
- Le taux inscrit peut ne pas comprendre certains services publics, les services de bâtiment et les dépenses immobilières.
- Disposition du plan d’étage ouverte en général
- 8 bureaux privés
- Climatisation centrale
- Vidéosurveillance
- Plan ouvert
- Partiellement construit comme Bureau standard
- Convient pour 8 à 20 personnes
- Plafonds finis: 9’
- Complètement tapissé
- CVCA disponible après les heures de travail
| Espace | Taille | Terme | Taux de location | Utilisation de l’espace | Aménagement | Disponible |
| 1er étage, ste 100A | 1 000 pi² | 3-5 ans | 37,12 $ CAD/pi²/an 3,09 $ CAD/pi²/mois 37 120 $ CAD/an 3 093 $ CAD/mois | Bureau | construction complète | Maintenant |
| 1er étage, ste 100B | 2 750 pi² | 3-5 ans | 37,12 $ CAD/pi²/an 3,09 $ CAD/pi²/mois 102 081 $ CAD/an 8 507 $ CAD/mois | Bureau | construction partielle | Maintenant |
1er étage, ste 100A
| Taille |
| 1 000 pi² |
| Terme |
| 3-5 ans |
| Taux de location |
| 37,12 $ CAD/pi²/an 3,09 $ CAD/pi²/mois 37 120 $ CAD/an 3 093 $ CAD/mois |
| Utilisation de l’espace |
| Bureau |
| Aménagement |
| construction complète |
| Disponible |
| Maintenant |
1er étage, ste 100B
| Taille |
| 2 750 pi² |
| Terme |
| 3-5 ans |
| Taux de location |
| 37,12 $ CAD/pi²/an 3,09 $ CAD/pi²/mois 102 081 $ CAD/an 8 507 $ CAD/mois |
| Utilisation de l’espace |
| Bureau |
| Aménagement |
| construction partielle |
| Disponible |
| Maintenant |
1er étage, ste 100A
| Taille | 1 000 pi² |
| Terme | 3-5 ans |
| Taux de location | 37,12 $ CAD/pi²/an |
| Utilisation de l’espace | Bureau |
| Aménagement | construction complète |
| Disponible | Maintenant |
The (5,100 SF) main floor, has been divided into three spaces of (1,000 SF / 2,750 SF / 1,300 SF)
- Le taux inscrit peut ne pas comprendre certains services publics, les services de bâtiment et les dépenses immobilières.
- Entièrement construit comme Bureau standard
- Convient pour 3 à 6 personnes
- 4 bureaux privés
- Plafonds finis: 9’
- Espace en excellent état
- Climatisation centrale
- Aire de réception
- Complètement tapissé
- Hauts plafonds
- Plafond suspendu
- Sous-sol
- Accessible aux fauteuils roulants
1er étage, ste 100B
| Taille | 2 750 pi² |
| Terme | 3-5 ans |
| Taux de location | 37,12 $ CAD/pi²/an |
| Utilisation de l’espace | Bureau |
| Aménagement | construction partielle |
| Disponible | Maintenant |
The (5,100 SF) main floor, has been divided into three spaces of (1,000 SF / 2,750 SF / 1,300 SF)
- Le taux inscrit peut ne pas comprendre certains services publics, les services de bâtiment et les dépenses immobilières.
- Partiellement construit comme Bureau standard
- Disposition du plan d’étage ouverte en général
- Convient pour 8 à 20 personnes
- 8 bureaux privés
- Plafonds finis: 9’
- Climatisation centrale
- Complètement tapissé
- Vidéosurveillance
- CVCA disponible après les heures de travail
- Plan ouvert
Aperçu de la propriété
L'étage principal répertorié (5 100 pieds 2) peut être subdivisé en 1 (995 pieds 2) et 1 (4 100 pieds 2). Cet immeuble dispose également d'un espace supplémentaire (2 200 pieds 2) au sous-sol si besoin s'en fait sentir. L'espace du sous-sol peut être séparé de l'étage principal.
- Affichage
- Hauts plafonds
- Plafond suspendu
- Climatisation
Faits sur la propriété
Présenté par
PSI Capital LLC
Prudential NW Building | 25228-25230 104th Ave
Hmm, il semble y avoir eu une erreur lors de l’envoi de votre message. Veuillez réessayer.
Merci! Votre message a été envoyé.



